NXTII partlist - 第705页
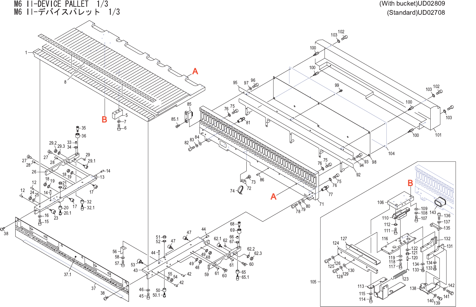
M6 II-DEVICE PALLET 1/3 (With bucket)UD02809 M6 II-デバイスパレット 1/3 (Standard)UD02708 No. Drg.No. & Code No. QTY Description Rating Materials Remarks 番号 図番 & コード番号 個 数 品名 規格 材質 備考 1 PM0F8S0 1 PALLET パレット FE 5 PM1190…

28
PTS-NXT2-04JE Vol.3

M6 II-DEVICE PALLET 1/3 (With bucket)UD02809
M6 II-デバイスパレット 1/3 (Standard)UD02708
No. Drg.No. & Code No. QTY Description Rating Materials Remarks
番号 図番 & コード番号 個数 品名 規格 材質 備考
1 PM0F8S0 1 PALLET パレット FE
5 PM11906 1 BLOCK ブロック FE
6 H5290A 2 BOLT, HEX SOCKET ボルト 六角穴 M04X015 FE
7 W1022A 2 WASHER, LOCK ワッシャ スプリング 4M/M FE
8 PX02082 1 NAMEPLATE 銘板 PL
12 H2093K 2 PIN, PARALLEL ピン 平行 4゚X8 Bシュ (H8) OT
13 PM04TB2 1 BKT, RAIL BKT レール FE
14 H2093K 2 PIN, PARALLEL ピン 平行 4゚X8 Bシュ (H8) FE
15 H5289A 3 BOLT, HEX SOCKET ボルト 六角穴 M04X012 FE
16 W1022A 3 WASHER, LOCK ワッシャ スプリング 4M/M FE
17 K11065 2 CAM FOLLOWER カムフォロア CF03-A OT
18 N10795 2 NUT, HEX ナット 六角 M03(3カ クロ) FE
19 W1010A 2 WASHER, CONICAL ワッシャ 皿 M- 3-L FE
20 PM26721 1 ROLLER ローラ FE
20.1 PM51371 1 PIN, ROLLER ピン ローラ FE
21 N10795 1 NUT, HEX ナット 六角 M03(3カ クロ) FE
22 W1010A 1 WASHER, CONICAL ワッシャ 皿 M- 3-L FE
23 K1108A 1 CAM FOLLOWER カムフォロア CF4-A OT
24 N10796 1 NUT, HEX ナット 六角 M04(3カ クロ) FE
25 W1022A 1 WASHER, LOCK ワッシャ スプリング 4M/M FE
26 PM91722 1 BAR, GUIDE バー ガイド FE
27 K5361T 2 SCREW, HEX SOCKET COUNTERSUNK 小ネジ 六角穴皿 M05X012 FE
28 H2093K 2 PIN, PARALLEL ピン 平行 4゚X8 Bシュ (H8) OT
29 PM86771 1 PIN ピン FE
29.1 K11065 1 CAM FOLLOWER カムフォロア CF03-A OT
29.2 N10795 1 NUT, HEX ナット 六角 M03(3カ クロ) FE
29.3 W1010A 1 WASHER, CONICAL ワッシャ 皿 M- 3-L FE
32 PM26721 1 ROLLER ローラ FE
32.1 PM02DE1 1 PIN, ROLLER ピン ローラ FE
33 PM02503 1 NUT ナット FE
34 W1010A 1 WASHER, CONICAL ワッシャ 皿 M- 3-L FE
35 PM02352 1 PIN, ROLLER ピン ローラ FE
36 PM02422 1 ROLLER ローラ PL
37 PB13915 1 COVER カバー FE
37.1 PX09151 1 NAMEPLATE 銘板 PL
38 K5171S 2 SCREW, C/R TRUSS 小ネジ 十穴トラス M03X006(3カ シロ) FE
42 H2093K 2 PIN, PARALLEL ピン 平行 4゚X8 Bシュ (H8) OT
43 PM04TA2 1 BKT, RAIL BKT レール FE
29
PTS-NXT2-04JE Vol.3

M6 II-DEVICE PALLET 1/3 (With bucket)UD02809
M6 II-デバイスパレット 1/3 (Standard)UD02708
No. Drg.No. & Code No. QTY Description Rating Materials Remarks
番号 図番 & コード番号 個数 品名 規格 材質 備考
44 H2093K 2 PIN, PARALLEL ピン 平行 4゚X8 Bシュ (H8) OT
45 H5289A 3 BOLT, HEX SOCKET ボルト 六角穴 M04X012 FE
46 W1022A 3 WASHER, LOCK ワッシャ スプリング 4M/M FE
47 K11065 2 CAM FOLLOWER カムフォロア CF03-A OT
48 N10795 2 NUT, HEX ナット 六角 M03(3カ クロ) FE
49 W1010A 2 WASHER, CONICAL ワッシャ 皿 M- 3-L FE
50 PM26721 1 ROLLER ローラ FE
50.1 PM51371 1 PIN, ROLLER ピン ローラ FE
51 N10795 1 NUT, HEX ナット 六角 M03(3カ クロ) FE
52 W1010A 1 WASHER, CONICAL ワッシャ 皿 M- 3-L FE
53 K1108A 1 CAM FOLLOWER カムフォロア CF4-A OT
54 N10796 1 NUT, HEX ナット 六角 M04(3カ クロ) FE
55 W1022A 1 WASHER, LOCK ワッシャ スプリング 4M/M FE
56 PP01864 1 DOG ドッグ FE
57 H5275A 2 BOLT, HEX SOCKET ボルト 六角穴 M03X008 FE
58 W1021A 2 WASHER, LOCK ワッシャ スプリング 3M/M FE
59 PM91712 1 BAR, GUIDE バー ガイド FE
60 K5361T 2 SCREW, HEX SOCKET COUNTERSUNK 小ネジ 六角穴皿 M05X012 FE
61 H2093K 2 PIN, PARALLEL ピン 平行 4゚X8 Bシュ (H8) OT
62 PM86771 1 PIN ピン FE
62.1 K11065 1 CAM FOLLOWER カムフォロア CF03-A OT
62.2 N10795 1 NUT, HEX ナット 六角 M03(3カ クロ) FE
62.3 W1010A 1 WASHER, CONICAL ワッシャ 皿 M- 3-L FE
65 PM26721 1 ROLLER ローラ FE
65.1 PM02DE1 1 PIN, ROLLER ピン ローラ FE
66 PM02503 1 NUT ナット FE
67 W1010A 1 WASHER, CONICAL ワッシャ 皿 M- 3-L FE
68 PM02352 1 PIN, ROLLER ピン ローラ FE
69 PM02422 1 ROLLER ローラ PL
71 PM0DRB1 1 PLATE プレート FE
72 S2025A 4 SHEET シート CTAM1 PL Consumable Parts
73 K5172M 4 SCREW, C/R TRUSS 小ネジ 十穴トラス M04X008(3カ シロ) FE
74 H1140A 4 BAND, TIE バンド 結束 T18R PL
75 H5291A 11 BOLT, HEX SOCKET ボルト 六角穴 M04X018 FE
76 W1011A 11 WASHER, CONICAL ワッシャ 皿 M- 4-L FE
77 PM35443 1 PIN, ROUND ピン 丸 FE
78 H5288A 1 BOLT, HEX SOCKET ボルト 六角穴 M04X010 FE
79 W1022A 1 WASHER, LOCK ワッシャ スプリング 4M/M FE
30
PTS-NXT2-04JE Vol.3