NXTII partlist - 第803页
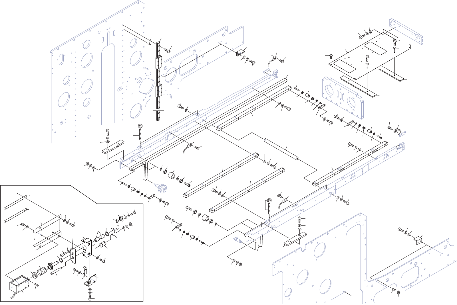
TRAY UNIT-M 4/9 トレイユニット-M 4/9 UT00242 No. Drg.No. & Code No. QTY Description Rating Materials Remarks 番号 図番 & コード番号 個 数 品名 規格 材質 備考 1 PB89232 1 COVER カバー FE 2 H5276A 2 BOLT, HEX SOCKET ボルト 六角穴 M03X010 FE 3 W1021…

AA
AA
1
2
99
100
101
99
100
101
3
4
5
6
7
8
9
10
10
10
11
11
12
12
13
11
12
13
13
14
16
17
18
23
20
21
22
23
24
25
26
27
28
29
32
33
34
38
39
40
41
42
44
45
45
46
47
48
50
50
55
56
42
14
15
17
18
61
94
94
62
63
64
65
66
67
71
72
73
74
75
75
76
77
81
83
84
85
87
88
89
90
96
97
98
39
42
40
38
42
41
32
33
34
82
78
79
80
80.1
95
109
110
109
110
102
104
105
105
106
107
108
102
104
105
105
106
107
108
109
110
109
110
103
104
105
106
107
108
105
103
104
105
106
105
107
108
49
49
51
52
51
52
51
52
51
52
91
92
93
68
69.1
69.2
ࢺࣞࣘࢽࢵࢺ0
75$<81,70
UT00242
126
PTS-NXT2-04JE Vol.3

TRAY UNIT-M 4/9
トレイユニット-M 4/9 UT00242
No. Drg.No. & Code No. QTY Description Rating Materials Remarks
番号 図番 & コード番号 個数 品名 規格 材質 備考
1 PB89232 1 COVER カバー FE
2 H5276A 2 BOLT, HEX SOCKET ボルト 六角穴 M03X010 FE
3 W1021A 2 WASHER, LOCK ワッシャ スプリング 3M/M FE
4 W1042A 2 WASHER, FLAT ワッシャ 平 4W- 3 FE
5 K5171S 2 SCREW, C/R TRUSS 小ネジ 十穴トラス M03X006(3カ シロ) FE
6 PM91401 1 GUIDE, BELT ガイド ベルト AL
7 H5263A 4 BOLT, HEX SOCKET ボルト 六角穴 M03X018 FE
8 W1021A 4 WASHER, LOCK ワッシャ スプリング 3M/M FE
9 W1040R 4 WASHER, FLAT ワッシャ 平 3M/MX0.5X7(1W-3)(3カ クロ) FE
10 PM91411 3 GUIDE, BELT ガイド ベルト AL
11 H5263A 12 BOLT, HEX SOCKET ボルト 六角穴 M03X018 FE
12 W1021A 12 WASHER, LOCK ワッシャ スプリング 3M/M FE
13 W1040R 12 WASHER, FLAT ワッシャ 平 3M/MX0.5X7(1W-3)(3カ クロ) FE
14 PB29891 4 BKT BKT AL
15 H5287A 4 BOLT, HEX SOCKET ボルト 六角穴 M04X008 ゼンネジ FE
16 H5288A 4 BOLT, HEX SOCKET ボルト 六角穴 M04X010 FE
17 W1022A 8 WASHER, LOCK ワッシャ スプリング 4M/M FE
18 W1040S 8 WASHER, FLAT ワッシャ 平 4M/MX0.8X9(1W-4)(3カ クロ) FE
20 H5290A 2 BOLT, HEX SOCKET ボルト 六角穴 M04X015 FE
21 W1022A 2 WASHER, LOCK ワッシャ スプリング 4M/M FE
22 W1043A 2 WASHER, FLAT ワッシャ 平 4W- 4 FE
23 PM020Y1 2 GUIDE, SIDE ガイド サイド AL
24 H5290A 2 BOLT, HEX SOCKET ボルト 六角穴 M04X015 FE
25 W1022A 2 WASHER, LOCK ワッシャ スプリング 4M/M FE
26 W1043A 2 WASHER, FLAT ワッシャ 平 4W- 4 FE
27 XG00881 2 GUIDE, RAIL ガイド レール OT
28 H5274A 48 BOLT, HEX SOCKET ボルト 六角穴 M03X006 FE
29 H21925 12 PIN, PARALLEL ピン 平行 ゚2X6 Aシュ OT
32 W1040R 2 WASHER, FLAT ワッシャ 平 3M/MX0.5X7(1W-3)(3カ クロ) FE
33 W1021A 2 WASHER, LOCK ワッシャ スプリング 3M/M FE
34 N10812 2 NUT, HEX ナット 六角 M03 3シュ(3カ クロ) FE
38 PM78812 4 ROLLER ローラ FE
39 PM78801 4 SHAFT シャフト FE
40 PM78831 4 COLLAR カラー FE
41 PM78822 4 COLLAR カラー FE
42 H4900M 8 BEARING ベアリング MR95ZZ OT
44 PM53803 3 ROD, JOINT ロッド ジョイント AL
45 H5290A 6 BOLT, HEX SOCKET ボルト 六角穴 M04X015 FE
127
PTS-NXT2-04JE Vol.3

TRAY UNIT-M 4/9
トレイユニット-M 4/9 UT00242
No. Drg.No. & Code No. QTY Description Rating Materials Remarks
番号 図番 & コード番号 個数 品名 規格 材質 備考
46 W1022A 3 WASHER, LOCK ワッシャ スプリング 4M/M FE
47 W1011A 3 WASHER, CONICAL ワッシャ 皿 M- 4-L FE
48 W1043A 3 WASHER, FLAT ワッシャ 平 4W- 4 FE
49 H4468C 2 BELT ベルト SE-G30-SBU 8WX1442.5LX0.8T OT
50 H5500H 4 BOLT ボルト ANBN5-40 OT
51 S4027L 2 SENSOR センサ E32-T15ZR OT SET
52 K5169M 8 SCREW, C/R COUNTERSUNK 小ネジ 十穴皿 M02X005(ステンレス) FE
55 N4031A 4 SCREW, HEX SOCKET SET ネジ 六角穴止め M04X010 クボミサキ FE
56 N10813 4 NUT, HEX ナット 六角 M04 3シュ(3カ クロ) FE
61 PB89372 1 PLATE プレート FE
62 H5275A 4 BOLT, HEX SOCKET ボルト 六角穴 M03X008 FE
63 W1021A 4 WASHER, LOCK ワッシャ スプリング 3M/M FE
64 W1042A 4 WASHER, FLAT ワッシャ 平 4W- 3 FE
65 PM0EGY0 1 BLOCK ブロック AL
66 H5294A 2 BOLT, HEX SOCKET ボルト 六角穴 M04X030 FE
67 W1011A 2 WASHER, CONICAL ワッシャ 皿 M- 4-L FE
68 XS01892 1 SOL SOL OT
69.1 K5255H 3 SCREW, HEX SOCKET BUTTON 小ネジ 六角穴ボタン M03X005 FE
69.2 W1021A 3 WASHER, LOCK ワッシャ スプリング 3M/M FE
71 H2048A 1 PIN, SPRING ピン スプリング 3゚X10 OT
72 AA5YF02 1 ROD ロッド OT
73 PM54091 1 HOLDER, SPRING 受け スプリング AL
74 PZ14791 1 SPRING スプリング FE
75 PB05WH1 2 STOPPER ストッパ FE
76 H4288S 2 BEARING, SLIDE ベアリング スライド LM08S OT
77 PM04WG2 1 LEVER レバー AL
78 H5277A 1 BOLT, HEX SOCKET ボルト 六角穴 M03X012 FE
79 W1021A 1 WASHER, LOCK ワッシャ スプリング 3M/M FE
80 W1040R 1 WASHER, FLAT ワッシャ 平 3M/MX0.5X7(1W-3)(3カ クロ) FE
80.1 PM04DN2 1 PUSHER プッシャ AL
81 PM0EGX0 1 ROD ロッド FE
82 H4288A 1 BEARING, SLIDE ベアリング スライド LM06 OT
83 N10795 1 NUT, HEX ナット 六角 M03(3カ クロ) FE
84 W1021A 1 WASHER, LOCK ワッシャ スプリング 3M/M FE
85 W1040R 1 WASHER, FLAT ワッシャ 平 3M/MX0.5X7(1W-3)(3カ クロ) FE
87 PB89351 1 BKT BKT FE
88 H5276A 2 BOLT, HEX SOCKET ボルト 六角穴 M03X010 FE
89 W1021A 2 WASHER, LOCK ワッシャ スプリング 3M/M FE
128
PTS-NXT2-04JE Vol.3