NXTII partlist - 第842页
A A C C D D A A C C D D B B % % % % % % B B 72:(55,*+76,'( ࢱ࣮࣡ྑഃ㒊 72:(5)52176,'( ࢱ࣮࣡๓㒊 % % % % % % $ $ $ $ $ $ $ $ $ $ $ $ 1 2 3 4 5 6 6 6 7 7 7 7 6 14 14 14 15 15 15 10 11 16 …
ࡇࡢ࣮࣌ࢪࡣࣈࣛࣥࢡ࣮࣌ࢪ࡛ࡍࠋ
This page intentionally blank.
165
PTS-NXT2-04JE Vol.3

AA
CC
DD
AA
CC
DD
BB
%
%
%
%
%
%
BB
72:(55,*+76,'(
ࢱ࣮࣡ྑഃ㒊
72:(5)52176,'(
ࢱ࣮࣡๓㒊
%
%
%
%
%
%
$
$
$
$
$
$
$
$
$
$
$
$
1
2
3
4
5
6
6
6
7
7
7
7
6
14
14
14
15
15
15
10
11
16
16
16
17
18
19
18
19
20
21
22
23
24.1
25
26
27
28
29
30
31
32
24
25
26
27
28
29
30
31
33
34
34
35
36
35
35
35
37
37
37
37
38
39
40
41
42
43
44
45
46
47
48
49
50
51
52
53
54
55
56
57
58
59
59
59
63
65
66
67
70
70
71
71
72
73
74
72
73
74
73
74
75
75
75
75
76
76
76
76
77
77
77
77
78
78
78
78
79
79
79
79
65
66
67
72
72
73
74
65
66
67
65
66
67
63
64
64
60
61
62
60
61
62
60
61
62
60
61
62
59
36
36
36
23
21
22
20
17
13
13
13
13
13
9
9
10
10
11
11
12
12
12
13
9
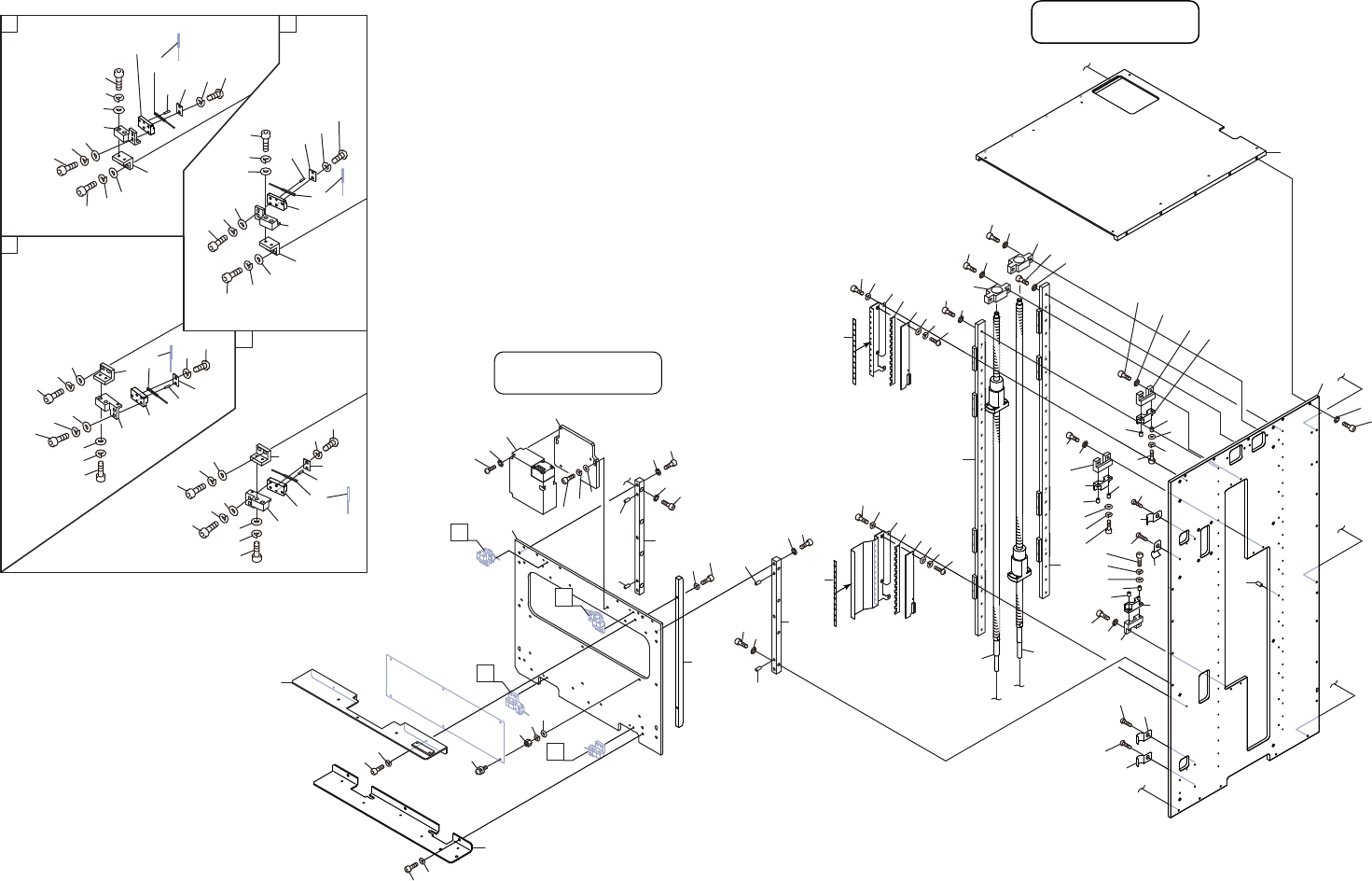
75$<81,7/772:(5
ࢺࣞࣘࢽࢵࢺ/7ࢱ࣮࣡
QK07D04
166
PTS-NXT2-04JE Vol.3

TRAY UNIT-LT TOWER 2/7
トレイユニット-LT タワー 2/7 QK07D04
No. Drg.No. & Code No. QTY Description Rating Materials Remarks
番号 図番 & コード番号 個数 品名 規格 材質 備考
1 PM09RD1 1 PLATE, UPPER プレート 上 AL
2 PM09RB3 1 PLATE, SIDE プレート サイド AL
3 H5427B 5 BOLT, HEX SOCKET ボルト 六角穴 M05X012(3カ シロ) FE
4 W1100A 5 WASHER, CONICAL ワッシャ 皿 M5 SUS JIS B1251 2シュ 2L FE
5 H2096H 12 PIN, PARALLEL ピン 平行 ゚3X6 Bシュ(ステンレス) OT
6 H1137T 4 BAND, TIE バンド 結束 NK-3N OT
7 K5172L 4 SCREW, C/R TRUSS 小ネジ 十穴トラス M04X006(3カ シロ) FE
9 PM03DR0 3 BKT, STOPPER BKT ストッパ FE
10 H5287A 6 BOLT, HEX SOCKET ボルト 六角穴 M04X008 ゼンネジ FE
11 W1011A 6 WASHER, CONICAL ワッシャ 皿 M- 4-L FE
12 PG03662 3 STOPPER ストッパ PL
13 S3060F 6 SPACER スペーサ CF-304ZE OT
14 H5276A 6 BOLT, HEX SOCKET ボルト 六角穴 M03X010 FE
15 W1021A 6 WASHER, LOCK ワッシャ スプリング 3M/M FE
16 W1040R 6 WASHER, FLAT ワッシャ 平 3M/MX0.5X7(1W-3)(3カ クロ) FE
17 XG01251 2 GUIDE, RAIL ガイド レール OT
18 H5275A 48 BOLT, HEX SOCKET ボルト 六角穴 M03X008 FE
19 W1010A 48 WASHER, CONICAL ワッシャ 皿 M- 3-L FE
20 PM07RE0 2 BKT BKT FE
21 H5298A 4 BOLT, HEX SOCKET ボルト 六角穴 M05X010 FE
22 W1012A 4 WASHER, CONICAL ワッシャ 皿 M- 5-L FE
23 XB03193 2 BALL SCREW ボールネジ OT
24 PB82230 1 BKT BKT FE
24.1 PB02KW1 1 BKT BKT FE
25 H5274A 4 BOLT, HEX SOCKET ボルト 六角穴 M03X006 FE
26 W1021A 4 WASHER, LOCK ワッシャ スプリング 3M/M FE
27 PS02751 2 SHEET シート OT Consumable Parts
28 XK02410 2 BOARD, PRINTED CIRCUIT 基板 プリント OT
29 H52683 4 BOLT, HEX SOCKET ボルト 六角穴 M02.5X005 FE
30 W1020H 4 WASHER, LOCK ワッシャ スプリング 2.5M/M FE
31 W11081 4 WASHER, FLAT ワッシャ 平 1W-2.5(3カ クロ) FE
32 PZ32481 1 SEAL シール PL
33 PZ32461 1 SEAL シール PL
34 PM03DT1 2 BLOCK, LOCATING ブロック 位置決め AL
35 H5299A 22 BOLT, HEX SOCKET ボルト 六角穴 M05X012 FE
36 W1012A 22 WASHER, CONICAL ワッシャ 皿 M- 5-L FE
37 H2094H 4 PIN, PARALLEL ピン 平行 5゚X12 Bシュ OT
38 PM072F4 1 PLATE プレート AL
167
PTS-NXT2-04JE Vol.3