CP-65-09 - 第126页
27.2.カムボックス 3(YPA) 27.2.Cam box 3(YPA) 番号 図番 & コード番号 個数 品名 規格 備考 No. Drg.No. & Code No. QTY Description Rating Remarks 1 WPA0911 1 DISTRIBUTOR 分配器 2 YPA0360 2 HOLDER 受け 3 WPA1451 1 ELBOW エルボ 4 YPA0670 1 PIPE, D…

CP-65 PARTS LIST ver09
27.2.カムボックス 3(YPA)
27.2.Cam box 3(YPA)
27 - 4
27.2.カムボックス 3(YPA)
27.2.Cam box 3(YPA)
A
A
12
11
27
18
53
62
2
11
27
8
21
4
27
11
22
7
19
19
12
17
49
23
27
11
9
24
13
15
24
80
77
1
10
10
63
59
16
10
80
80
78
79
14
10
83
5
20
3
6
22
87
86
87
86
86
87
87
86
x10
208
176
165
175
161
175
161
175
161
183
162
176
167
175
161
13
13
B
A
139
26

27.2.カムボックス 3(YPA)
27.2.Cam box 3(YPA)
番号 図番 & コード番号 個数 品名 規格 備考
No. Drg.No. & Code No. QTY Description Rating Remarks
1 WPA0911 1 DISTRIBUTOR 分配器
2 YPA0360 2 HOLDER 受け
3 WPA1451 1 ELBOW エルボ
4 YPA0670 1 PIPE, DOUBLE ENDED パイプ 両口
5 YPA0700 1 PIPE, DOUBLE ENDED パイプ 両口
6 WPA1481 1 PIPE パイプ
7 WPA1491 1 PIPE パイプ
8 YPA0520 1 DISTRIBUTOR 分配器
9 H3057T 1 BUSHING ブッシュ SBU06-02J
10 N2003A 4 NIPPLE ニップル KLN06-011CE
11 H1150N 4 BAND, HOSE バンド ホース HS16
12 H5004T 1 HOSE ホース M゚25X゚30 1.5m
13 H5044E 1 HOSE, HYDRAULIC ホース 油圧 716-300M/K
14 H5044A 1 HOSE, HYDRAULIC ホース 油圧 716-1000M/K
15 H5044R 1 HOSE, HYDRAULIC ホース 油圧 718-720M/K
16 S4033T 1 SENSOR, PRESSURE センサ 圧力 AP-13
17 A1038T 1 AMPLIFIER アンプ AP-70
18 A4024A 1 ELBOW エルボ SLA06-000J
19 A4084A 2 ELBOW, MALE AND FEMALE エルボ オスメス SLC06-000J
20 A4085N 1 ELBOW, MALE AND FEMALE エルボ オスメス 3/4.
21 A3035A 1 PLUG 埋栓 PT3/4
22 A3032A 2 PLUG 埋栓 PT1/2
23 H3060A 1 BUSHING ブッシュ SBU08-060J
24 S2164T 2 JOINT, MALE AND FEMALE ジョイント オスメス 408054KN
27 WPA0942 4 NIPPLE ニップル
49 H5275A BOLT, HEX SOCKET ボルト 六角穴 M3X8L
53 H5298A BOLT, HEX SOCKET ボルト 六角穴 M5X10L
59 H5322A BOLT, HEX SOCKET ボルト 六角穴 M6X15L
62 W1023A WASHER, LOCK ワッシャ スプリング 5M/M
63 W1024A WASHER, LOCK ワッシャ スプリング 6M/M
77 A4044A 1 ELBOW エルボ PL6-01M
78 T4022B 1 TEE ティー TT6-01(NYメッキ)
79 S2171B 1 JOINT, ONE-TOUCH ジョイント ワンタッチ TL6-01(NYメッキ)
80 WPA1810 1 HOSE ホース
83 A50034 1 OIL, COOLANT オイル クーラント SCFB-01-CE-2
86 N1109A 4 NUT, DOMED CAP ナット 六角袋 KKN06-000CE
87 S3073A 4 SLEEVE スリーブ KK006-000CE ・
CP-65 PARTS LIST ver09
27 - 5
27.2.カムボックス 3(YPA)
27.2.Cam box 3(YPA)

CP-65 PARTS LIST ver09
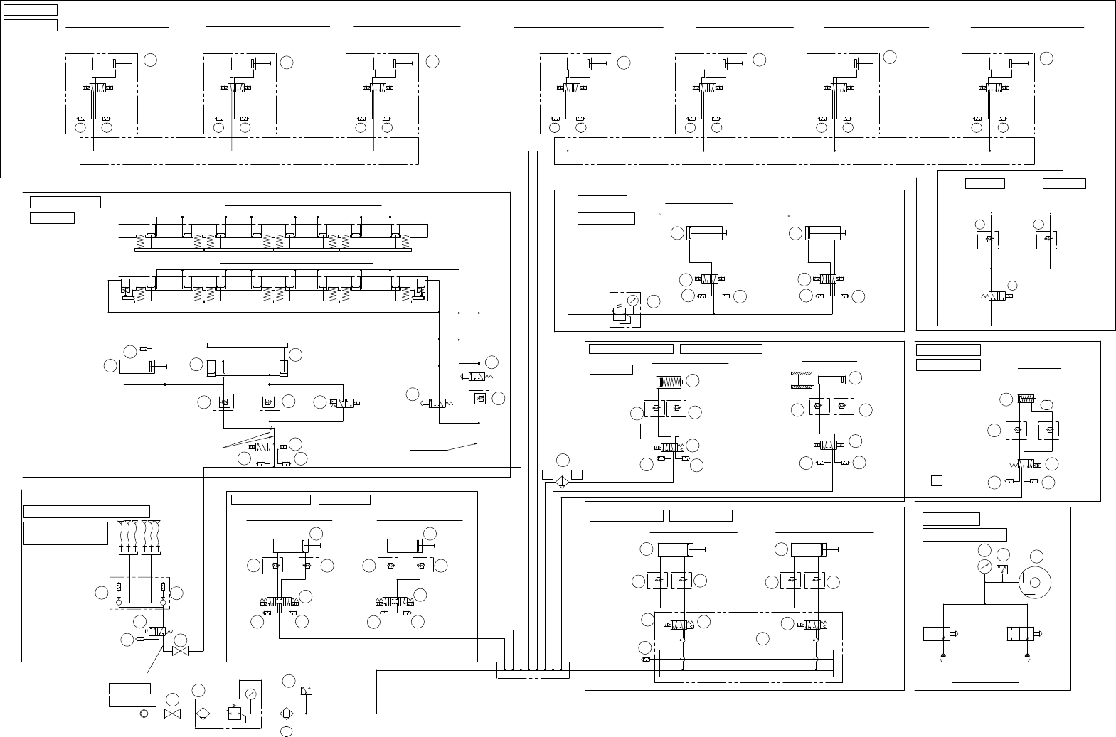
28.エアー配管図(YPI)
28.Pneumatic circuit diagram(YPI)
28 - 1
28.エアー配管図(YPI)
28.Pneumatic circuit diagram(YPI)
x
x3
208
176
165
175
161
175
161
175
161
183
162
176
167
175
161
13
13
B
A
139
26
11st真空破壊
16st真空破壊
バキュームバックアップピン (オプション)
リアフェンス(YAF) Rear fence
Left Shutter
Right Shutter
Vacuum back up pin
(Option)
WPI0291
YPI0022
YPI0031
YSY0420
YSY0420
YSZ0410
φ6φ6
φ6
φ6
φ6φ6φ6φ6φ6 φ6 φ6
φ8
φ8
φ8
φ8
φ6
φ6
φ6φ6
φ6
φ6
φ6
φ6
φ6
φ6
φ6
φ6
φ6
φ6
φ6 φ6 φ6 φ6 φ6 φ6φ6
φ6
φ6
φ6
φ6
φ6
φ6
φ6
φ6
φ6
φ6
φ6
φ6
φ6 φ6
φ6
φ6
φ6
φ6
φ6
φ8
φ8
φ8
φ8
φ6
φ6
φ6
φ6
φ8
φ4
φ4
52
18
φ6
φ6
φ6
φ6
φ6
φ6
φ6
20
42
42
A
R2R1
B
42
42
A
R2R1
B
20
20
20
A
R2R1
42
42
B
A
B
R2R1
42
42
20
A
B
R2R1
42
42
B
A
R2R1
42
42
20
20
A
B
R2R1
42
42
49
3
R
P
A
8
9
47
45
46
48
48
φ6
XYテーブル
P
A
E
φ8
φ6
φ6
R2R1
B
A
R2R1
B
A
43
43
XYテーブル(YSS)
Z axis plate
32
32
35
24
33
34
34
31
22
22
XYテーブルリフター
XYtable lifter
XY Clamp
Pθrotation
While rotation 90°
While rotation 90°
Pθrotation
PCB Stopper1
Parts eject
Tape cutter
Waster tape cutter
Lever retracted
PCB Stopper2
Tape feeding lever
Feeding lever retracted
16st vacuum cut off11st vacuum cut off
Operator side board clmp
Back side board clmp
(φ16x40)
Z軸プレート
(φ25x50)
19
θ軸(YPQ)
Pθ rotation
Mechanical valbes
Noise reduction box
12 heads
Vacuum
3.5kgf/cm
2
基板ローダー(YQL) Board loading
防音BOX(YPV)
カムBOX(YPA)
Cam box(YPA)
配管ターミナル
配管ターミナル
レバー上昇時
11stノズル上下
(φ25x12)
レバー上昇時
13stPRθ上下 13stPRθup/down 11st Nozzle up/down
While lever ascends
10stFθup/down
While lever ascends
While lever ascends
While lever ascends
18st Nozzle change fwd/bwd
1st Nozzle up/down
3st Pθ up/down
1st feed lever up/down
While lever ascends
While lever ascends
While lever ascends
(φ25x12)
36
21
25
29
29
(φ25x40)
PRθ旋回
90 旋回時
(φ25x40)
Pθ旋回
90 旋回時
21
25
29
29
レバー後腺時
テープカット
(φ32x1.05)
レバー上昇時
レバー上昇時
レバー上昇時
レバー上昇時
レバー上昇時
18stノズル切替前後
10stFθ上下
3stPθ上下
1st送り上下
1stノズル上下
28
2424
エア−源
Air supply
(φ20x250)
シャッタ−右
(φ20x250)
シャッタ−左
27
26
26
26
23
23
23
27
26
28
23
2
1
送りレバ−後腺時
カ−トリッジ送り
配管タ−ミナル
Conduct terminal
Conduct terminal
Conduct terminal
A
A
B
B
P
P
R
R
R
R
4
7
7
6
6
6
6
11
11
(φ16x10)
PCBストッパー2
(φ16x10)
PCBストッパー1
バキュ−ム系
12ヘッド
20連
メカニカルバルブ
PT3/8
16
15
17
23
3/8
3/8
3/8
P
R2
R1
B
A
(φ25x12)
(φ25x12) (φ25x12) (φ25x12) (φ25x12)
基準側基盤クランプ
従属側基盤クランプ
38
34
34
39
22
22
パーツ排出
(φ16X60)
40
41
42
42
36
5
10
9
51
50
φ8
φ8
φ8
φ8
φ8
φ8
φ6
φ6
φ6
φ6
φ6
φ6
φ6
φ6
φ6φ6
φ6
11st(YGP) 16st(YPU)
16st(YPU)
残テープカット(YPK)
1st駆動部(YPL)
1st machanizm
P2
B1
B1
B1
x
x