IP-IIIE-11 - 第81页
IP- III E P ARTS LIST ver1 1 2 3 . パーツ排出装置( Q P G ) 2 3 . P a r t s e j e c t o r ( Q P G ) 2 3 - 1 2 3 . パーツ排出装置( Q P G ) 2 3 . P a r t s e j e c t o r ( Q P G ) R e f . 3 1 - 1 R e f . 3 1 - 1 R e f . 3 1 - 1 R e f . 3…

22.1stピンチェックユニット ランプ電源固定部(オプション)(QPK)
22.1st pin check unit electrical lamp unit(Option)(QPK)
番号 図番 & コード番号 個数 品名 規格 備考
No. Drg.No. & Code No. QTY Description Rating Remarks
1 QPK1520 1 STOPPER ストッパ
2 QPK1531 1 BKT BKT
3 QPK2682 1 CATCH, BOX 受け BOX
4 QPH1250 2 BKT BKT (Option)Xno.∼268
5 QPK2692 1 COVER カバー (Option)
6 QPK1541 1 BKT BKT
7 T4138T 1 POWER SUPPLY 電源 FHR80J-DC24VSP
8 W1022A WASHER, LOCK ワッシャ スプリング 4M/M
9 W1043A WASHER, FLAT ワッシャ 平 4W-4
10 H5288A BOLT, HEX SOCKET ボルト 六角穴 M4X10L
11 H5274A BOLT, HEX SOCKET ボルト 六角穴 M3X6L
12 . SCREW, C/R PAN 小ネジ 十穴鍋 M3X8L
13 K5214A SCREW, TRUSS 小ネジ トラス M5X8L
14 N1080A NUT, HEX ナット 六角 M4 P=0.7 ・
IP-ⅢE PARTS LIST ver11
22 - 2
22.1stピンチェックユニット ランプ電源固定部(オプション)(QPK)
22.1st pin check unit electrical lamp unit(Option)(QPK)

IP-
III
E PARTS LIST ver11
23.パーツ排出装置(QPG)
23.Parts ejector(QPG)
23 - 1
23.パーツ排出装置(QPG)
23.Parts ejector(QPG)
Ref.31-1
Ref.31-1
Ref.31-1
Ref.33-7
x6.2
54
42
44
18
44
42
54
12
41
49
43
41
47
29
26
9
39
33
52
5
27
1
33
39
34
40
48
30
45
42
36
8
42
54
35
42
45
30
21
44
42
53
37
37
46
38
50
4
37
37
37
10
55
32
45
42
35
43
40
54
31
40
54
22
32
45
42
35
14
27
6
27
6
17
6
14
27
27
6
14
27
3
27
3
13
16
15
40
48
52
39
5
27
1
2
8
42
54
25
41
51
28
45
42
36
50
46
38
4
37
37
37
11
37
37
35
42
45
30
21
44
42
53
19
7
7
16
20
24
41
50
56
56
208
176
165
175
161
175
161
175
161
183
162
176
167
175
161
13
13
B
A
139
26

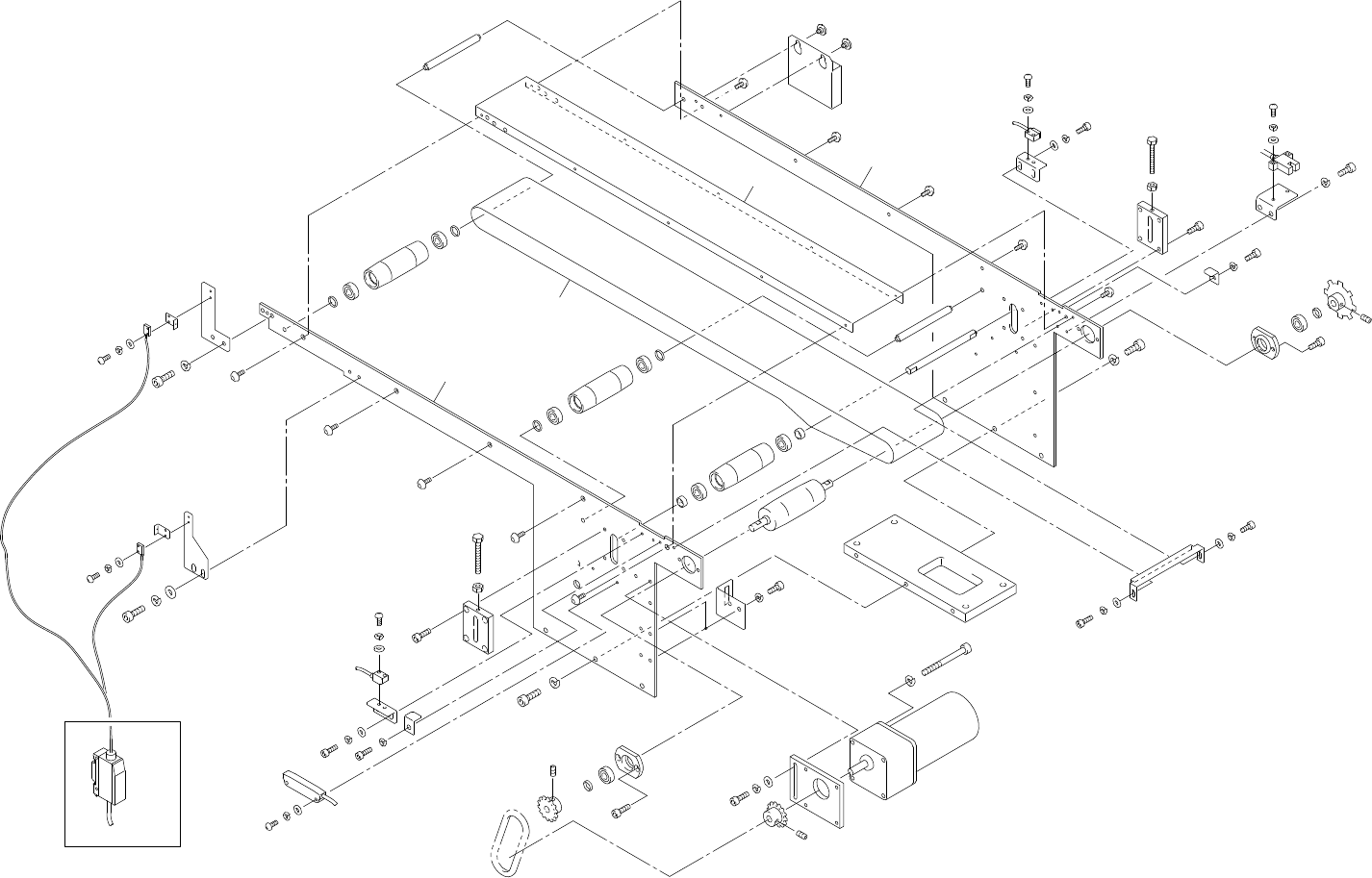
23.パーツ排出装置(QPG)
23.Parts ejector(QPG)
番号 図番 & コード番号 個数 品名 規格 備考
No. Drg.No. & Code No. QTY Description Rating Remarks
1 IPG0070 2 COLLAR カラー
2 IPG0101 1 DOG ドッグ
3 KPG0070 2 COLLAR カラー
4 KPG0110 2 PLATE プレート
5 KPG0120 2 FLANGE フランジ
6 KPG0160 4 COLLAR カラー
7 KPG0180 2 BOLT ボルト
8 KPG0201 2 GUIDE ガイド
9 KPG0210 1 PLATE プレート
10 PPG0107 1 PLATE, SIDE プレート サイド
11 PPG0116 1 PLATE SIDE プレート サイド
12 PPG0120 1 PLATE, CONNECTING プレート ツナギ
13 PPG0130 1 ROLLER ローラ
14 PPG0140 3 ROLLER ローラ
15 PPG0150 1 SHAFT シャフト
16 PPG0160 2 SHAFT シャフト
17 PPG0173 1 BELT ベルト
18 PPG0180 1 STOPPER ストッパ
19 PPG0190 1 BOX BOX
20 PPG0202 1 GUIDE, BELT ガイド ベルト
21 PPG0211 2 BKT, SW BKT SW
22 PPG0251 1 BKT, SENSOR BKT センサ
24 QPG0280 2 BKT BKT
25 QPG0290 1 PLATE, SW プレート SW
26 H4007M 1 HEAD, GEAR ヘッド ギヤ 2GN-60K
27 H4131A 8 BEARING ベアリング 698ZZ
28 S4040X 1 SENSOR, PHOTO センサ フォト EE-SPX306-W2A
29 M5056H 1 MOTOR モータ PB206-401-E1
30 S3135H 2 SW, PHOTOELECTRIC SW 光電 PQ-01
31 H1040C 1 AMPLIFIER アンプ PS2-61
32 S3135A 2 SW, PHOTOELECTRIC SW 光電 PS52
33 S3035A 2 SPROCKET スプロケット RS25-14T 1 Type
34 T2003A 1 CHAIN チェーン RS25NP34 link
35 K5173A SCREW, C/R PAN 小ネジ 十穴鍋 M3X10L
36 K5178T SCREW, C/R PAN 小ネジ 十穴鍋 M3X12L
37 K5255A SCREW, HEX SOCKET BUTTON 小ネジ六角穴ボタン M3X4L
38 N1080A NUT, HEX ナット 六角 M4 P=0.7
39 N4015A SCREW, HEX SOCKET SET ネジ 六角穴止め M4X4L
40 W1023A WASHER, LOCK ワッシャ スプリング 5M/M
IP-ⅢE PARTS LIST ver11 23 - 2
23.パーツ排出装置(QPG)
23.Parts ejector(QPG)