IP-IIIE-11 - 第89页
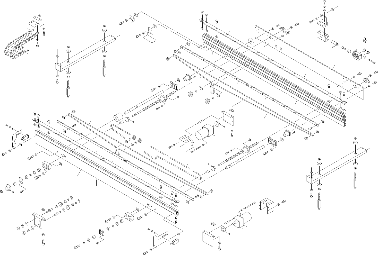
25.アウトコンベア(QQC) 25.Out conveyor(QQC) 番号 図番 & コード番号 個数 品名 規格 備考 No. Drg.No. & Code No. QTY Description Rating Remarks 1 IQC5413 2 HOUSING ハウジング 2 IQC5470 2 COLLAR カラー 3 IQC5791 2 PLATE プレート 4 IQC5920 2 COLLAR…

IP-
III
E PARTS LIST ver11
25.アウトコンベア(QQC)
25.Out conveyor(QQC)
25 - 1
25.アウトコンベア(QQC)
25.Out conveyor(QQC)
Ref.31-1
Ref.31-1
Ref.31-1
Ref.33-7
C
C
D
F
H
19
7
42
78
89
77
18
57
67
80
93
14
80
97
8
6
12
96
65
7
3
85
88
55
13
73
8
43
44
36
8
73
55
13
96
65
7
3
85
88
28
73
16
10
73
8
30
29
78
88
71
78
89
88
78
90
86
66
66
99
47
11
92
58
23
45
37
7
85
89
83
79
91
78
88
71
78
89
78
88
41
31
8
73
73
15
10
8
49
79
92
8
51
79
92
G
H
D
E
F
7
32
85
87
75
17
17
75
39
7
52
85
87
17
75
17
75
39
7
38
78
89
79
92
62
61
60
A
B
A
B
7
42
78
89
18
77
19
80
93
57
67
14
80
97
8
59
35
78
89
84
81
98
85
89
7
1
85
88
63
4
5
63
72
24
26
82
78
89
7
34
78
88
40
64
68
64
56
70
82
78
76
85
89
7
85
88
1
63
4
5
63
24
26
54
74
72
77
8
46
78
89
59
84
81
98
10
16
73
73
8
27
8
73
55
13
36
31
30
8
6
12
69
73
8
73
15
10
8
73
55
13
43
44
20
25
2
54
77
21
22
80
94
33
22
80
94
77
54
2
25
x10
208
176
165
175
161
175
161
175
161
183
162
176
167
175
161
13
13
B
A
139
26

25.アウトコンベア(QQC)
25.Out conveyor(QQC)
番号 図番 & コード番号 個数 品名 規格 備考
No. Drg.No. & Code No. QTY Description Rating Remarks
1 IQC5413 2 HOUSING ハウジング
2 IQC5470 2 COLLAR カラー
3 IQC5791 2 PLATE プレート
4 IQC5920 2 COLLAR カラー
5 IQC5931 2 COLLAR カラー
6 IQC6041 4 RETAINER, BEARING 押え ベアリング
7 IQC6062 15 NUT ナット
8 IQC6072 56 NUT ナット
10 IQC6301 8 NUT, SQUARE ナット 四角
11 MQC0320 1 KNUCKLE ナックル
12 MQC1061 4 PULLEY プーリ
13 MQC1290 4 PULLEY プーリ
14 MQC3293 2 COVER カバー
15 MQC3313 2 GUIDE ガイド
16 MQC3323 2 GUIDE ガイド
17 MQC3440 8 WASHER ワッシャ
18 MQC3501 2 PULLEY プーリ
19 MQC3901 8 SPACER スペーサ
20 MQC3941 1 STOPPER ストッパ
21 NQC0111 1 BALL SCREW ボールネジ
22 NQC0431 4 NUT ナット
23 NQC0441 1 PIN ピン
24 NQC0490 2 PLATE プレート
25 NQC0610 2 BAR, GUIDE バー ガイド
26 NQC0630 2 COLLAR カラー
27 PQC0120 1 PLATE, SIDE プレート サイド
28 PQC0130 1 PLATE, SIDE プレート サイド
29 PQC0152 1 PLATE, SIDE プレート サイド
30 PQC0181 2 PLATE プレート
31 PQC0191 2 PLATE プレート
32 PQC0210 1 PLATE プレート
33 PQC0220 1 BALL SCREW ボールネジ
34 PQC0230 1 BKT BKT
35 PQC0240 1 BKT BKT
36 PQC0314 2 CONVEYOR, BELT コンベア ベルト
37 PQC0321 1 BKT BKT
38 PQC0330 1 BKT BKT
39 PQC0340 4 BOLT, STUD ボルト スタッド
40 PQC0390 2 SHAFT シャフト
IP-ⅢE PARTS LIST ver11 25 - 2
25.アウトコンベア(QQC)
25.Out conveyor(QQC)

25.アウトコンベア(QQC)
25.Out conveyor(QQC)
番号 図番 & コード番号 個数 品名 規格 備考
No. Drg.No. & Code No. QTY Description Rating Remarks
41 PQC0400 1 STOPPER ストッパ
42 PQC0510 2 BKT BKT
43 PQC0640 2 GUIDE, BELT ガイド ベルト
44 PQC0650 2 GUIDE, BELT ガイド ベルト
45 PQC0660 1 HOLDER ホルダ
46 PQC0670 1 BKT BKT
47 PQC0750 1 CYLINDER, AIR シリンダ エアー
49 QQC0760 1 BKT BKT
51 QQC0790 1 BKT, WIRING BKT 配線
52 QQC0800 1 PLATE プレート
54 CLC3430 3 SPROCKET スプロケット
55 CLC9191 4 NUT ナット
56 GVC0350 2 COLLAR カラー
57 H4013A 2 HEAD, GEAR ヘッド ギヤ 6RH-DZ7.5R 039
58 . 1 PIN, NEEDLE ピン ニードル 5゜X27.3L
59 S3122A 2 SW, PHOTOELECTRIC SW 光電 E3S-LS3C1D
60 K1049A 1 FIXTURE 金具 HPU2-FAO
61 K4164T 1 FLEXIBLE TRACK ケーブルベア HPU206-R3813 Link
62 K1052A 1 FIXTURE 金具 HRU2-MAO
63 H4440A 4 BEARING ベアリング L-1910ZZ
64 H4445A 4 BEARING ベアリング LF-1050ZZ
65 H4429H 2 BEARING, BALL ベアリング ボール LMK16UU
66 A4067T 2 ELBOW エルボ M-5ALHU-4
67 M5063H 2 MOTOR, REVERSIBLE モータ リバーシブル RM-H6A6ZMR244
68 S3034A 2 SPROCKET スプロケット RS25-13T2 Type
69 T2034H 1 CHAIN チェーン RS25NP282 Link
70 S1022A 2 CIR-CLIP サークリップ ST-EW-4
71 H4123A 2 BEARING ベアリング UFL000
72 K5359A
SCREW, HEX SOCKET COUNTERSUNK
小ネジ 六角穴皿 M4X6L
73 K5261H SCREW, HEX SOCKET BUTTON 小ネジ六角穴ボタン M5X12L
74 N1014A 1 NUT, FINE U ナット ファインU AN00
75 N1092A NUT, HEX ナット 六角 M10 P=1.5
76 N1085A NUT, HEX ナット 六角 M6 P=1.0
77 N4027A SCREW, HEX SOCKET SET ネジ 六角穴止め M4X5L
78 W1024A WASHER, LOCK ワッシャ スプリング 6M/M
79 W1023A WASHER, LOCK ワッシャ スプリング 5M/M
80 W1022A WASHER, LOCK ワッシャ スプリング 4M/M
81 W1021A WASHER, LOCK ワッシャ スプリング 3M/M
82 W1045A WASHER, FLAT ワッシャ 平 4W-6
IP-ⅢE PARTS LIST ver11 25 - 3
25.アウトコンベア(QQC)
25.Out conveyor(QQC)