Horizon Mechanical - 第24页
22 Mechanical Drawings 156273 Issue 2 T ransit Bracket, ASM GA A B C D REMOVE ALL BURRS & SHARP EDGES 45 6 1 2 3 45 6 1 2 3 A B C E E PROJECTION D DRAWN APPROVED DATE C COPYRIGHT DO NOT SCALE SCALE TITLE DRAWING NUMB…

Mechanical Drawings 21
156266 Issue 3 Screen Depth Adjuster, ASM
54321
A
B
CC
B
A
12345
67
8
910
11 12
13
6
7
8
9
10 11
12
13
D
E
F
G
H
I
D
E
F
G
H
I
PROJECTION
DRAWN
APPROVED
DATE
C
COPYRIGHT
DO NOT SCALE
SCALE
TITLE
DRAWING NUMBER
2000
BOM NUMBER
ITEM PART NO. DESCRIPTION QTY.
1
156267 SQUARE GUIDE TUBE 1
2
156268_B LEAD NUT, PRT OF 156268 1
3
156270 END SHIELD 1
4
156281 STOPPER ARM 1
5
156283 GUIDE BLOCK 1
6
156284 POINTER 2
7
156285 STRIP 1
8
156286 SCALE, METRIC 1
9
156419 SCALE, IMPERIAL 1
10
700402 SCREW M3X8 CSK.SLTD.M/C ST.ST 4
THIS DRAWING AND THE COPYRIGHT
IN IT, IS THE PROPERTY OF
DEK PRINTING MACHINES LIMITED
IT MAY NOT BE COPIED, REPRODUCED,
PUBLISHED OR DISCLOSED IN WHOLE
OR IN PART WITHOUT OUR WRITTEN
CONSENT.
1:1
B.STARKE
GA FOR:
SCREEN DEPTH ADJUSTER, ASM
06-Nov-98
156266
156319
SH 1
OF 1
A
0
LATEST
ISSUE
No. DATE DCR INITIAL
03 230299 21056 BS
SECTION X-X
SCALE 3:4
SEE DETAIL A
SEE DETAIL B
DETAIL A
SCALE 2:1
DETAIL B
SCALE 2:1
1
1
6
2
10
4
8
1
9
1
2
1
4
1
5
1
7
1
3
1

22 Mechanical Drawings
156273 Issue 2 Transit Bracket, ASM GA
A
B
C
D
REMOVE ALL BURRS & SHARP EDGES
456
1
2
3
456
1
2
3
A
B
C
E
E
PROJECTION
D
DRAWN
APPROVED
DATE
C
COPYRIGHT
DO NOT SCALE
SCALE
TITLE
DRAWING NUMBER
1999
BOM NUMBER
THIS DRAWING AND THE COPYRIGHT
IN IT, IS THE PROPERTY OF
DEK PRINTING MACHINES LIMITED
IT MAY NOT BE COPIED, REPRODUCED,
PUBLISHED OR DISCLOSED IN WHOLE
OR IN PART WITHOUT OUR WRITTEN
CONSENT.
2:5
ACR
TRANSIT BRACKET, ASM
30-Oct-98
156273
156301
SH 1
OF 1
A
2
ITEM PART NO. DESCRIPTION QTY.
1
113072 M8 STUDDING 120 LONG 4
2
129125 TRANSIT BRACKET PASTE DISPENSER 1
3
156242 RESTRAINER, ACTUATOR 3
4
156246 TRANSIT BRACKET 2
5
156247 STOP, CARRIAGE RIGHT 1
6
156250 STOP, CARRIAGE LEFT 1
7
156416 PROFLOW MECH. TRANSIT BRACKET 1
8
156417 SQUEEGEE MECH. TRANSIT BRKT. 1
9
156841 CAMERA BRACKET 1
10
700115 SCREW M5X12 CAP HD ST.ST 9
11
700116 SCREW M5X16 CAP HD ST.ST 11
12
700501 NUT M5 NI-LOCK 985 2
13
700507 NUT M8 FULL ST.ST 12
14
700603 WASHER M5 PLAIN FORM A ST.ST 19
15
700605 WASH M8 PLAIN FRM A CLEAR ZN.PL 12
16
700624 WASHER 2BA PLAIN LARGE T2 ST.ST 4
LATEST
ISSUE
No. DATE DCR INITIAL
02 30-Sep-99 21317 ACR
1
3
4
11
13
14
15
16
2
5
6
10
12
7
8
9

Mechanical Drawings 23
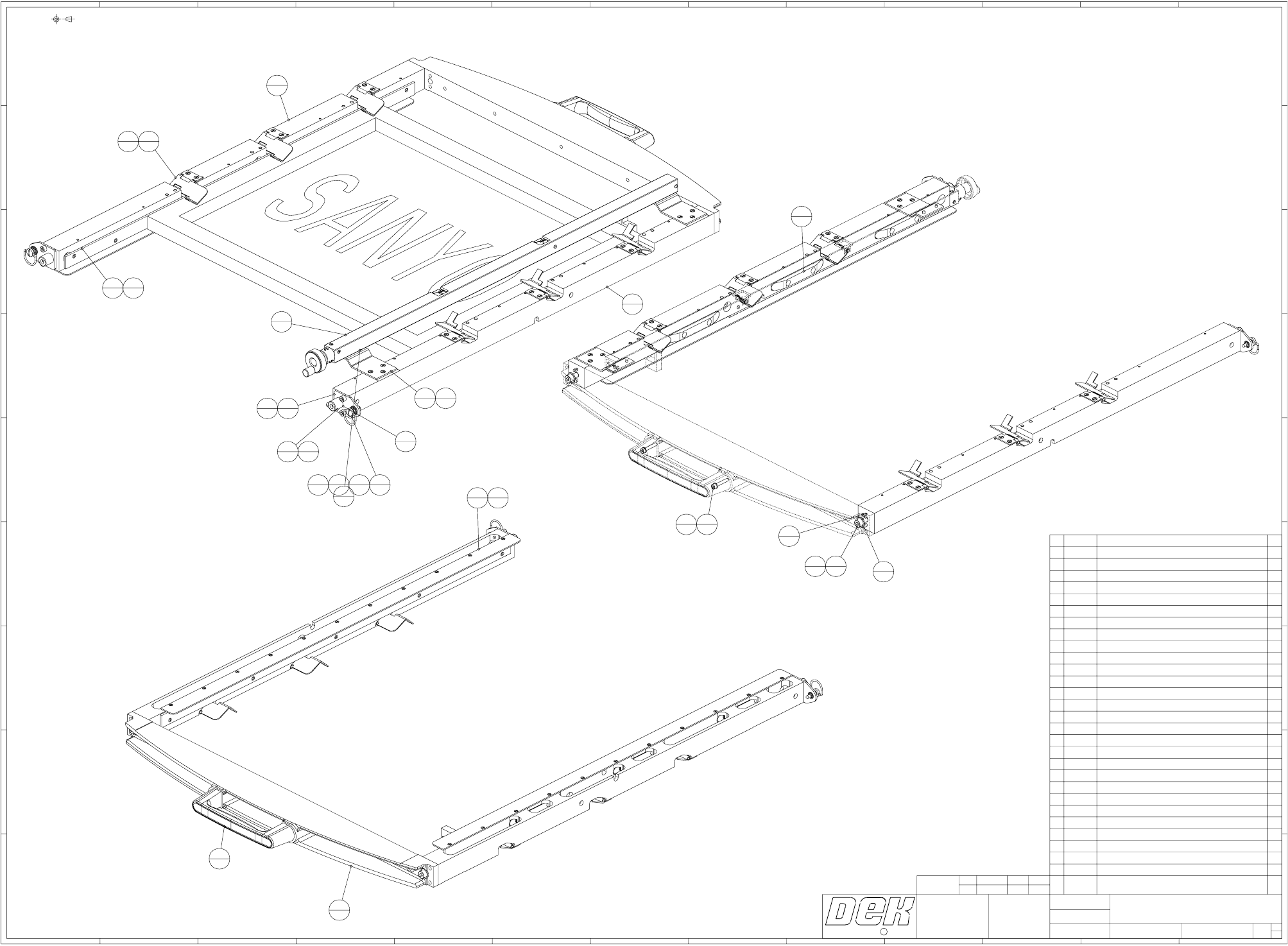
156337 Issue 3 Sanyo Chase Adaptor
54321
A
B
CC
B
A
12345
67
8
910
11 12
13
6
7
8
9
10 11
12
13
D
E
F
G
H
I
D
E
F
G
H
I
PROJECTION
DRAWN
APPROVED
DATE
C
COPYRIGHT
DO NOT SCALE
SCALE
TITLE
DRAWING NUMBER
2000
BOM NUMBER
ITEM PART NO. DESCRIPTION QTY.
1
128361 EJECTOR SPRING 2
2
128364 RETAINER 2
3
136716 PIN CYLINDRICAL 2
4
136717 PIN FLATTENED 2
5
156211 STENCIL LOCATION SKI, ASM 3
6
156326 CUPPED WEAR WASHER 2
7
156327 1/4 TURN STUD, BAIL TYPE 2
8
156341 HANDLE 1
9
156342 STENCIL SUPPORT STRIP, ADAPTER 2
10
156343 ADAPTER STENCIL GUIDE STRIP 1
11
156361 BRACKET, 1/4 TURN FASTENER 2
12
156364 FOOT 2
13
156383 CHASE ADAPTER, CASTING 1
14
156409 CHASE ADAPTER ARM, RH 1
15
156410 CHASE ADAPTER ARM, LH 1
16
156438 SCREEN DEPTH ADJUSTER, SANYO 1
17
156460 BRACKET 2
18
156528 HINGE, SANYO ADAPTER 6
19
700002 SCREW M3X6 PAN.HD SLTD MC ST.ST 9
20
700050 SCREW M4X6 PAN.HD SLTD MC ST.ST 4
21
700112 SCREW M4X16 CAP HD ST.ST 2
22
700119 SCREW M5X30 CAP HD ST.ST 2
23
700123 SCREW M6X16 CAP HD ST.ST 4
24
700402 SCREW M3X8 CSK.SLTD.M/C ST.ST 22
25
700406 SCREW M4X10 CSK.SLTD.M/C ST.ST 12
26
700442 SCREW M4X12 CSK.SLTD.M/C ST.ST 6
27
700603 WASHER M5 PLAIN FORM A ST.ST 2
28
700605 WASH M8 PLAIN FRM A CLEAR ZN.PL 2
29
700901 BOLT M8X35 CAP HD ST.ST 2
THIS DRAWING AND THE COPYRIGHT
IN IT, IS THE PROPERTY OF
DEK PRINTING MACHINES LIMITED
IT MAY NOT BE COPIED, REPRODUCED,
PUBLISHED OR DISCLOSED IN WHOLE
OR IN PART WITHOUT OUR WRITTEN
CONSENT.
1:2
B.STARKE
GA OF: SANYO CHASE ADAPTER
09-Feb-99
156337
156462
SH 1
OF 1
A
0
LATEST
ISSUE
No. DATE DCR INITIAL
03 200499 21108 BS
1
2
2
2
6
2
7
2
10
1
11
2
12
2
14
1
15
1
16
1
17
2
21
2
24
12
25
12
26
6
20
4
18
6
19
9
23
4
8
1
9
2
13
1
24
10
3
2
4
2
5
3
22
2
27
2
28
2
29
2