Horizon Mechanical - 第27页
Mechanical Drawings 25 156438 Issue 3 Screen Depth Adjuster , Sanyo 5 4 3 2 1 A B C C B A 123 45 67 8 9 10 11 12 13 6 7 8 9 10 11 12 13 D E F G H I D E F G H I PROJECTION DRAWN APPROVED DATE C COPYRIGHT DO NOT SCALE SCAL…

24 Mechanical Drawings
156384 Issue 5 Spring Beam Assembly GA
A
B
C
D
REMOVE ALL BURRS & SHARP EDGES
456
1
2
3
456
1
2
3
A
B
C
E
E
PROJECTION
D
DRAWN
APPROVED
DATE
C
COPYRIGHT
DO NOT SCALE
SCALE
TITLE
DRAWING NUMBER
2000
BOM NUMBER
THIS DRAWING AND THE COPYRIGHT
IN IT, IS THE PROPERTY OF
DEK PRINTING MACHINES LIMITED
IT MAY NOT BE COPIED, REPRODUCED,
PUBLISHED OR DISCLOSED IN WHOLE
OR IN PART WITHOUT OUR WRITTEN
CONSENT.
1:1
R PIATEK
SPRING BEAM GA
04-Feb-99
156384
PART OF 156312
SH 1
OF 1
A
2
ITEM PART NO. DESCRIPTION QTY.
1
156024 CLAMP PLATE 4
2
156252 OUTER SPRING MTG. PLATE 1
3
156253 SPRING BEAM 2
4
156255 ATTACHMENT BLOCK 1
5
156287 UPPER SOLID 2
6
156288 LOWER SOLID 2
LATEST
ISSUE
No. DATE DCR INITIAL
05 20-DEC-00 26573 PH
NOTE: -
1. ITEM 6 TO BE MOUNTED ON THE OUTER FACE OF
ITEM 3 IN BOTH INSTANCES.
2. ALSO AVAILABLE AS BOM 156971.
1
4
5
6
NOTE ORIENTATION
OF HOLE
2
3

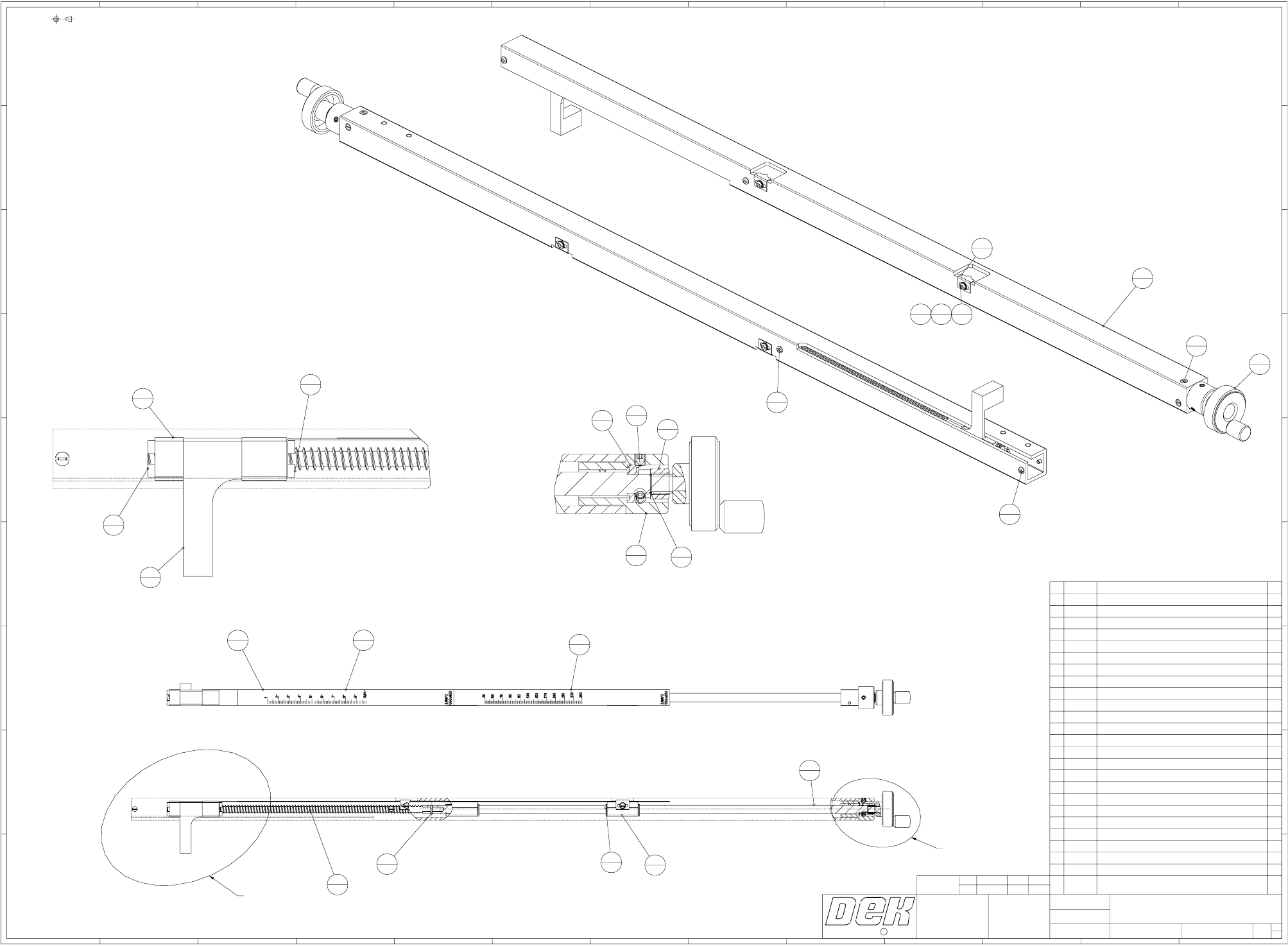
Mechanical Drawings 25
156438 Issue 3 Screen Depth Adjuster, Sanyo
54321
A
B
CC
B
A
12345
67
8
9 10
11 12
13
6
7
8
9
10 11
12
13
D
E
F
G
H
I
D
E
F
G
H
I
PROJECTION
DRAWN
APPROVED
DATE
C
COPYRIGHT
DO NOT SCALE
SCALE
TITLE
DRAWING NUMBER
2000
BOM NUMBER
ITEM PART NO. DESCRIPTION QTY.
1
156270 END SHIELD 1
2
156275 HAND WHEEL 1
3
156279 INSERT 2
4
156280 E-CLIP D1500 0080 4
5
156281 STOPPER ARM 1
6
156283 GUIDE BLOCK 1
7
156284 POINTER 2
8
156439 SANYO ADAPTER, METRIC SCALE 1
9
156440 SANYO ADATER, IMPERIAL SCALE 1
10
156441 CHASE ADAPTER, STRIP 1
11
156442 CHASE ADAPTER, SHAFT 1
12
156443 CHASE ADAPTER, GUIDE TUBE 1
13
165905 LEADSCREW & NUT^SDA^CH ADAPT 1
14
165914 BUSH^SDA^CH ADAPT 1
15
700001 SCREW M3X5 PAN.HD SLTD MC ST.ST 2
16
700002 SCREW M3X6 PAN.HD SLTD MC ST.ST 4
17
700105 SCREW M3X20 CAP HD ST.ST 4
18
700106 SCREW M3X25 CAP HD ST.ST 4
19
700402 SCREW M3X8 CSK.SLTD.M/C ST.ST 4
20
700518 NUT M8 NI-LOCK 985 1
21
700601 WASHER M3 PLAIN FORM A ST.ST 2
22
700609 WASHER M3 CRINKLE BE/CU 2
23
700763 PIN 2DIA X 10LG SPR(GROVERLOCK) 1
24
700817 SCREW, CONE POINT M4x5 SKT SET 3
25
B0059 BEARING DGBB SSL1680ZZ 1
THIS DRAWING AND THE COPYRIGHT
IN IT, IS THE PROPERTY OF
DEK PRINTING MACHINES LIMITED
IT MAY NOT BE COPIED, REPRODUCED,
PUBLISHED OR DISCLOSED IN WHOLE
OR IN PART WITHOUT OUR WRITTEN
CONSENT.
1:1
B.STARKE
GA FOR:
SCREEN DEPTH ADJUSTER, SANYO
240299
156438
156470
SH 1
OF 1
A
0
LATEST
ISSUE
No. DATE DCR INITIAL
03
21-Nov-02 27816 M
SECTION X-X
SCALE 3:4
SEE DETAIL A
SEE DETAIL B
DETAIL A
SCALE 2:1
DETAIL B
SCALE 2:1
12
1
2
1
7
2
15
2
19
4
21
2
22
2
16
2
16
2
11
1
3
2
4
4
23
1
13
1
10
1
8
1
9
1
5
1
6
1
17
4
18
4
20
1
24
3
25
1
1
1
14
1

26 Mechanical Drawings
156451 Issue 4 Strain Gauge Beam GA
A
B
C
D
REMOVE ALL BURRS & SHARP EDGES
456
1
2
3
456
1
2
3
A
B
C
E
E
PROJECTION
D
DRAWN
APPROVED
DATE
C
COPYRIGHT
DO NOT SCALE
SCALE
TITLE
DRAWING NUMBER
2000
BOM NUMBER
THIS DRAWING AND THE COPYRIGHT
IN IT, IS THE PROPERTY OF
DEK PRINTING MACHINES LIMITED
IT MAY NOT BE COPIED, REPRODUCED,
PUBLISHED OR DISCLOSED IN WHOLE
OR IN PART WITHOUT OUR WRITTEN
CONSENT.
1:1
R PIATEK
STRAIN GAUGE BEAM G.A.
08-Feb-99
156451
156458
SH 1
OF 1
A
2
ITEM PART NO. DESCRIPTION QTY.
1
155812 LOAD CELL LOOM BOM 1
2
156024 CLAMP PLATE 4
3
156252 OUTER SPRING MTG. PLATE 1
4
156253 SPRING BEAM 1
5
156255 ATTACHMENT BLOCK 1
6
156287 UPPER SOLID 2
7
156288 LOWER SOLID 2
LATEST
ISSUE
No. DATE DCR INITIAL
04 20-DEC-00 26573 PH
NOTES: -
1. ORIENTATE ITEM 1 AS SHOWN SO THAT THE STRAIN GAUGE
IS ON THE INSIDE FACE WITH THE WIRE PROTRUDING WHERE SHOWN.
2. ITEM 7 TO BE MOUNTED ON THE OUTER FACE OF ITEMS 1 AND 4.
M/TRAY 156467
F/BOM 156469
2
5
6
7
SEE NOTE 1
3
1
4
NOTE ORIENTATION
OF HOLE