P-311-003 - 第118页
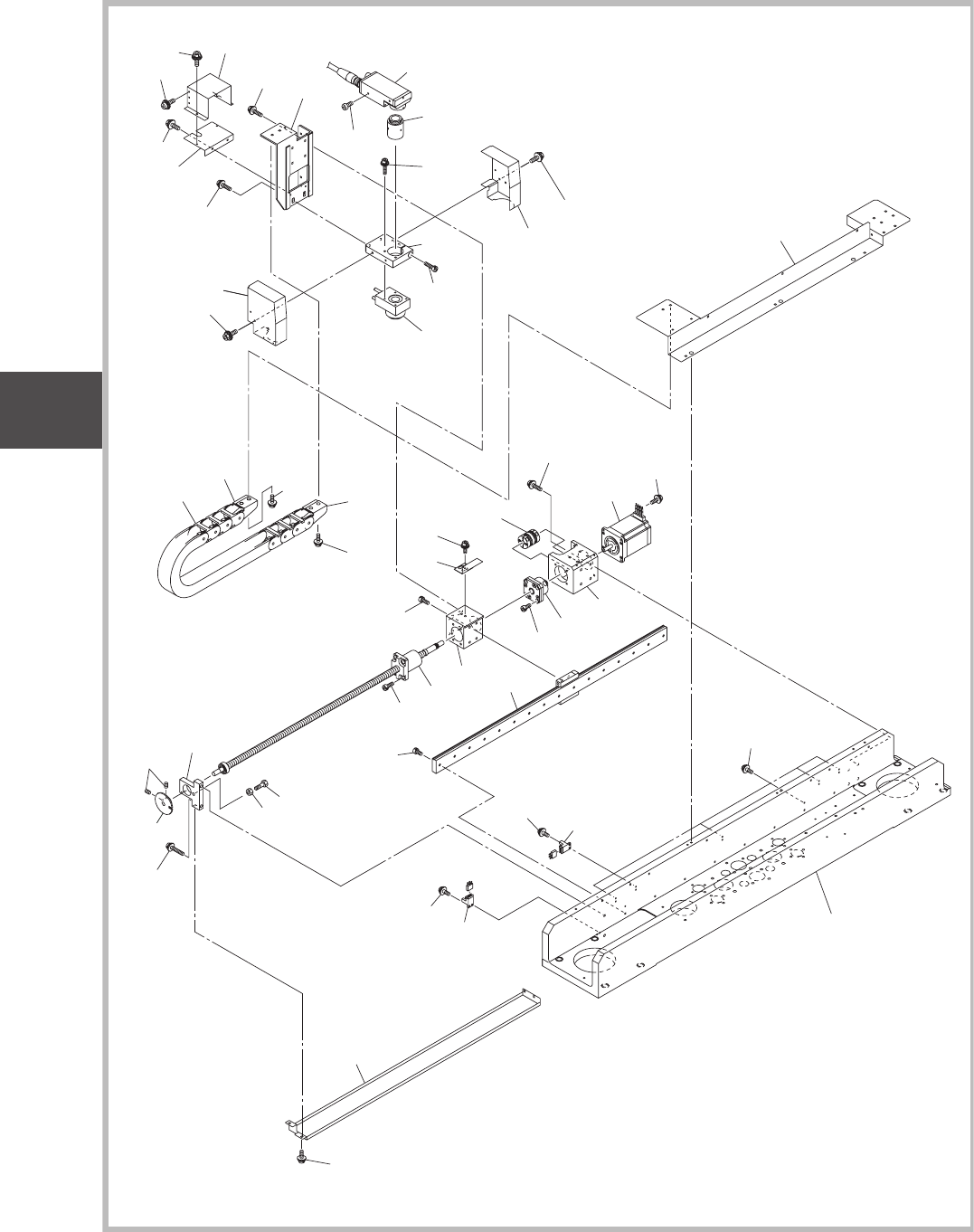
Fig. C2-3 スクリーン認識部 Stencil Recognition Section 261 283 278 2F6 266 267 2F1 2F7 2F8 2G1 2F9 2G0 2G4 299 2G6 2G3 2G2 2G5 2F5 274 271 272 273 262 265 263 264 288 2F2 2F3 2F4 2B7 2B8 2B9 2C0 2C1 2C2 275 276 277 2B6 2B5 2B2 2…

Key No. PART No. PART NAME Q’ty
REMARKS
NOTE
0912-002
101 09003104 SQ_CYL1_ASSY 1 1090003102-001
102 225B0002 AIR_LINE_EQPT 2 1090003102-002
103 225F0368 PIPE_FITTINGS 2 1090003102-003
104 224C0613 CYLINDER 2 1090003102-004
105 225B0002 AIR_LINE_EQPT 4 1090003102-005
106 221AA040 ROHS_HEX-SCT 8 1090003102-006
107 221AA240 ROHS_HEX-SCT 4 1090003102-007
108 221AA016 ROHS_HEX-SCT 16 1090003102-008
109 222J0229 BUSH_BALL 4 1090003102-009
112 216Q0046 NOB 2 1090003102-012
113 226D0133 NOB 2 1090003102-013
118 211G4504 BLOCK 2 1090003102-018
119 221FA014 NUT_HEX 2 1090003102-019
120 211G5804 BLOCK 2 1090003102-020
121 221AA048 ROHS_HEX-SCT 4 1090003102-021
122 221FA011 NUT_HEX 4 1090003102-022
123 211G6366 BLOCK 2 1090003102-023
124 221HA106 WASHER 4 1090003102-024
125 211E1151 SPACER 4 1090003102-025
126 222M0704 SPRING 4 1090003102-026
154 09003105 SQ_CYL2_ASSY 1 1090003102-054
156 221HA006 WASHER 4 1090003102-056
157 221HA106 WASHER 4 1090003102-057
Fig. C2-2
Fig. C2
UNIT-2
Fig. C2
SQUEEGEE
SIGMA-P4

Fig. C2-3
スクリーン認識部
Stencil Recognition Section
261
283
278
2F6
266
267
2F1
2F7
2F8
2G1
2F9
2G0
2G4
299
2G6
2G3
2G2
2G5
2F5
274
271
272
273
262
265
263
264
288
2F2
2F3
2F4
2B7
2B8
2B9
2C0
2C1
2C2
275
276
277
2B6
2B5
2B2
2C4
2C8
2C5
2C3
2D8
2D3
2D2
2D6
2D1
2D7
2B3
2B1
268
269
270
2B4
280
281
282
2A0
2A1
2A2
294
290
289
295
296
297
291
292
293
See Fig.C2-1
Key No.28
See Fig.C2-1
Key No.87
1102-003
Fig. C2
スキージヘッド部
SQUEEGEE HEAD SECTION
UNIT-2
Fig.C2
SQUEEGEE

Key No. PART No. PART NAME Q’ty
REMARKS
NOTE
0912-002
261 23G10056 SENSOR_PHOTO 5 1090003102-061
262 221DA011 MACHINE_SCREW 10 1090003102-062
263 221HA203 WASHER 10 1090003102-063
264 221HA003 WASHER 10 1090003102-064
265 226J2593 PIN 2 1090003102-065
266 221AA017 ROHS_HEX-SCT 8 1090003102-066
267 222L0968 GUIDE_LINEAR 1 1090003102-067
268 221AA034 ROHS_HEX-SCT 2 1090003102-068
269 221HA005 WASHER 2 1090003102-069
270 221HA105 WASHER 2 1090003102-070
271 221DA011 MACHINE_SCREW 2 1090003102-071
272 221HA203 WASHER 2 1090003102-072
273 221HA003 WASHER 2 1090003102-073
274 23G10056 SENSOR_PHOTO 1 1090003102-074
275 221AA017 ROHS_HEX-SCT 4 1090003102-075
276 221HA004 WASHER 4 1090003102-076
277 221HA104 WASHER 4 1090003102-077
278 0900D109 ROHS_HEX-SCT 4 1090003102-078
280 221AA016 ROHS_HEX-SCT 2 1090003102-080
281 221HA004 WASHER 2 1090003102-081
282 221HA104 WASHER 2 1090003102-082
283 211DE733 PLATE 1 1090003102-083
288 221AA120 ROHS_HEX-SCT 4 1090003102-088
289 226J2505 CABLE_VEYOR 1 1090003102-089
290 226J2507 CABLE_VEYOR 1 1090003102-090
291 221AA027 ROHS_HEX-SCT 2 1090003102-091
292 221HA005 WASHER 2 1090003102-092
293 221HA105 WASHER 2 1090003102-093
294 226J2506 CABLE_VEYOR 1 1090003102-094
295 221AA027 ROHS_HEX-SCT 2 1090003102-095
296 221HA005 WASHER 2 1090003102-096
297 221HA105 WASHER 2 1090003102-097
299 211AD559 COVER 1 1090003102-099
2A0 221AA016 ROHS_HEX-SCT 4 1090003102-100
2A1 221HA004 WASHER 4 1090003102-101
2A2 221HA104 WASHER 4 1090003102-102
2B1 4Z110175 LIGHTING UNIT 1 2090006000-001
2B2 4Z100144 SCOPE_UNIT 1 2090006000-002
2B3 4U220095 UNIT CAMERA 1 2090006000-003
2B4 211J1598 STAY 1 2090006000-004
2B5 211G4293 BLOCK 1 2090006000-005
2B6 221AA044 ROHS_HEX-SCT 1 2090006000-006
2B7 221AA042 ROHS_HEX-SCT 2 2090006000-007
2B8 221HA006 WASHER 2 2090006000-008
2B9 221HA106 WASHER 2 2090006000-009
Fig. C2-3
Fig. C2
UNIT-2
Fig. C2
SQUEEGEE
SIGMA-P4