P-311-003 - 第167页
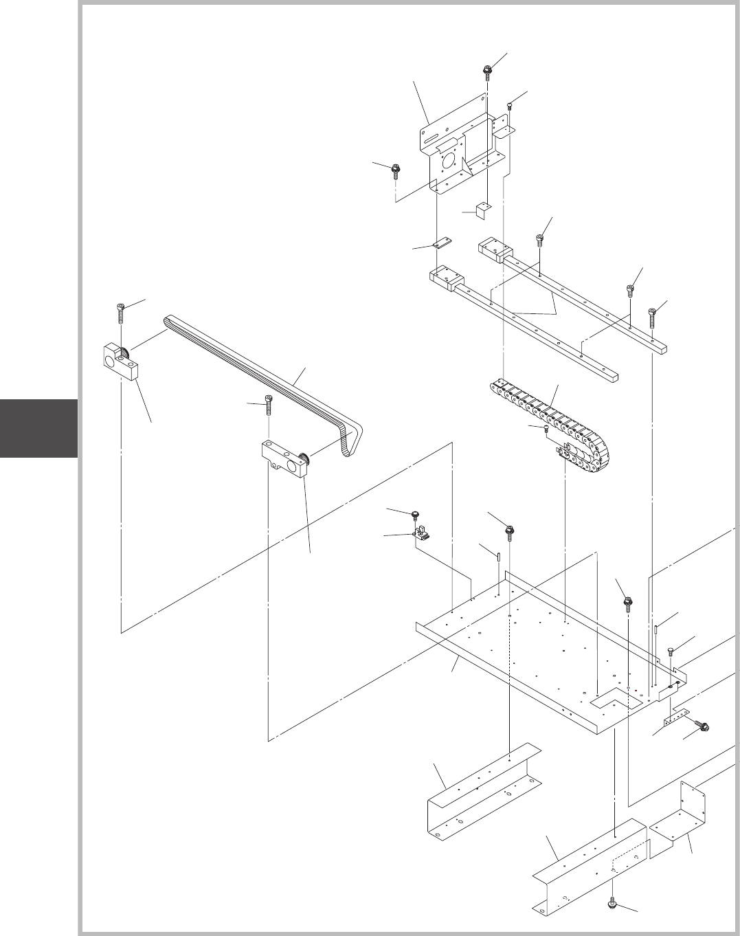
1 102-003 Fig. E1 Key No.102 See Fig. E1-2 Key No.121 See Fig. E1-2 47 46 43 42 41 38 36 35 33 52 36 35 32 53 24 13 14 42 41 38 8 42 41 48 40 19 10 42 41 39 26 25 27 18 54 23 Fig. E1-1 UNIT -4 Fig. E1 CONVEYOR1

Fig. E1-1
ベース
L
Base L
Key No.102
See Fig. E1-2
Key No.121
See Fig. E1-2
Key No.202
See Fig. E1-3
Key No.231
See Fig. E1-3
Key No.251
See Fig. E1-3
55
12
15
42
41
39
36
35
31
47
46
43
37
35
32
11
11
42
41
38
36
35
33
52
36
35
32
53
24
13
14
42
41
38
8
42
41
48
40
19
10
42
41
39
26
25
27
18
54
17
51
22
22
50
36
35
32
34
20
16
6
34
49
42
41
40
21
44
44
45
7
9
47
46
43
23
0912-002
Fig. E1
コンベア部 ( 手前基準L流れ )
CONVEYOR SECTION(FRONT REFERENCE LEFT FLOW)
UNIT-4
Fig. E1
CONVEYOR1

1102-003
Fig. E1
Key No.102
See Fig. E1-2
Key No.121
See Fig. E1-2
47
46
43
42
41
38
36
35
33
52
36
35
32
53
24
13
14
42
41
38
8
42
41
48
40
19
10
42
41
39
26
25
27
18
54
23
Fig. E1-1
UNIT-4
Fig. E1
CONVEYOR1

Key No. PART No. PART NAME Q’ty
REMARKS
NOTE
Fig. E1-1
6 0900C003 PLATE 1 109000201Q-006
7 211DE056 PLATE 2 109000201Q-007
8 0900C005 ROD 1 109000201Q-008
9 211DE521 PLATE 1 109000201Q-009
10 211FD648 BRACKET 1 109000201Q-010
11 211FE893 BRACKET 2 109000201Q-011
12 211FE540 BRACKET 1 109000201Q-012
13 0900C01P BRACKET 1 109000201Q-013
14 211FA032 BRACKET 1 109000201Q-014
15 211FE336 BRACKET 1 109000201Q-015
16 223L0396 BELT_TIMING 1 109000201Q-016
17 23G10056 SENSOR_PHOTO 1 109000201Q-017
18 223Q0762 PULLEY_TIMING 1 109000201Q-018
19 0900200Q ASSY_MOTOR 1 109000201Q-019
20 226J2575 MECH PARTS 1 109000201Q-020
21 222L0957 GUIDE_INER 2 109000201Q-021
22 226J2593 SHAFT 2 109000201Q-022
23 0900200M ASSY_SENSOR 1 109000201Q-023
24
0900200N
ASSY_SENSOR 1 109000201Q-024
25
0900200T
ASSY_VALVE 1 109000201Q-025
26 225B0059 AIR LINE EQPT 2 109000201Q-026
27 225F0656 PIPE_FITTINGS 1 109000201Q-027
31 221AA029 ROHS_HEX-SCT 4 109000201Q-031
32 221AA030 ROHS_HEX-SCT 8 109000201Q-032
33 221AA031 ROHS_HEX-SCT 2 109000201Q-033
34 221AA033 ROHS_HEX-SCT 4 109000201Q-034
35 221HA005 WASHER 14 109000201Q-035
36 221HA105 WASHER 10 109000201Q-036
37 221HA303 ROHS_WASHER 4 109000201Q-037
38 221AA016 ROHS_HEX-SCT 4 109000201Q-038
39 221AA017 ROHS_HEX-SCT 2 109000201Q-039
40 221AA020 ROHS_HEX-SCT 5 109000201Q-040
41 221HA004 WASHER 11 109000201Q-041
42 221HA104 WASHER 11 109000201Q-042
43 221AA006 ROHS_HEX-SCT 4 109000201Q-043
44 221AA008 ROHS_HEX-SCT 4 109000201Q-044
45 221AA010 ROHS_HEX-SCT 4 109000201Q-045
46 221HA003 WASHER 12 109000201Q-046
47 221HA103 WASHER 4 109000201Q-047
48 221FA007 NUT_HEX 4 109000201Q-048
49 221DA202 MACHINE_SCREW 2 109000201Q-049
50 221DA203 MACHINE_SCREW 2 109000201Q-050
51 221DA056 MACHINE_SCREW 1 109000201Q-051
52 221DA059 MACHINE_SCREW 2 109000201Q-052
53 221DA001 MACHINE_SCREW 2 109000201Q-053
1102-003
Fig. E1
SIGMA-P4
UNIT-4
Fig. E1
CONVEYOR1