P-311-003 - 第260页
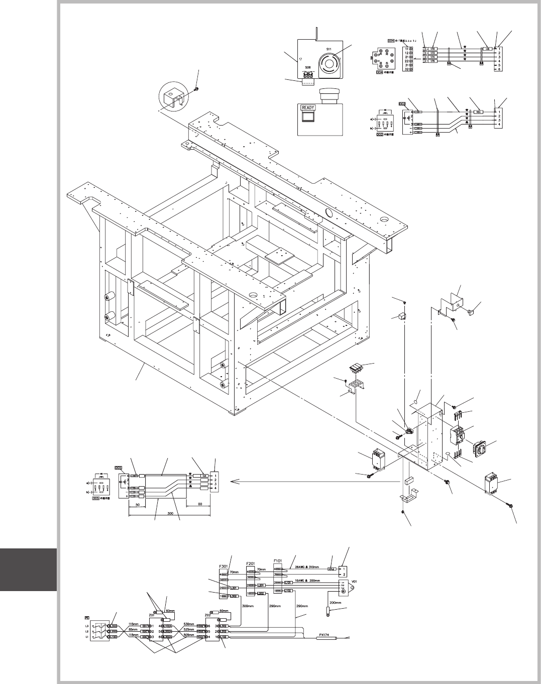
Fig. G1-5 ブレーカ、スイッチ Breaker , Switch 488 487 493 493 489 486 485 489 4B3 4B3 492 4D4 4D8 4E1 4E4 4E0 4A9 4B1 4A4 496 494 4B0 4C6 497 4C5 4A7 499 4A6 4A4 4A3 4A0 4A5 498 4A7 4A8 4A4 496 499 4A6 4C4 495 4B0 4C3 4E1 4E5 4D7…

MEMO

Fig. G1-5
ブレーカ、スイッチ
Breaker, Switch
488
487
493
493
489
486
485
489
4B3
4B3
492
4D4
4D8
4E1
4E4
4E0
4A9 4B1 4A4 496
494
4B0
4C6
497
4C5
4A7
499
4A6
4A4
4A3
4A0
4A5
498
4A7
4A8 4A4
496
499
4A6
4C4
495
4B0
4C3
4E1 4E5 4D7 4D6
4D9
4E2 4E5 4D9 4D7 4D5
4D1
4D2
4D3
490
491
4B5
4B3
483
4B3
4A1
4C7
DETAIL “F”
DETAIL
See Fig. G1-1
Key No.3
1
4B4
447
437
438
481
4C8
4C8
482
4B9
4B2
4B8
4B7
446
436
437
F
1102-003
Fig. G1
メカ廻り
MECHANICAL DISTRIBUTION
UNIT-6
Fig. G1
MECHA

Key No. PART No. PART NAME Q’ty
REMARKS
NOTE
1102-003
Fig. G1-5
Fig. G1
436 221AA030 ROHS_HEX-SCT 4 109000101R-036
437 221HA005 WASHER 6 109000101R-037
438 221HA105 WASHER 2 109000101R-038
446 221HA303 ROHS_WASHER 4 109000101R-046
447 221AA029 ROHS_HEX-SCT 2 109000101R-047
481 0900B015 BRACKET 1 109000100P-001
482 211FE903 BRACKET 1 109000100P-002
483 211FE427 BRACKET 1 109000100P-003
485 4S1B0032 SWITCH_BUTTON 1 109000100P-005
486 23H20003 ACCESSORY_SW 1 109000100P-006
487 4S230115 BREAKER 1 109000100P-007
488 226C0247 HANDLE 1 109000100P-008
489 211AC913 COVER 1 109000100P-009
490 4S300006 FUSE_SPECIAL 3 109000100P-010
491 4J200032 FUSE_HOLDER 3 109000100P-011
492 4V360007 SEMICO_VARISTOR 1 109000100P-012
493 4F300089 FILTER_NOISE 2 109000100P-013
494 23K10402 CASE_CONN 1 109000100P-014
495 23K10421 CASE_CONN 1 109000100P-015
496 4J300191 CAB_JOINTTERMIN 6 109000100P-016
497 4J300116 CAB_JOINTTERMIN 3 109000100P-017
498 4J300115 CAB_JOINTTERMIN 9 109000100P-018
499 4J300016 CAB_JOINTTERMIN 5 109000100P-019
4A0 4J300015 CAB_JOINTTERMIN 3 109000100P-020
4A1 226J0373 MOUNTING_BASE 4 109000100P-021
4A2 23N30737 ACCESS_WIRING(M 5 109000100P-022
4A3 23N20107 TUBE_WIRING 3 109000100P-023
4A4 23N20103 TUBE_WIRING 13 109000100P-024
4A5 23N20115 TUBE_WIRING 3 109000100P-025
4A6 23N20109 TUBE_WIRING 5 109000100P-026
4A7 23N20105 TUBE_WIRING 12 109000100P-027
4A8 23N20117 TUBE_WIRING 12 109000100P-028
4A9 23N20110 TUBE_WIRING 4 109000100P-029
4B0 0900B00V CORD BK 26-1500 1 109000100P-030
4B1 0900B00U CORD BL 26-2000 1 109000100P-031
4B2 221DA064 MACHINE_SCREW 1 109000100P-032
4B3 221DA053 MACHINE_SCREW 17 109000100P-033
4B4 221DA062 MACHINE_SCREW 2 109000100P-034
4B5 221DA052 MACHINE_SCREW 1 109000100P-035
4B6 23N30011 ACCESSORY_WRING 2 109000100P-036
4B7 221AA016 ROHS_HEX-SCT 2 109000100P-037
4B8 221HA004 WASHER 2 109000100P-038
4B9 221HA104 WASHER 2 109000100P-039
4C3 0900B00W CORD G/Y 14-150 1 109000100P-043
4C4 0900B00X CORD BK 18-1000 1 109000100P-044
UNIT-6
Fig. G1
MECHA
SIGMA-P4