P-311-003 - 第69页
Key No. P AR T No. P AR T NAME Q’ty REMARKS NOTE 604 21 1DE749 PLA TE 1 109000400D-004 605 213E0214 BOSS 1 109000400D-005 606 21 1DE750 PLA TE 1 109000400D-006 607 21 1G2013 BLOCK 2 109000400D-007 608 226J2593 SHAFT 2 10…

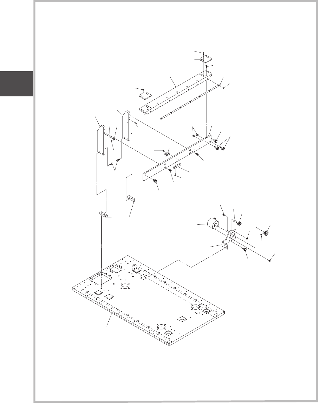
Fig. B1-7R
固定シュート ( 奥基準 )
Fixed Chute(Rear Reference)
613
612
609
610
615
609
607
625
626
619
620
621
623
618
623
624
630
617
646
648
647
644
649
645
655
658
657
656
652
651
650
654
653
652
611
614
616
627
616
628
606
605
604
608
608
622
See Fig. B1-6
Key No.591
0912-002
Fig. B1
テーブル、基板チャック部
TABLE, PCB CHUCK SECTION
UNIT-1
Fig. B1
TABLE

Key No. PART No. PART NAME Q’ty
REMARKS
NOTE
604 211DE749 PLATE 1 109000400D-004
605 213E0214 BOSS 1 109000400D-005
606 211DE750 PLATE 1 109000400D-006
607 211G2013 BLOCK 2 109000400D-007
608 226J2593 SHAFT 2 109000400D-008
609 223Q0663 PULLEY_TIMING 2 109000400D-009
610 223M0059 PULLEY_FLAT 2 109000400D-010
611 0900E04E PLATE 1 109000400D-011
612 0900E023 SIDE_PLATE 1 109000400D-012
613 0900E04F PLATE 1 109000400D-013
614 0900E034 BOLT 7 109000400D-014
615 211G5799 BLOCK 1 109000400D-015
616 0900E03W BOLT 6 109000400D-016
617 23G10002 SENSOR_PHOTO 1 109000400D-017
618 221AA008 ROHS_HEX-SCT 2 109000400D-018
619 221DA013 MACHINE_SCREW 2 109000400D-019
620 221HA003 WASHER 2 109000400D-020
621 221HA103 WASHER 2 109000400D-021
622 221AA017 ROHS_HEX-SCT 7 109000400D-022
623 221AA030 ROHS_HEX-SCT 4 109000400D-023
624 221AA031 ROHS_HEX-SCT 4 109000400D-024
625 221FA009 NUT_HEX 2 109000400D-025
626 221HA005 WASHER 2 109000400D-026
627 0900E04M SIDE_PLATE 1 109000400D-027
628 0900E04N SIDE_PLATE 1 109000400D-028
630 221CA026 SET_SCREW 1 109000400D-030
644 223M0059 PULLEY_FLAT 1 3090004008-004
645 223Q0749 PULLEY_TIMING 1 3090004008-005
646 09004038 ASSY_MOTOR 1 3090004008-006
647 223Q0663 PULLEY_TIMING 1 3090004008-007
648 0900E024 MOTAR_BRACKET 1 3090004008-008
649 221H0274 WASHER 1 3090004008-009
650 221AA006 ROHS_HEX-SCT 1 3090004008-010
651 221HA003 WASHER 1 3090004008-011
652 221HA103 WASHER 2 3090004008-012
653 221AA007 ROHS_HEX-SCT 1 3090004008-013
654 221HA301 ROHS_WASHER 1 3090004008-014
655 221CA005 SET_SCREW 2 3090004008-015
656 221FA009 NUT_HEX 1 3090004008-016
657 221HA005 WASHER 1 3090004008-017
658 221HA105 WASHER 1 3090004008-018
Fig. B1
0912-002
Fig. B1-7R
UNIT-1
Fig. B1
TABLE
SIGMA-P4

Fig. B1-8F
可動シュート ( 手前基準 )
Movable Chute(Front Reference)
755
722
721
761
717
716
716
761
717
727
737
733
737
733
726
725
724
704
724
707
703
723
724
724
725
726
731
730
727
727
726
731
730
729
731
730
726
731
730
728
731
730
726
731
730
732
728
736
736
752
751
750
756
757
758
754
753
752
706
706
708
713
714
703
723
705
702
701
718
718
709
709
710
712
749
745
746
748
744
747
719
719
720
720
734
735
117
1102-003
Fig. B1
テーブル、基板チャック部
TABLE, PCB CHUCK SECTION
UNIT-1
Fig. B1
TABLE