RL131中文规格书 - 第27页
RL131 2008.032 0 - 19 - 6. 印刷基板设计基准 6.1 印刷基板规格概要 ( 单位 : mm) 印刷基板的流向 50 ~ 50 8 30 缺口的最大尺寸 不允许元件存在的范围 机器前侧 5 ±0.1 ※ 5 ± 0.1 ※ 50 ~ 38 1 Min. 5 Min. 5 5 3 3 30 5 ±0.1 ※ φ 4 +0.1 0 φ 4 +0.1 0 注 1. ※ 印的 5 mm 为标准尺寸。其它尺寸为特殊规格 。…

RL131 2008.0320
- 18 -
5.
插入元件规格
5.1
元件尺寸和编带规格
RL131
可以插入的元件尺寸和编带规格如下所示。
此插入元件规格是,为了维持设备运转和品质的重要内容,请必须满足以下条件。
(
单位
: mm)
径向编带元件
RL131
H
16
~
20
※
1
Ho
16
~
20
Hn Max. 21
HT Max. 39
L Max. 22.5
W
Max. 12
※
1
标准类型
W L
D
Hn Ho
Hn H
Hn H
HT
D
Max. Ø13
※
1
H
16
~
20
※
1
Hn Max. 21
H2-2 Min. 16
HT Max. 39
L Max. 22.5
spare lead
类型
W
Hn
L
H
H2-2
W
Max. 12
※
1
H
16
~
20
※
1
Hn Max. 21
H
2-1
Min. 16
HT Max. 39
L Max. 22.5
直插型
WL
Hn
H2-1
H
W
Max. 12
※
1
・即使是
JIS
规格编带,元件的详细尺寸和产品强度随生产厂家不同而异,
使用时,请先试插件进行确认。
・元件形状需以底带为中心保持左右对称。
・包括引线端子的编带总厚度
(T
1
)
,
需要
Max. 1.5 mm
。
注
)
能够插入元件的尺寸,选择的卡盘有变化,请确认。
(
参照
P12)
使用大型
(W = 10 mm
以上或者
D = 10 mm
以上
)
的元件时,请在顶部的元件通路安装垫板
※
。
Z 轴、顶板
垫板
※
1
台机器标准配备的垫板数,
NM-EJR1A
是
5
个,
NM-EJR2A
是
10
个。
电阻・陶瓷电容器
电解电容器
径向异形元件 等
半固定电位计
轻触开关
径向异形元件 等
T
1
电阻网络
电容器网络
连接器 等

RL131 2008.0320
- 19 -
6.
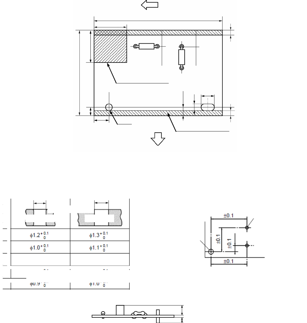
印刷基板设计基准
6.1
印刷基板规格概要
(
单位
: mm)
印刷基板的流向
50 ~ 508
30
缺口的最大尺寸
不允许元件存在的范围
机器前侧
5 ±0.1
※
5 ± 0.1
※
50 ~ 381
Min. 5
Min. 5
5
3 3
30
5 ±0.1※
φ4
+0.1
0
φ4
+0.1
0
注
1.
※印的
5 mm
为标准尺寸。其它尺寸为特殊规格。
2.
其它基板有缺口时,需要具体商讨。
6.2
印刷基板精度
6.3
基板死区
Max. 21 mm
Max. 7 mm
(
单位
: mm)
※プリント基板間のバラツキは±0.1mm以内
※リード線径がφ0.8の場合は、穴径はφ1.0 とする。
+0.1
0
印刷基板间的偏差在
±0.1 mm
以内
引线直径是
φ0.8 mm
时,孔直径是φ
1.0 mm
+0.1
0
φ
0.9
孔的种
类
以及直径
(
钻孔
)
+0.1
0
(
穿
孔
)
φ
1.0
+0.1
0
插
入孔
基
准
孔

RL131 2008.0320
- 20 -
6.4
基板端部的插入范围
■
N
扭曲的情况
单位
: mm
N
扭曲 引线弯曲角度
35°
时
A
部详细图
B
部详细图
插入方向
插入间距
0, 180 90, -90 0, 180 90, -90
5.0 mm
5.08 mm
0 90 0 90
180 -90 180 -90
2.5 mm
2.54 mm
注)其它印刷基板规格,按照以前规格。
5
5
4.5
9
4
8.5
5
5
3
5
8
5
8.8
5
5
3
2.5
3
5.5
1
8.5
2
5
5
5
5
4.5
5
4
8.5
9
3
5
5
2.5
3
4.5
5
9
4
8.5
5
5
10.5
10.5
2.5
3
5
5
5
2.5
3
5.5
1
8.5
2
5
5
5
2.5
3
4
5
4.5
8.5
95
5
6.5
2.5
11
2.5
3
4.5
95
5
2.5
5
3
8
8.8
5
5
2.5
11
4.5
2.5
5
1
5.5
3
5
6.5
11
5
3
2.5
4.5
95
5
(
长孔
)
2.5 mm Y
插入时
( )
尺寸
基板流向
X
方向不可插入的范围
不允许元件
存在的范围
Y 方向不可插入的范围