RL131中文规格书 - 第31页
RL131 2008.032 0 - 23 - 6.5 基板形状 有基板缺口、 基板止动器不是标准对应的情况时, 发生搬送堵塞, 由于凹陷引起的元件死区不能确保, 需要事先评 价 (具体商讨)。(另外,对基板厚度 和材料也同样需要事先评价。) 6.6 基板流向 基板纵横比:纵≦横(纵>横时请另 行联络) 6.7 基板上的邻接条件 ■ 插入卡盘的脱离方向 基板的流向 卡盘的脱离方向 机器前侧 -90 ° 90 ° 180 ° 0 ° ■ …

RL131 2008.0320
- 22 -
■
T
扭曲的情况
单位
: mm
A
部详细图
B
部详细图
插入方向
插入间距
0 90 0 90
180 -90 180 -90
5.0 mm
5.08 mm
注)其它印刷基板规格,按照以前规格。
5
5
3
10.5
3
10.5
1.5
3
5
5
3
11
3
8.5
1.5
5.5
5
5
3
10.5
1.5
7.5
7.5
10.5
5
5
8.5
3
1.5
5.5
11
3
5
5
3
10.5
11
7.5
1.5
7
5
5
3
2.5
7.5
10.5
11
7
5
3
5
12
3
10.5
1.5
5
5
3
10.5
11
2.5
7.5
7
(
长孔
)
2.5 mm Y
插入时
( )
尺寸
基板流向
X
方向不可插入的范围
不允许元件
存在的范围
Y 方向不可插入的范围

RL131 2008.0320
- 23 -
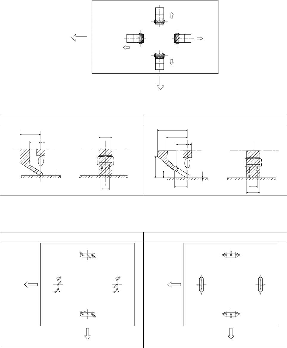
6.5
基板形状
有基板缺口、基板止动器不是标准对应的情况时,发生搬送堵塞,由于凹陷引起的元件死区不能确保,需要事先评
价
(具体商讨)。(另外,对基板厚度和材料也同样需要事先评价。)
6.6
基板流向
基板纵横比:纵≦横(纵>横时请另行联络)
6.7
基板上的邻接条件
■ 插入卡盘的脱离方向
基板的流向
卡盘的脱离方向
机器前侧
-90 °
90 °
180 °
0 °
■ 插入卡盘的死区
(
单位
: mm)
(1)
插入时
(2)
脱离动作时
(a
~
e
尺寸请参照别纸
)
13
7
2.5
8
0.9
5
b
7
2.5
8
0.9
5
a
d
c
e
6.8
基板下的邻接条件
■ 铁砧扭曲的弯曲方向
从基板上方看到的铁砧扭曲的弯曲方向
(1) N
扭曲
(2) T
扭曲
基板的流向
机器前侧
-90 °
90 °
180 °
0 °
基板的流向
机器前侧
-90 °
90 °
180 °
0 °

RL131 2008.0320
- 24 -
6.9
基板下的邻接条件
(
铁砧死区和元件邻接条件
)
■
N
扭曲 引线弯曲角度
35°
时
在基板下,如下图有铁砧
(
切割引线、扭曲单元
)
死区。根据基板下的高度位置,范围不同。
另外,元件的邻接条件,元件的插入顺序和引线的弯曲角度
(
扭曲角度
)
如下分类。
单位
: mm
从基板上方看到的铁砧死区
(
基板下
1 mm)
4.7
3.5
3.0
0.6
1.7
2.9
3.5
1.6
2.0
2.2
1.7
1.6
4.6
2.0
1.71.3
0.1
1.6
0.1
2.2
机器前面
(
基板下
2 mm)
5.2
3.2
5.0
3.4 4.0
1.3 0.7
0.7 1.3
1.3 4.2
5.1 5.7
3.0
2.9 0.6
0.21.9
0.1 0.7
0.7 2.9
2.9 3.0
机器前面
(
基板下
7 mm)
8.0
0.1
5.0
5.4 1.2
3.5
5.95.7
2.32.6
3.5
1.2 5.4
5.1 8.0
2.3 2.6
5.9 5.7
0.2
机器前面
※上图表示
X
方向
(90 °)
插入时的情况。
0 °
、
180 °
、
-90 °
插入时,请各自旋转进行参照。