RL131中文规格书 - 第51页
RL131 2008.032 0 - 43 - B -3 对应基准销规格。 Customer 基准销规格 ・ 需要追加基准销组合时,请选择定位销 ( φ A), 定位治具 (C), 定位杆 (D) 的尺寸。 C-1 对应卷盘元件。 Customer 对应卷盘元件 ・ 为了在元件供给部搭载卷盘元件的安装用工具和卷盘轴。 C-2 能够打印各种信息。 On-site 打印机 ・ 能够打印生产管理信息、程序数据等各种信息。 C-3 信号塔红灯亮…

RL131 2008.0320
- 42 -
A -1
扩大搬送基板尺寸。
(530 mm × 381 mm
以内
)
On-site
扩大搬送基板的尺寸
・ 最大尺寸
: 508 mm
×
381 mm
→
530 mm
×
381 mm
・ 和自动宽度调整
(
基准销:
X
方向
)
的组合,请与本公司联络。
A -2
为了将插入后的基板从出料部推入托盘箱支架的功能。
Factory
P-PUSH
・ 使用托盘箱式收纳装置时,需要将插件结束的基板推入托盘箱支架。
B -1
自动变更
XY
工作台、进料
・
部 出料部的导轨宽度。
Factory
自动调整宽度
・ 基板搬送部的进料部导轨、出料部导轨以及
X-Y
工作台部的导轨和定位销自动调整到印刷基板宽度的功能。宽度的设定,
根据上位数据或者内部数据进行。
・ 能够进行导轨宽度调整
(3
处
)
和定位销位置调整
(1
处
)
计
4
处,有进行所有
4
轴自动宽度调整和只进行导轨宽度调整的
3
轴自动宽度调整。
自动宽度调整的轴数和内容
3
轴自动调整宽度
4
轴自动调整宽度
进料部导轨宽度
出料部导轨宽度
X-Y
工作台导轨宽度
进料部导轨宽度
出料部导轨宽度
X-Y
工作台导轨宽度
定位销
出料部
部
定位销 (4 轴)
X-Y 工作台
・ 驱动方式是脉冲电机。最小移动单位是
0.1 mm
。
・ 有关
4
轴自动宽度调整,请另行咨询营业担当。
(
交货期对应需要与本公司联络
)
B -2
对应基板厚度
0.6 mm
~
2.0 mm
。
Customer
对应基板厚度
0.6 mm
~
2.0 mm
・ 根据基板厚度规格,需要调整
X-Y
工作台上的基板下压导轨以及插入导向单元的高度。
・ 能够对应标准基板厚度
1.6 mm
以外(
0.6 mm
~
2.0 mm
)的基板厚度。
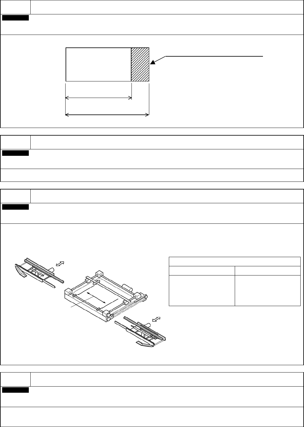
508 mm
530 mm
但是,斜线部分不可插入。

RL131 2008.0320
- 43 -
B -3
对应基准销规格。
Customer
基准销规格
・ 需要追加基准销组合时,请选择定位销
(φA),
定位治具
(C),
定位杆
(D)
的尺寸。
C-1
对应卷盘元件。
Customer
对应卷盘元件
・ 为了在元件供给部搭载卷盘元件的安装用工具和卷盘轴。
C-2
能够打印各种信息。
On-site
打印机
・ 能够打印生产管理信息、程序数据等各种信息。
C-3
信号塔红灯亮时,以蜂鸣器报警。
Customer
报警蜂鸣器
・ 信号塔红灯亮时,以蜂鸣器报警。
(
闪烁、啾啾声、呜鸣声
)
・ 警报蜂鸣器可以切换为有效/无效,可以通过画面进行消音操作。
C-4
在
RS-232C
与上位通信。(控制指令)
On-site
上位对应
(RS-232C)
■
Panasonic Package
的上位对应
・ 遥控、实时信息的通知
连接客户所使用的应用软件系统,能够进行遥控、实时信息的通知。
・
Line Manager Lite
界面
与
Line Manager Lite
相连接,能够从计算机上发出删除机器主体的指令。
・
Line Manager V2
界面
与
Line Manager V2
相连接,能够从计算机上发出删除机器主体数据的指令,能够进行遥控、
实时情报通信、确认主体内的基板有无。
C-5
美国的表面实装机制造协会所制定的界面。
On-site
SMEMA
・ 连接用控制信号以及连接器
・ 搬送高度
940 mm
对应
C
±0.1
φ
A
D
±0.1
+
0.1
0
+
0.1
0

RL131 2008.0320
- 44 -
10.
涂饰颜色
■ 本公司标准颜色
白色
W-13 (G50)
■ 涂饰颜色的指定
请在接收客户指定时使用。
No.
可以指定涂饰的部位
(
本公司标准颜色的部位
)
涂饰颜色的指定
(
原则上需要颜色样品。
)
1
顶部罩
2
背面罩
3
侧板、外罩
(
左右
)
4
前面侧边外罩
(
左右
)
5
主操作盘外装罩
6
后部操作盘外装罩
7
进料部、出料部安全罩
8
主电源开关罩
9
前门
(3
扇
)
10
侧板、下侧罩
(
左右
)
11
元件供给部上部罩
12
元件供给部侧面罩
(
左右
)
13
元件供给部前面罩
(
左右
)
14
主操作盘上部罩
关于下记部位,无法对应涂饰颜色的变更。
・
设备内部罩、开闭罩铝制框架、皮带扣紧线
(
橡胶
)
・
打印机、既成制品、编带废料箱
(5)
(2)
(7)
(1)
(4)
(11)
(8) (10)
(9)
(3)
(12)
(13)
(14)
(6)
图是
NM-EJR2A
。