JUKI_RS-1-1R_MAINTE_CH.pdf - 第233页

维修调整要领书 12 - 41 12 -8-6 步进马达驱动 器的调整 传送单元的传送 马达及自动调整基板 宽度马达,使 用了步进马达。 为了使步 进马 达 正常旋转,需 要调整 5 相步进 驱动 器。 ・ AW C 传送马达(步 进马达) HM OO132 OOOO 5 相步 进马达驱动器 ※ 传送 L /R 马达 (4015420 9) ,无需进行步进操作 杆调整。 12 -8-6-1 AW C 传送步进马达驱 动电流调整 <调整步…

100%1 / 326
维修调整要领书
12-40
12-8-5 CONVEYOR PCB ASM (40128875)
在传送单元中使用的 CONVEYOR 基板的跳线、DIP-SW,尽管在交纳时已设定好,但要在设置基
板组时进行确认操作。
LED 显示的意
<电源接通确认用>
LD1(绿灯亮) +3.3V 接通确认
LD14(绿灯亮) +5V 接通确认
LD15(绿灯亮) +24V 接通确认
<通信确认用>
LD2(红亮灯) GM-NET2 通信异常
LD3(红亮灯) 开始与 GM-NET2 主机通信
LD4(红亮灯) GM-NET1 通信异常
LD5(红亮灯) 开始与 GM-NET1 主机通信
12-8-5-1
CONVEYOR PCB ASM
外观
分为开关的设定位置及跳线的跨接安装位置。
12-8-5-2
CONVEYOR
基板组的
DIP-SW
O
1
2
3
4
5
6
7
8
SW1
1
3
W2
4
6
7
9
12
10
W1
9
7
6
4
3
1
维修调整要领书
12-41
12-8-6
步进马达驱动器的调整
传送单元的传送马达及自动调整基板宽度马达,使用了步进马达。
为了使步进马正常旋转,需要调整 5 相步进驱动器。
AWC 传送马达(步进马达)HMOO132OOOO 5 相步进马达驱动器
传送 L/R 马达(40154209),无需进行步进操作杆调整。
12-8-6-1 AW C
传送步进马达驱动电流调整
<调整步骤>
调整前要确认已进行『DC 电源输出电压调整』。
使传送步进马达旋转,用数字万用表在 5 相步进驱动上的『CP1』,『 CP2』端子之间测量。
数字万用表的连接方式为,『 CP1』接,『 CP2』接
请缓慢旋转『RUN可调电阻,使CP1』~『CP2』之间的电压为 2.8±O.O1V
请将步进驱动上的 DIP SW 按照下图进行设定
12-8-6-1-1
DIP SW
的设定
规格值
驱动电流:1.4A±0.005A/相
(以 CP1-CP2 之间的电压测2.8V±0.01V
1OFF
2ON
ON
1 2
CK
FH
维修调整要领书
12-42
12-8-6-2
支撑台轴驱动
(
伺服马达驱动器
)
的设定
支撑台轴的驱动器,参数均已写入完成,无须设定。
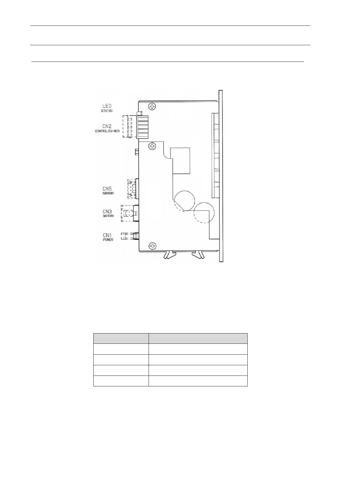
12-8-6-2-1 为支撑台轴伺服驱动的外观图。
12-8-6-2-1
.支撑台轴伺服驱动
伺服驱动器安装有 1 个显示状态的 LED 灯。
LED 用绿//色的亮灯及闪烁显示的状态如下。
12-8-6-2-1
LED
的状态
发光颜色 状态
绿色亮灯 伺服 OFF
绿色闪烁 伺服 ON
橙色亮灯 警告 驱动电 OFF 状态
以红+绿色闪烁 检测出警告
警告的状态,也 可用同一 LED 进行确,但 LED(和绿)的闪烁次数显示不同的意思。色的 LED
闪烁次数代表警告代码的 1O 位,绿色的闪烁次数代表警告代码的 1 位。
警告代码,请见 12-8-6-2-2