1OM-1604-002_w - 第169页
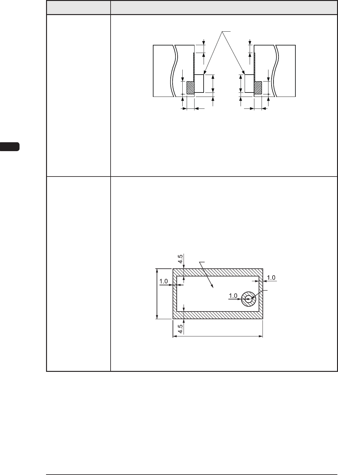
1OM-1604 4-2 第四章1.规格 101 1-002 项 目 内 容 7. 线路板的缺口 以及孔的限制 3 0 . 5 1 5 9 2 5 5 线路板流动方向 右 → 左 1 5 3 0 . 5 9 2 5 5 1 5 线路板流动方向 左 → 右 1 5 线路板制动器 单位 :mm 注 : 斜线部为不能有缺口范围。 斜线部若有缺口及孔时,请进行线路板定位教示,确认线路板是否能够正 常被定位。 8. 线路板位置 补正方法…

1OM-1604
4-1
第四章1.规格
1. 规格
1.1 SIGMA-G4 贴片机规格
项 目 内 容
1.
型号名称
SIGMA-G4
2.
生产量
高速安装头 多功能安装头
65,000CPH
注 : 不包括在最适宜条件下的线路板
移载时间。
片状元件 : 9,000CPH/2 个安装头
注 : 不包括在最适宜条件下的线路板
移载时间。
3.
贴装精度
高速安装头 多功能安装头
0603/0402:40µm
(
3
σ
)
IC:30µm
(
3
σ
)
4.
装置概要
本装置采用单面操作方式,线路板的搬送为双重搬送。
5. 线路板流动方向
和搬送基准
线路板流动方向 : 从左到右 / 从右到左 ( 出厂时选择 )
搬送基准 : 前左 / 前右 ( 出厂时选择 )
6. 适用线路板 模式 双重搬送模式 单一搬送模式
大小
X
×Y
50 × 50 ~ 610 × 216mm 50 × 50 ~ 610 × 381mm
注 : 四角为 R1 ~ R1.5mm
厚
度 0.3 ~ 5.0mm
质量 Max.1.5kg(50<=X<=260mm)
Max.2.5kg(260<X<=610mm)
材质 玻璃环氧
陶瓷 ( 选购件 )
注 :
(a) 陶瓷时,需要另外检讨。
(b) 根据线路板的材质、形状、弯曲度、质量表面状态
( 光泽 ) 等,能否正常进行线路板搬送或元件贴装,需
进行测试确认。
弯曲度
每 50mm 长的弯曲度在 0.2mm 以下
上 :Max.1.0mm
下 :Max.1.0mm
• 每 50mm 长的弯曲度在 0.2mm 以下
例 : 线路板大小为 200mm 时,弯曲度为 0.8mm 以下。
• Max.1.0mm
例 : 线路板大小超过 250mm 时,弯曲度为 1.0mm 以下。
弯曲度
1011-002

1OM-1604
4-2
第四章1.规格
1011-002
项 目 内 容
7.
线路板的缺口
以及孔的限制
30.5
15
9
255
线路板流动方向
右 → 左
15
30.5
9
255
15
线路板流动方向
左 → 右
15
线路板制动器
单位 :mm
注
: 斜线部为不能有缺口范围。
斜线部若有缺口及孔时,请进行线路板定位教示,确认线路板是否能够正
常被定位。
8. 线路板位置
补正方法
线路板识别
•
通过用线路板识别照相机识别线路板识别标记,补正线路板全体的位置偏离
量和线路板印刷图形的伸长量。
•
线路板全体补正在线路板上 ( 分区 1 ~ 5) 设定 2 处或 3 处线路板识别标记 ( 多
倒角线路板时,每个线路板设定 2 处 )。
•
元件贴装点补正在线路板上设定 1 ~ 2 处线路板识别标记。
此时,建议设定点对称的线路板识别标记 2 处的重心位置成为元件贴装点中
心。
(装置前侧)
可设定线路板识别标记的范围
50.0 ~ 610.0
50.0 ~ 460.0
孔等
单位 :mm

1OM-1604
4-3
第四章1.规格
1011-002
项 目 内 容
线路板全体补正用示例
为了提高识别精度,在 2 点识别时,请将线路板识别标记配置到对角位置。
另外,在 3 点识别时,请将 2 点配置在对角位置,余下的 1 点配置在边角
附近。
线路板识别标记 线路板识别标记
线路板 线路板
元件贴装点补正用示例 1(1 点识别 )
请在元件贴装点中心或周围附近的任意 1 点上配置线路板识别标记。
建议位置 : 元件贴装点中心
线路板识别标记
元件贴装点补正用示例 2(2 点识别 )
请在元件贴装点中心附近的任意 2 点配置线路板识别标记。
建议位置 : 点对称
建议选择对于元件贴装点中心成为点对称的 2 点。
(A-A’/B-B’)
•
根据本线路板识别标记 (2 点 ) 补正元件贴装位置和角度。
并且,2 点识别在局部的印刷图形的偏离和歪斜中有效。
线路板识别标记