IPC印制电路板设计规范-SMD元器件封装库尺寸要求_Password_Removed-副本 - 第19页
Q/Z X - 2000 15 6.1.4.2 SMD 钽电容焊盘尺 寸 SMD 钽电容的焊盘 尺寸应符合图 14 的规定。见图 14: 图 14 SMD 钽电容焊盘尺寸 封装名称 Z(mm) G(mm) X(mm) Y(mm) C(mm) 区域网格 (网格单元号 码) ref ref 3216T 4.80 0.80 1.20 2.00 2.80 6×12 3528T 5.00 1.00 2.20 2.00 3.00 8×12 6032…

Q/ZX - 2000
14
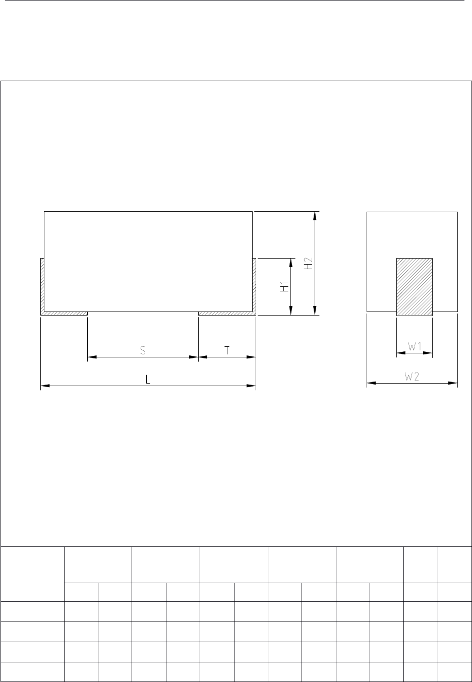
6.1.4 SMD 钽电容
6.1.4.1 SMD 钽电容元件尺寸
SMD 钽电容元件尺寸应符合图 13 的规定。见图 13:
图 13 SMD 钽电容元件尺寸
封装名称
L(mm) S(mm) W1(mm) W2(mm) T(mm)
H1
(mm)
H2
(mm)
min max min max min max min max min max max max
3216T 3.00 3.40 0.80 1.74 1.17 1.21 1.40 1.80 0.50 1.10 0.70 1.80
3528T 3.30 3.70 1.10 2.04 2.19 2.21 2.60 3.00 0.50 1.10 0.70 2.10
6032T 5.70 6.30 2.50 3.54 2.19 2.21 2.90 3.50 1.00 1.60 1.00 2.80
7343T 7.00 7.60 3.80 4.84 2.39 2.91 4.00 4.60 1.00 1.60 1.00 3.10

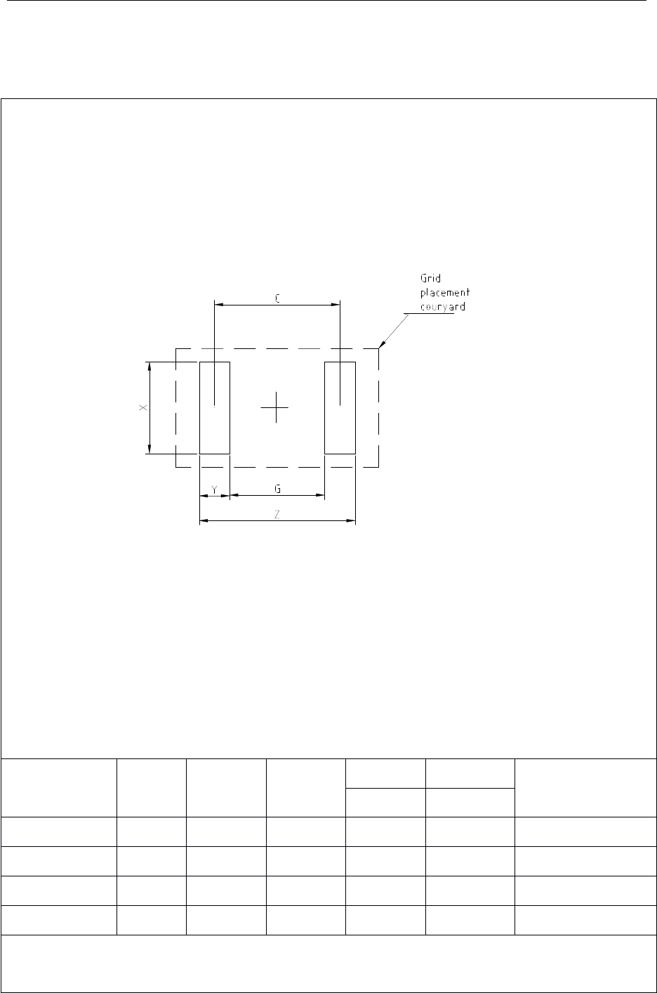
Q/ZX - 2000
15
6.1.4.2 SMD 钽电容焊盘尺寸
SMD 钽电容的焊盘尺寸应符合图 14 的规定。见图 14:
图 14 SMD 钽电容焊盘尺寸
封装名称
Z(mm) G(mm) X(mm)
Y(mm) C(mm)
区域网格
(网格单元号码)
ref ref
3216T 4.80 0.80 1.20 2.00 2.80 6×12
3528T 5.00 1.00 2.20 2.00 3.00 8×12
6032T 7.60 2.40 2.20 2.60 5.00 8×18
7343T 9.00 3.80 3.00 2.60 6.40 10×20
注:元件在波峰焊时,Y 尺寸向外侧增加 0.2mm,X 尺寸不变,封装名称加后缀“-W
”
。

Q/ZX - 2000
16
6.1.5 MELF(金属电极无引线端面元件)
6.1.5.1 MELF 元件尺寸
MELF 元件尺寸应符合图 15 的规定。见图 15:
图 15 MELF 元件尺寸
mm [in]
封装名称
L(mm) S(mm) W(mm) T(mm)
元件
类型
Min Max min max min max min max
SOD80[MLL34] 3.30 3.70 2.20 2.65 1.60 1.70 0.41 0.55 二极管
SOD87[MLL41] 4.80 5.20 3.80 4.25 2.44 2.54 0.36 0.50 二极管
2012M[0805M] 1.90 2.10 1.16 1.44 1.35 1.45 0.23 0.37 0.10mW 电阻
3216M[1206M] 3.00 3.40 1.86 2.31 1.75 1.85 0.43 0.57 0.25mW 电阻
3516M[1406M] 3.30 3.70 2.16 2.61 1.55 1.65 0.43 0.57 0.12W 电阻
5923M[2309M] 5.70 6.10 4.36 4.81 2.40 2.50 0.53 0.67 0.25W 电阻