IPC印制电路板设计规范-SMD元器件封装库尺寸要求_Password_Removed-副本 - 第25页
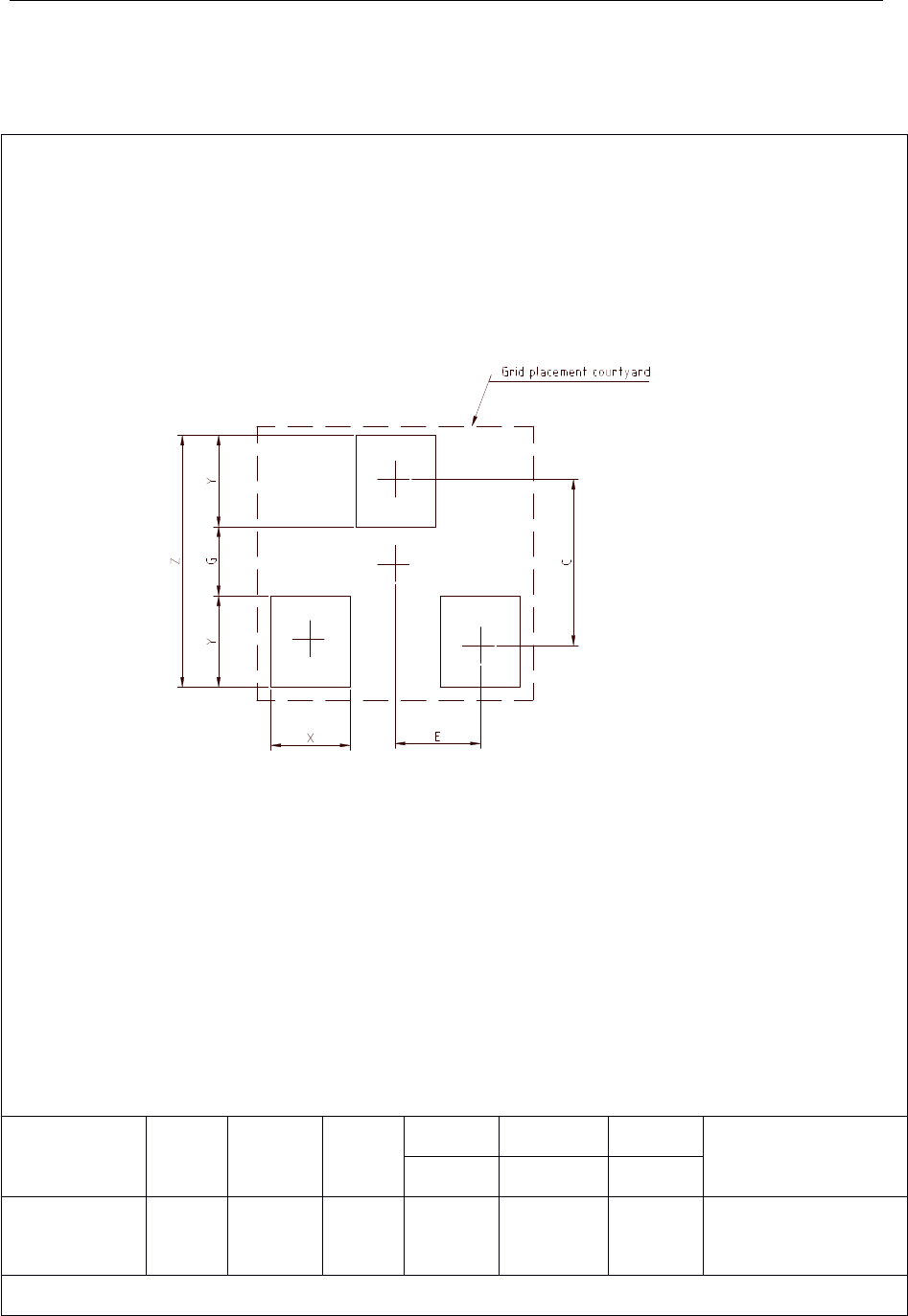
Q/Z X - 2000 21 6.1.7.2 SOT 23 的焊盘尺寸 SOT 23 的焊盘尺寸应符合图 20 的规定。见图 20: 图 20 SOT 23 焊盘尺寸 封装名称 Z(mm) G(mm) X(mm) Y(mm) C(mm) E(mm) 区域网格 (网格单元号 码) ref Ref ref SOT 23 (回流焊) 3.60 0.80 1.00 1.40 2.20 0.95 8×8 注:如果采用波峰 焊工艺, “Y”尺寸 …

Q/ZX - 2000
20
6.1.7 SOT 23
6.1.7.1 元件尺寸
SOT 23 的尺寸应符合图 19 的规定。见图 19:
图 19 SOT 23 的元件尺寸
封装名称
L(mm) S(mm) W(mm) T(mm) H(mm) P(mm)
Min max min max min max min max max nom
SOT 23 2.30 2.60 1.10 1.47 0.36 0.46 0.45 0.60 1.10 0.95

Q/ZX - 2000
21
6.1.7.2 SOT 23 的焊盘尺寸
SOT 23 的焊盘尺寸应符合图 20 的规定。见图 20:
图 20 SOT 23 焊盘尺寸
封装名称
Z(mm) G(mm) X(mm)
Y(mm) C(mm) E(mm)
区域网格
(网格单元号码)
ref Ref ref
SOT 23
(回流焊)
3.60 0.80 1.00 1.40 2.20 0.95 8×8
注:如果采用波峰焊工艺, “Y”尺寸外延 0.2 mm.

Q/ZX - 2000
22
6.1.8 SOT 89
6.1.8.1 元件尺寸
SOT 89 的尺寸应符合图 21 的规定。见图 21:
图 21 SOT 89 的元件尺寸
封装名称 L(mm) T(mm) W1(mm) W2(mm) W3(mm) K(mm)
H
(mm)
P
(mm)
min max min max min max min max min max min max max basic
SOT 89 3.94 4.25 0.89 1.20 0.36 0.48 0.44 0.56 1.62 1.83 2.60 2.85 1.60 1.50