IPC印制电路板设计规范-SMD元器件封装库尺寸要求_Password_Removed-副本 - 第27页
Q/Z X - 2000 23 6.1.8.2 SOT 89 的焊盘尺寸 SOT 89 的焊盘尺寸应符合图 22 的规定。见图 22: 图 22 SOT 89 焊盘尺寸 封装名称 Z (mm) Y1 (mm) X1 (mm) X2 (mm) X3 (mm) Y2 (mm) Y3 (mm) E (mm) 区域网格 (网格单元 号码) Min max min max ref Ref basic SOT 89 5.40 1.40 0.80 0…

Q/ZX - 2000
22
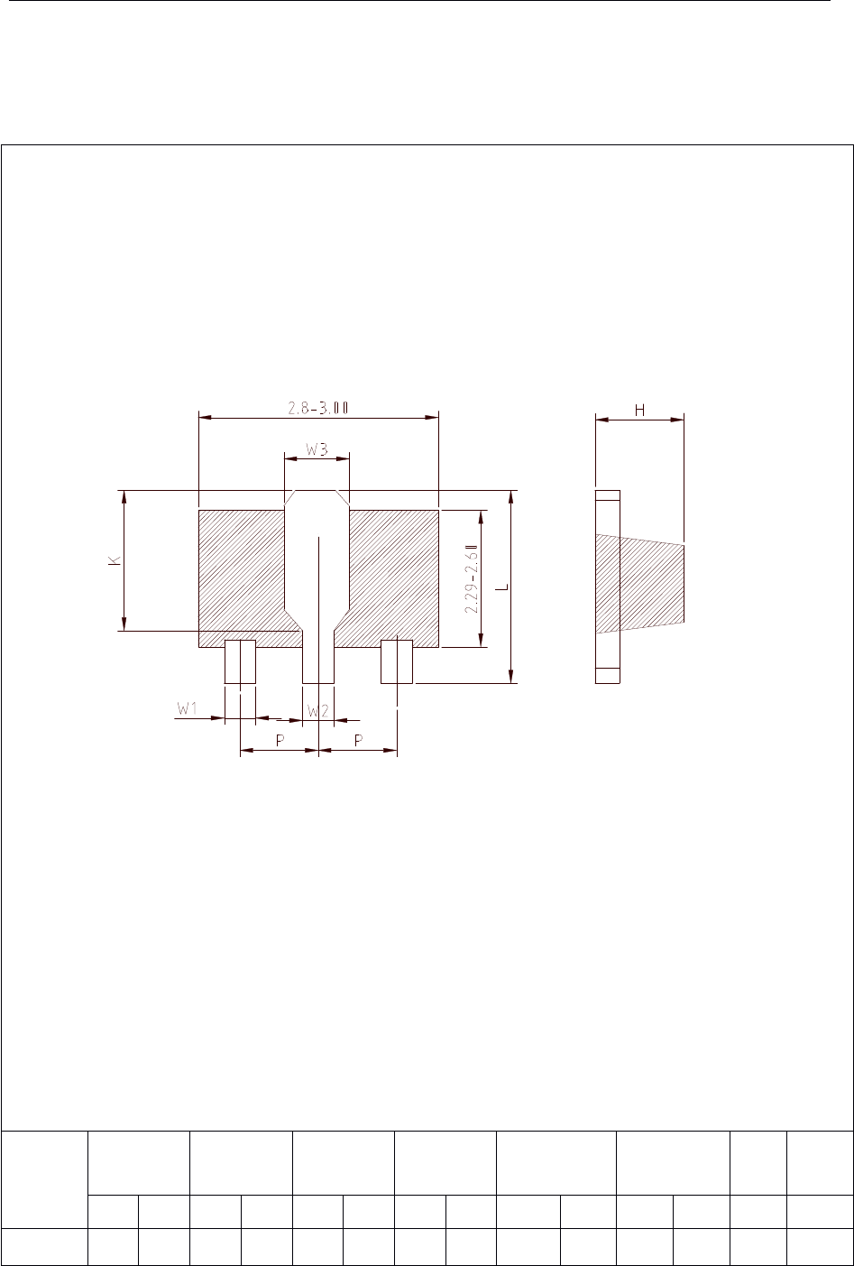
6.1.8 SOT 89
6.1.8.1 元件尺寸
SOT 89 的尺寸应符合图 21 的规定。见图 21:
图 21 SOT 89 的元件尺寸
封装名称 L(mm) T(mm) W1(mm) W2(mm) W3(mm) K(mm)
H
(mm)
P
(mm)
min max min max min max min max min max min max max basic
SOT 89 3.94 4.25 0.89 1.20 0.36 0.48 0.44 0.56 1.62 1.83 2.60 2.85 1.60 1.50

Q/ZX - 2000
23
6.1.8.2 SOT 89 的焊盘尺寸
SOT 89 的焊盘尺寸应符合图 22 的规定。见图 22:
图 22 SOT 89 焊盘尺寸
封装名称
Z
(mm)
Y1
(mm)
X1
(mm)
X2
(mm)
X3
(mm)
Y2
(mm)
Y3
(mm)
E
(mm)
区域网格
(网格单元
号码)
Min max min max ref Ref basic
SOT 89 5.40 1.40 0.80 0.80 1.00 1.80 2.00 2.40 4.90 1.50 12×10

Q/ZX - 2000
24
6.1.9 SOD 123
6.1.9.1 元件尺寸
SOD 123 的尺寸应符合图 23 的规定。见图 23:
图 23 SOD 123 的元件尺寸
封装名称
L(mm) S(mm) W1(mm) W2(mm) T(mm) H(mm)
min Max Min max min max min max Min max max
SOD 123 3.55 3.85 2.35 2.93 0.45 0.65 1.40 1.70 0.25 0.60 1.35
SMB 5.21 5.59 2.17 3.31 1.96 2.21 3.30 3.94 0.76 1.52 2.41