IPC印制电路板设计规范-SMD元器件封装库尺寸要求_Password_Removed-副本 - 第60页
Q/Z X - 2000 56 6.4.1.1 PQFP 的焊盘尺寸 PQFP 的焊盘尺寸应 符合图 53 的规定。见图 53: 图 53 PQFP 的焊盘尺寸 封装名称 (总引脚数) Z (mm) G (mm) X (mm) Y (mm) C (mm) D (mm) E (mm) 区域网格 (网格单元号 码) ref ref ref ref PQFP84 21.00 17.00 0.35 2 .00 18.80 12.70 0.635…

Q/ZX - 2000
55
图 52 PQFP 元件的标准尺寸

Q/ZX - 2000
56
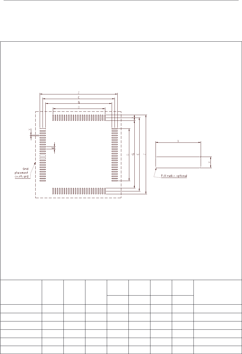
6.4.1.1 PQFP 的焊盘尺寸
PQFP 的焊盘尺寸应符合图 53 的规定。见图 53:
图 53 PQFP 的焊盘尺寸
封装名称
(总引脚数)
Z
(mm)
G
(mm)
X
(mm)
Y
(mm)
C
(mm)
D
(mm)
E
(mm)
区域网格
(网格单元号码)
ref ref ref ref
PQFP84 21.00 17.00 0.35 2.00 18.80 12.70 0.635 44×44
PQFP100 23.60 19.60 0.35 2.00 21.40 15.24 0.635 50×50
PQFP132 28.60 24.60 0.35 2.00 26.40 20.32 0.635 58×58
PQFP164 33.80 29.80 0.35 2.00 31.60 25.40 0.635 68×68
PQFP196 38.80 34.80 0.35 2.00 36.60 30.48 0.635 80×80
PQFP244 43.20 39.20 0.35 2.00 41.00 38.10 0.635 88×88

Q/ZX - 2000
57
6.4.2 SQFP(Shrink Quad Flat Pack),方形
6.4.2.1 元件尺寸
SQFP 的尺寸应符合图 54a,54b,54c,54d 的规定。见图 54a,54b,54c,54d:
图 54a SQFP 元件的标准尺寸
封装名称
L(mm) S(mm) W(mm) T(mm)
A
(mm)
B
(mm)
P
(mm)
H (mm)
min max min max min max min max ref ref basic max
SQFP5×5-24 6.80 7.20 5.20 5.89 0.10 0.30 0.40 0.80 5.00 5.00 0.50 1.70
SQFP5×5-32 6.80 7.20 5.20 5.89 0.10 0.30 0.40 0.80 5.00 5.00 0.50 1.70
SQFP5×5-32-F 6.80 7.20 5.20 5.89 0.05 0.22 0.40 0.80 5.00 5.00 0.40 1.70
SQFP5×5-40 6.80 7.20 5.20 5.89 0.05 0.22 0.40 0.80 5.00 5.00 0.40 1.70
SQFP5×5-48 6.80 7.20 5.20 5.89 0.05 0.15 0.40 0.80 5.00 5.00 0.30 1.70
SQFP5×5-56 6.80 7.20 5.20 5.89 0.05 0.15 0.40 0.80 5.00 5.00 0.30 1.70
SQFP6×6-32 7.80 8.20 6.20 6.89 0.10 0.30 0.40 0.80 6.00 6.00 0.50 1.70
SQFP6×6-40 7.80 8.20 6.20 6.89 0.10 0.30 0.40 0.80 6.00 6.00 0.50 1.70
SQFP6×6-40-F 7.80 8.20 6.20 6.89 0.05 0.22 0.40 0.80 6.00 6.00 0.40 1.70
SQFP6×6-48 7.80 8.20 6.20 6.89 0.05 0.22 0.40 0.80 6.00 6.00 0.40 1.70
SQFP6×6-56 7.80 8.20 6.20 6.89 0.05 0.15 0.40 0.80 6.00 6.00 0.30 1.70
SQFP6×6-64 7.80 8.20 6.20 6.89 0.05 0.15 0.40 0.80 6.00 6.00 0.30 1.70
SQFP7×7-40 8.80 9.20 7.20 7.89 0.10 0.30 0.40 0.80 7.00 7.00 0.50 1.70
SQFP7×7-48 8.80 9.20 7.20 7.89 0.10 0.30 0.40 0.80 7.00 7.00 0.50 1.70
SQFP7×7-56 8.80 9.20 7.20 7.89 0.05 0.22 0.40 0.80 7.00 7.00 0.40 1.70
SQFP7×7-64 8.80 9.20 7.20 7.89 0.05 0.22 0.40 0.80 7.00 7.00 0.40 1.70
SQFP7×7-72 8.80 9.20 7.20 7.89 0.05 0.15 0.40 0.80 7.00 7.00 0.30 1.70
SQFP7×7-80 8.80 9.20 7.20 7.89 0.05 0.15 0.40 0.80 7.00 7.00 0.30 1.70