IPC印制电路板设计规范-SMD元器件封装库尺寸要求_Password_Removed-副本 - 第74页
Q/Z X - 2000 70 6.4 .4.2 CQFP 元件的焊盘尺寸 CQF P 元件的焊盘尺 寸应符合图 59 的规定。见图 59: 图 59 CQFP 元件的焊盘尺寸 封装名称 Z (mm ) G (mm ) X (mm ) Y (mm ) C (mm ) D (mm ) E (mm ) 区域网格 (网格单元号 码) ref ref ref ref CQF P-28 15.80 10.60 0.6 5 2.60 13.20 7…

Q/ZX - 2000
69
6.4.4 CQFP[Ceramic Quad Flat Pack]
6.4.4.1 元件尺寸
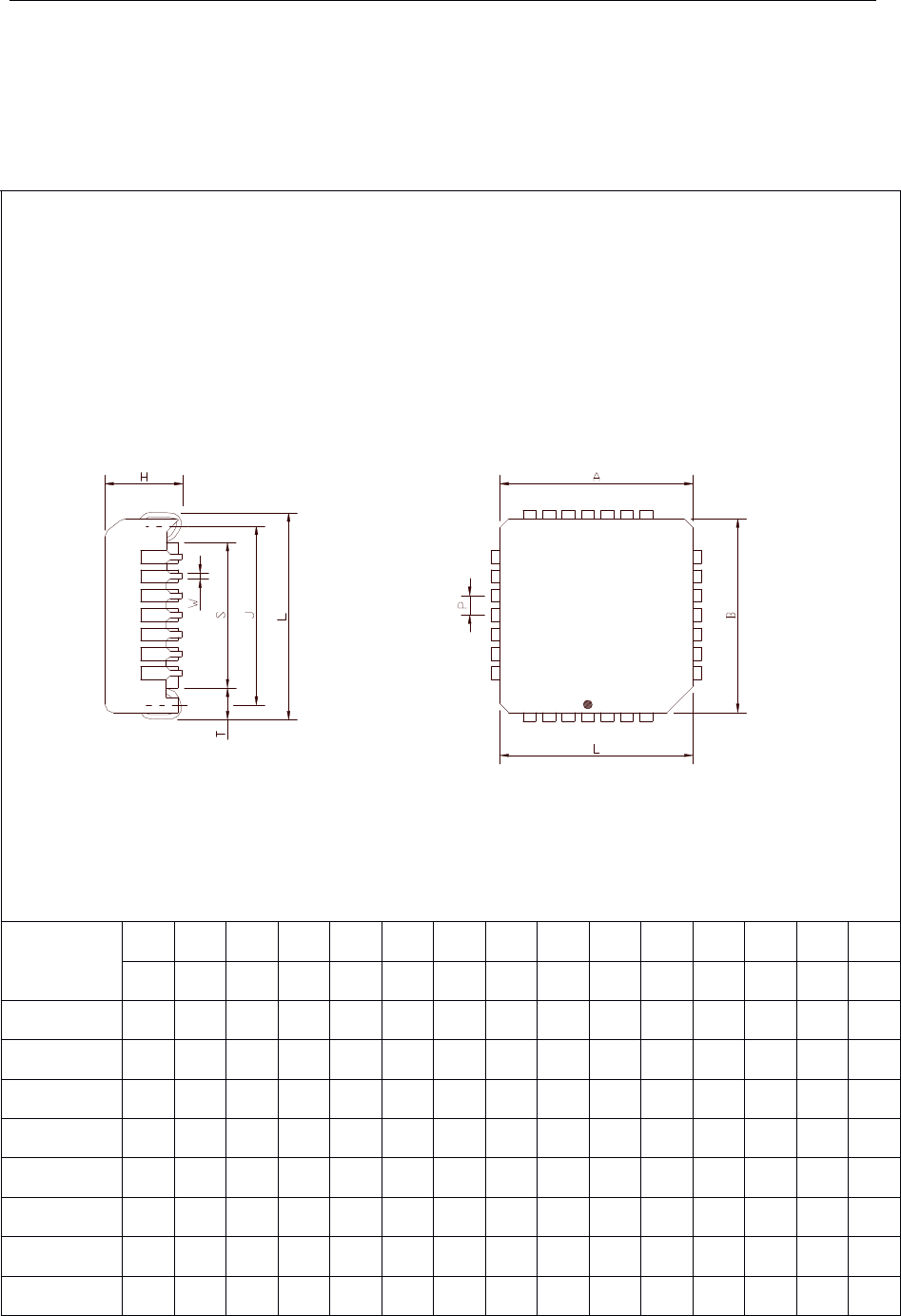
CQFP 元件的尺寸应符合图 58 的规定。见图 58:
图 58 CQFP 方形元件的标准尺寸
封装名称
L(mm) S(mm) W(mm) T(mm) A(mm) B(mm) H(mm) P (mm)
min max Min max min Max min max min max min max max basic
CQFP-28
14.40 14.80 11.86 12.39 0.32 0.48 1.02 1.27 9.05 10.05 9.05 10.05 2.30 1.27
CQFP-36
17.15 17.39 14.61 15.04 0.20 0.33 1.02 1.27 11.69 12.70 11.69 12.70 4.92 1.27
CQFP-44
19.69 19.93 17.15 17.58 0.20 0.33 1.02 1.27 14.23 15.24 14.23 15.24 4.92 1.27
CQFP-52
22.23 22.47 19.69 20.12 0.20 0.33 1.02 1.27 16.77 17.78 16.77 17.78 4.92 1.27
CQFP-68
27.31 27.55 24.77 25.20 0.20 0.33 1.02 1.27 21.85 22.86 21.85 22.86 4.92 1.27
CQFP-84
32.39 32.63 29.85 30.28 0.20 0.33 1.02 1.27 26.93 27.94 26.93 27.94 4.92 1.27
CQFP-100
37.47 37.71 34.93 35.36 0.20 0.33 1.02 1.27 32.01 33.02 32.01 33.02 4.92 1.27
CQFP-120
30.95 31.45 28.75 29.50 0.30 0.46 0.70 1.10 26.80 27.30 26.80 27.30 4.06 0.80
CQFP-128
30.95 31.45 28.75 29.50 0.30 0.46 0.70 1.10 26.80 27.30 26.80 27.30 4.06 0.80
CQFP-132
27.28 27.58 25.08 25.72 0.15 0.38 0.70 1.10 23.75 24.38 23.75 24.38 3.55 0.635
CQFP-148
33.50 34.00 30.96 31.57 0.12 0.25 1.02 1.27 28.21 28.71 28.21 28.71 3.10 0.635
CQFP-164
33.50 34.00 30.96 31.57 0.12 0.25 1.02 1.27 28.80 29.30 28.80 29.30 3.35 0.635
CQFP-196 35.75 36.25 33.21 33.82 0.12 0.25 1.02 1.27 33.80 34.30 33.80 34.30 3.45 0.635

Q/ZX - 2000
70
6.4.4.2 CQFP 元件的焊盘尺寸
CQFP 元件的焊盘尺寸应符合图 59 的规定。见图 59:
图 59 CQFP 元件的焊盘尺寸
封装名称
Z
(mm)
G
(mm)
X
(mm)
Y
(mm)
C
(mm)
D
(mm)
E
(mm)
区域网格
(网格单元号码)
ref ref ref ref
CQFP-28 15.80 10.60 0.65 2.60 13.20 7.62 1.27 34×34
CQFP-36 18.60 13.80 0.65 2.40 16.20 10.16 1.27 40×40
CQFP-44 21.00 16.20 0.65 2.40 18.60 12.70 1.27 44×44
CQFP-52 23.60 18.80 0.65 2.40 21.20 15.24 1.27 50×50
CQFP-68 28.60 23.80 0.65 2.40 26.20 20.32 1.27 62×62
CQFP-84 33.80 29.00 0.65 2.40 31.40 25.40 1.27 70×70
CQFP-100 38.80 34.00 0.65 2.40 36.40 30.48 1.27 80×80
CQFP-120 32.40 28.00 0.50 2.20 30.20 23.20 0.80 68×68
CQFP-128 32.40 28.00 0.50 2.20 30.20 24.80 0.80 68×68
CQFP-132 28.60 24.20 0.40 2.20 26.40 20.32 0.635 60×60
CQFP-148 35.20 30.00 0.35 2.60 32.60 22.86 0.635 72×72
CQFP-164 35.20 30.00 0.35 2.60 32.60 25.40 0.635 72×72
CQFP-196 37.20 32.00 0.35 2.60 34.60 30.48 0.635 76×76

Q/ZX - 2000
71
6.5� 四边有“J”形引脚的元件
6.5.1 方形 PLCC[Plastic leaded chip carriers]
6.5.1.1 元件尺寸
方形 PLCC 元件的尺寸应符合图 60 的规定。见图 60:
图 60 PLCC 方形元件的标准尺寸
封装名称
L(mm) S(mm) W(mm) T(mm) A(mm) B(mm) J (mm)
H
(mm)
P (mm)
min max min max Min max min Max min max min max ref max basic
PLCC-20 9.87 10.03 5.78 6.53 0.33 0.53 1.50 2.00 8.89 9.04 8.89 9.04 7.87 4.57 1.27
PLCC-28 12.32 12.57 8.32 9.07 0.33 0.53 1.50 2.00 11.43 11.58 11.43 11.58 10.41 4.57 1.27
PLCC-44 17.40 17.65 13.40 14.15 0.33 0.53 1.50 2.00 16.51 16.66 16.51 16.66 15.49 4.57 1.27
PLCC-52 19.94 20.19 15.94 16.69 0.33 0.53 1.50 2.00 19.05 19.20 19.05 19.20 18.03 5.08 1.27
PLCC-68 25.02 25.27 21.02 21.77 0.33 0.53 1.50 2.00 24.13 24.33 24.13 24.33 23.11 5.08 1.27
PLCC-84 30.10 30.35 26.10 26.85 0.33 0.53 1.50 2.00 29.21 29.41 29.21 29.41 28.19 5.08 1.27
PLCC-100 35.18 35.43 31.18 31.93 0.33 0.53 1.50 2.00 34.29 34.49 34.29 34.49 33.27 5.08 1.27
PLCC-124 42.80 43.05 38.80 39.55 0.33 0.53 1.50 2.00 41.91 42.11 41.91 42.11 40.89 5.08 1.27