IPC印制电路板设计规范-SMD元器件封装库尺寸要求_Password_Removed-副本 - 第81页
Q/Z X - 2000 77 6.6 � 改进型双列引 脚元件 6.6.1 DIP[Modified Dual-In-Line components] 6.6.1.1 元件尺寸 DIP 的尺寸应符合图 66 的规定。见图 66: 图 66 DI P 的标准尺寸 封装名称 L(m m) S( mm) W(mm) T(mm ) A(m m) B(mm) H (mm ) P (mm ) min max min Max min max min…

Q/ZX - 2000
76
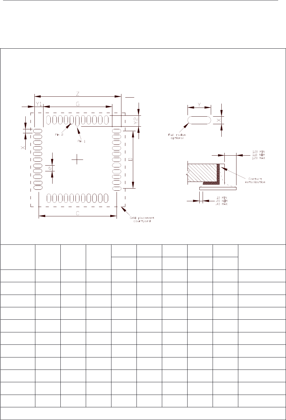
6.5.3.2 LCC 元件的焊盘尺寸
LCC 元件的焊盘尺寸应符合图 65 的规定。见图 65:
图 65 LCC 元件的焊盘尺寸
封装名称 Z(mm) G(mm) X(mm)
Y1(mm) Y2(mm) C(mm) D(mm) E(mm)
区域网格
(网格单元号码)
ref ref ref ref ref
LCC-16 9.80 4.60 0.80 2.60 3.40 7.20 3.81 1.27 22×22
LCC-20 11.00 5.80 0.80 2.60 3.40 8.40 5.08 1.27 24×24
LCC-24 12.40 7.20 0.80 2.60 3.40 9.80 6.35 1.27 26×26
LCC-28 13.60 8.40 0.80 2.60 3.40 11.00 7.62 1.27 30×30
LCC-44 18.80 13.60 0.80 2.60 3.40 16.20 12.70 1.27 40×40
LCC-52 21.20 16.00 0.80 2.60 3.40 18.60 15.24 1.27 44×44
LCC-68 26.20 21.00 0.80 2.60 3.40 23.60 20.32 1.27 54×54
LCC-84 31.40 26.20 0.80 2.60 3.40 28.80 25.40 1.27 64×64
LCC-100 36.40 31.20 0.80 2.60 3.40 33.80 30.48 1.27 74×74
LCC-124 44.20 39.00 0.80 2.60 3.40 41.60 38.10 1.27 90×90
LCC-156 54.20 49.00 0.80 2.60 3.40 51.60 48.26 1.27 110×110
注:所有焊盘两端均以半径 0.4mm 取圆。见上图。

Q/ZX - 2000
77
6.6� 改进型双列引脚元件
6.6.1 DIP[Modified Dual-In-Line components]
6.6.1.1 元件尺寸
DIP 的尺寸应符合图 66 的规定。见图 66:
图 66 DIP 的标准尺寸
封装名称
L(mm) S(mm) W(mm) T(mm) A(mm) B(mm)
H
(mm)
P
(mm)
min max min Max min max min max min max min max max basic
DIPSM8-7r62x10r92 7.62 8.25 6.86 7.54 0.36 0.56 0.20 0.38 6.10 7.11 8.84 10.92 5.33 2.54
DIPSM14-7r62x20r19 7.62 8.25 6.86 7.54 0.36 0.56 0.20 0.38 6.10 7.11 18.42 20.19 5.33 2.54
DIPSM16-7r62x21r33 7.62 8.25 6.86 7.54 0.36 0.56 0.20 0.38 6.10 7.11 18.93 21.33 5.33 2.54
DIPSM18-7r62x23r49 7.62 8.25 6.86 7.54 0.36 0.56 0.20 0.38 6.10 7.11 21.47 23.49 5.33 2.54
DIPSM20-7r62x26r90 7.62 8.25 6.86 7.54 0.36 0.56 0.20 0.38 6.10 7.11 23.50 26.90 5.33 2.54
DIPSM22-9r91x28r44 9.91 10.79 9.15 10.07 0.36 0.56 0.20 0.38 8.39 9.65 26.67 28.44 5.33 2.54
DIPSM24-7r62x32r30 7.62 8.25 6.86 7.54 0.36 0.56 0.20 0.38 6.10 7.11 28.60 32.30 5.33 2.54
DIPSM24-9r91x30r98 9.91 10.79 9.15 10.07 0.36 0.56 0.20 0.38 8.39 9.65 29.21 30.98 5.33 2.54
DIPSM24-15r24x32r70 15.24 15.87 14.48 15.16 0.36 0.56 0.20 0.38 12.32 14.73 29.30 32.70 6.35 2.54
DIPSM28-7r62x36r20 7.62 8.25 6.86 7.54 0.36 0.56 0.20 0.38 6.10 7.11 34.20 36.20 5.33 2.54
DIPSM28-15r24x39r70 15.24 15.87 14.48 15.16 0.36 0.56 0.20 0.38 12.32 14.73 35.10 39.70 6.35 2.54
DIPSM40-15r24x53r20 15.24 15.87 14.48 15.16 0.36 0.56 0.20 0.38 12.32 14.73 50.30 53.20 6.35 2.54
DIPSM48-15r24x63r10 15.24 15.87 14.48 15.16 0.36 0.56 0.20 0.38 12.32 14.73 60.70 63.10 6.35 2.54

Q/ZX - 2000
78
6.6.1.2 DIP 的焊盘尺寸
DIP 的焊盘尺寸应符合图 67 的规定。见图 67:
图 67 DIP 焊盘尺寸图
封装名称 Z(mm) G(mm) X(mm)
Y(mm)
ref
C(mm)
ref
D(mm)
ref
E(mm)
ref
区域网格
(网格单
元号码)
DIPSM8-7r62x10r92 9.80 5.40 1.20 2.20 7.60 7.62 2.54 22×24
DIPSM14-7r62x20r19 9.80 5.40 1.20 2.20 7.60 15.24 2.54 22×42
DIPSM16-7r62x21r33 9.80 5.40 1.20 2.20 7.60 17.78 2.54 22×44
DIPSM18-7r62x23r49 9.80 5.40 1.20 2.20 7.60 20.32 2.54 22×48
DIPSM20-7r62x26r90 9.80 5.40 1.20 2.20 7.60 22.86 2.54 22×56
DIPSM22-9r91x28r44 12.40 8.00 1.20 2.20 10.20 25.40 2.54 26×58
DIPSM24-7r62x32r30 9.80 5.40 1.20 2.20 7.60 27.94 2.54 38×66
DIPSM24-9r91x30r98 12.40 8.00 1.20 2.20 10.20 27.94 2.54 26×64
DIPSM24-15r24x32r70 17.40 13.00 1.20 2.20 15.20 27.94 2.54 36×68
DIPSM28-7r62x36r20 9.80 5.40 1.20 2.20 7.60 33.02 2.54 22×74
DIPSM28-15r24x39r70 17.40 13.00 1.20 2.20 15.20 33.02 2.54 36×84
DIPSM40-15r24x53r20 17.40 13.00 1.20 2.20 15.20 48.26 2.54 36×110
DIPSM48-15r24x63r10 17.40 13.00 1.20 2.20 15.20 58.42 2.54 36×130