PTS-XPFS-03JE - 第111页
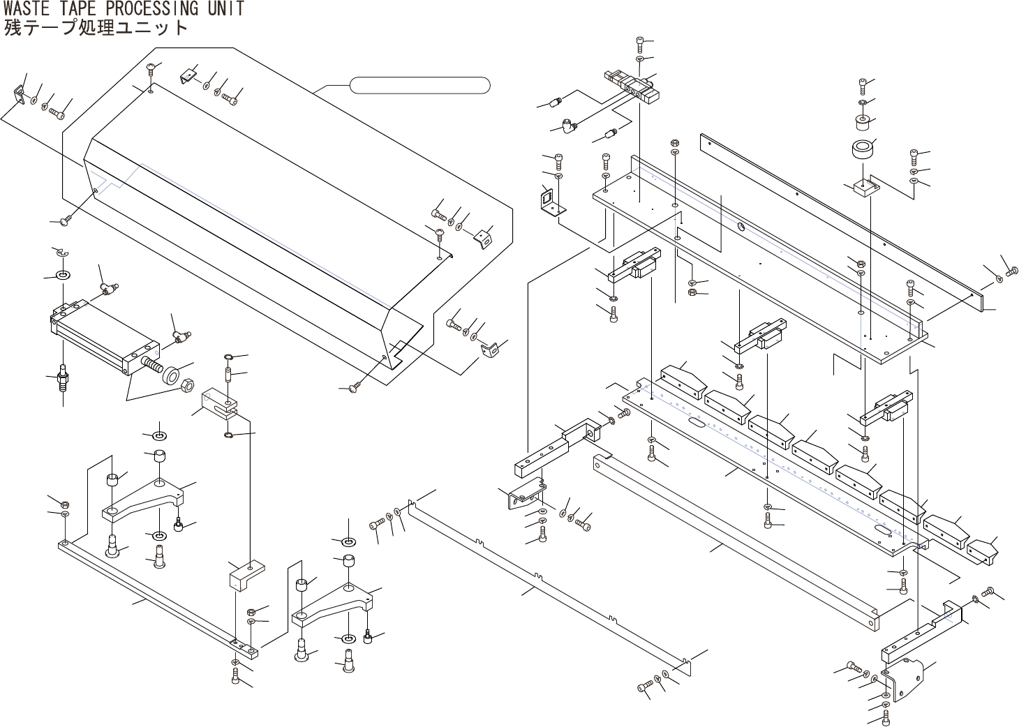
WASTE TAPE PROCESSING UNIT 残テープ処理ユニット AGGPK9006 No. Drg.No. & Code No. QTY Description Rating Materials Remarks 番号 図番 & コード番号 個 数 品名 規格 材質 備考 1 GGPK0051 1 BKT BKT FE 2 H5288A 2 BOLT, HEX SOCKET ボルト 六角穴 M04X010 F…

AA
BB
CC
AA
BB
CC
-
A
COM
B
-+
USED ONLY MFU TYPE
FF
GG
FF
GG
1
2
3
4
5
5
6
7
8
9
10
11
11
12
13
12
13
11
12
13
14
15
16
17
18
19
18
19
20
20
21
22
23
24
25
26
27
28
29
30
31
32
33
34
33
34
33
34
35
36
37
37
37
37
37
37
37
38
39
40
41
42
43
44
45
46
47
48
50
51
50
51
49
52
53
54
55
56
57
58
59
59
60
60
61
61
62
62
63
64
65
66
67
67
68
69
70
71
71
72
72
73
73
74
75
76
74
75
76
77
78
79
80
78
79
80
78
79
80
78
79
80
77.1
77.1
77
49
52
60
59
59
60
21.1
21.1
5
5
AGGPK9006
110
PTS-XPFS-03JE

WASTE TAPE PROCESSING UNIT
残テープ処理ユニット
AGGPK9006
No. Drg.No. & Code No. QTY Description Rating Materials Remarks
番号 図番 & コード番号 個数 品名 規格 材質 備考
1 GGPK0051 1 BKT BKT FE
2 H5288A 2 BOLT, HEX SOCKET ボルト 六角穴 M04X010 FE
3 W1022A 2 WASHER, LOCK ワッシャ スプリング 4M/M FE
4 GGPK0031 1(0) COVER カバー OT
固定デバイス時GGUF315*に変更
5 K5172X 4(2) SCREW, C/R TRUSS 小ネジ 十穴トラス M05X005(3カ シロ) FE
MUF時4個 / 固定デバイス時2個
6 DNPK0012 1 BAR バー FE
7 DNPK0022 1 BLOCK ブロック FE
8 H5324A 2 BOLT, HEX SOCKET ボルト 六角穴 M06X020 FE
9 W1024A 2 WASHER, LOCK ワッシャ スプリング 6M/M FE
10 DNPK0031 1 KNUCKLE ナックル FE
11 DNPK0040 3 GUIDE, RAIL ガイド レール OT
12 H5290A 9 BOLT, HEX SOCKET ボルト 六角穴 M04X015 FE
13 W1011A 9 WASHER, CONICAL ワッシャ 皿 M- 4-L FE
14 DNPK0151 1 BKT BKT OT
15 H5342A 4 BOLT, HEX SOCKET ボルト 六角穴 M08X025 FE
16 W1025A 4 WASHER, LOCK ワッシャ スプリング 8M/M FE
17 DNPK0310 1 CUTTER, STATIONARY カッタ 固定 FE
18 K5263T 2 SCREW, HEX SOCKET BUTTON 小ネジ 六角穴ボタン M12X025 FE
19 W1016A 2 WASHER, CONICAL ワッシャ 皿 M-12-H FE
20 DNPK0061 2 LEVER レバー FE
21 PM52551 1 PIN ピン FE
21.1 S1031A 2 CIR-CLIP サークリップ STW 10 OT
22 GFPK1020 1 PIN, PIVOT ピン 支点 FE
23 N1080D 1 NUT, HEX ナット 六角 M12(3カ クロ) FE
24 W1027A 1 WASHER, LOCK ワッシャ スプリング 12M/M FE
25 DDUF3114 1 PLATE プレート FE
26 H5300A 2 BOLT, HEX SOCKET ボルト 六角穴 M05X015 FE
27 W1023A 2 WASHER, LOCK ワッシャ スプリング 5M/M FE
28 W1044A 2 WASHER, FLAT ワッシャ 平 4W- 5 FE
29 DNPK0300 1 PLATE プレート PL
30 K5257D 4 SCREW, HEX SOCKET BUTTON 小ネジ 六角穴ボタン M4X10 FE
31 W1041A 4 WASHER, FLAT ワッシャ 平 4M/MX0.8X9(1W-4) FE
32 GGPK0110 1 PLATE プレート FE
33 H5302A 12 BOLT, HEX SOCKET ボルト 六角穴 M05X020 FE
34 W1023A 12 WASHER, LOCK ワッシャ スプリング 5M/M FE
35 DDUF3153 1 BKT BKT FE
36 DDUF3163 1 BKT BKT FE
37 GFPK1011 7 CUTTER, MOVABLE カッタ 可動 FE
111
PTS-XPFS-03JE

WASTE TAPE PROCESSING UNIT
残テープ処理ユニット
AGGPK9006
No. Drg.No. & Code No. QTY Description Rating Materials Remarks
番号 図番 & コード番号 個数 品名 規格 材質 備考
38 H5302A 21 BOLT, HEX SOCKET ボルト 六角穴 M05X020 FE
39 W1023A 21 WASHER, LOCK ワッシャ スプリング 5M/M FE
40 W1044A 21 WASHER, FLAT ワッシャ 平 4W- 5 FE
41 DBVC0252 1 CUTTER, MOVABLE カッタ 可動 FE
42 H5302A 2 BOLT, HEX SOCKET ボルト 六角穴 M05X020 FE
43 W1023A 2 WASHER, LOCK ワッシャ スプリング 5M/M FE
44 W1044A 2 WASHER, FLAT ワッシャ 平 4W- 5 FE
45 DNPK0121 1 ROLLER ローラ PL
46 DBVC0270 1 DAMPER ダンパ FE
47 H5326A 1 BOLT, HEX SOCKET ボルト 六角穴 M06X025 ゼンネジ FE
48 W1013A 1 WASHER, CONICAL ワッシャ 皿 M- 6-H FE
49 DNPK0131 2 PIN, PIVOT ピン 支点 FE
50 N1080D 2 NUT, HEX ナット 六角 M12(3カ クロ) FE
51 W1027A 2 WASHER, LOCK ワッシャ スプリング 12M/M FE
52 DNPK0143 2 PIN, PIVOT ピン 支点 FE
53 N1080D 2 NUT, HEX ナット 六角 M12(3カ クロ) FE
54 W1027A 2 WASHER, LOCK ワッシャ スプリング 12M/M FE
55 DNPK0330 1 CYLINDER シリンダ OT
56 DNPK0240 1 STOPPER ストッパ PL
57 S1033A 1 CIR-CLIP サークリップ STW 14 OT
58 K11389 1 COLLAR カラー WSSB20-15-3 OT
59 H4420B 4 BEARING, NEEDLE ベアリング ニードル F-1516 FE
60 W1001W 4 WASHER ワッシャ FTRC-1528 FE
61 K1091M 2 CAM FOLLOWER カムフォロア CF6UUR-A OT
62 K5342D 2 CONTROLLER, SPEED コントローラ スピード AS2201F-01-06S(シロ) OT
63 H13384 1 VALVE, SOL バルブ SOL SX5320-5MZ-C6-F2-X21 OT
64 H5273A 2 BOLT, HEX SOCKET ボルト 六角穴 M03X005 FE
65 W1021A 2 WASHER, LOCK ワッシャ スプリング 3M/M FE
66 Y3079S 1 UNION, ELBOW ユニオン エルボ KQ2L08-01S OT
67 S1056E 2 SILENCER サイレンサ AN103-01 OT
68 DNAB1271 1 COVER カバー FE
69 GGPK0011 1 BKT, SUPPORT BKT 支え FE
70 GGPK0021 1 BKT, SUPPORT BKT 支え FE
71 H5322A 4 BOLT, HEX SOCKET ボルト 六角穴 M06X015 FE
72 W1024A 4 WASHER, LOCK ワッシャ スプリング 6M/M FE
73 W1045A 4 WASHER, FLAT ワッシャ 平 4W- 6 FE
74 H5322A 4 BOLT, HEX SOCKET ボルト 六角穴 M06X015 FE
75 W1024A 4 WASHER, LOCK ワッシャ スプリング 6M/M FE
112
PTS-XPFS-03JE