PTS-FIFEEDER-20_(1) - 第139页
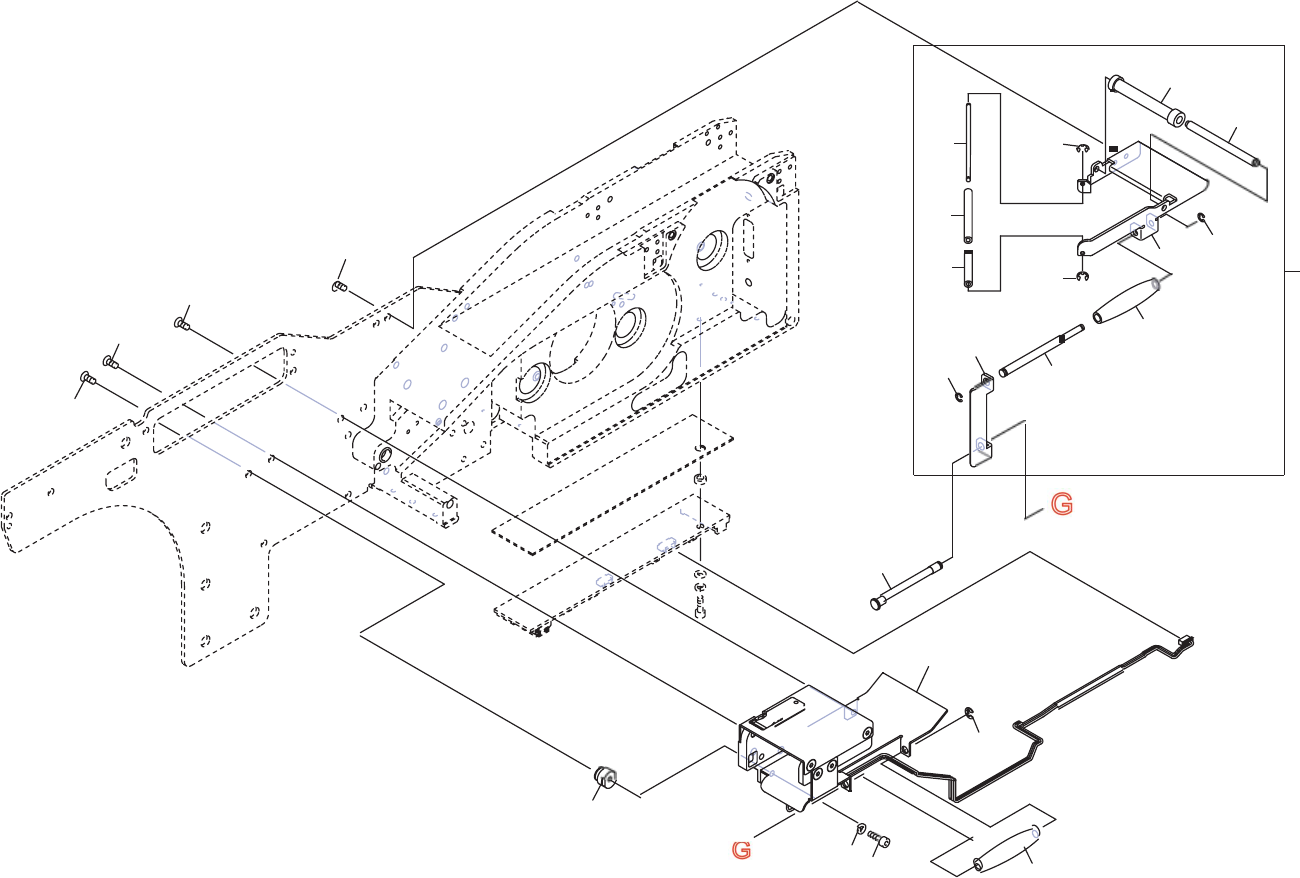
131 PTS-FI FEEDER-20 F EE D E R W 4 4c 3/ 3 フ ィ ー ダ W 4 4c 3/ 3 AB10431 No. 番 号 D rg .N o . & C od e N o. 図番 & コ ード番号 QT Y 個 数 Descri ption 品名 Rat ing 規 格 Re ma rk s 備 考 1 AA8GM05 1 SEN SOR センサ 2 K 53 57L 1 S C …

130 PTS-FIFEEDER-20
18
20
FEEDER W44c 3/3
フィーダ W44c 3/3
AB10431
23
22
12
11
5
2
9
31
1
33
8
3
32
13
15
23
21
24
19
16
14
17
4

131 PTS-FIFEEDER-20
FEEDER W44c 3/3
フィーダ W44c 3/3
AB10431
No.
番号
Drg.No. & Code No.
図番 & コード番号
QTY
個数
Description
品名
Rating
規格
Remarks
備考
1
AA8GM05
1
SENSOR
センサ
2
K5357L
1
SCREW, HEX SOCKET COUNTERSUNK
小ネジ 六角穴皿
M03X006(3カ シロ)
3
H54251
1
BOLT, HEX SOCKET
ボルト 六角穴
M03X006(3カ シロ)
4
W1106C
1
WASHER, LOCK
ワッシャ スプリング
3M/M(3カ シロ)
5
K65003
1
SCREW, HEX SOCKET COUNTERSUNK
小ネジ 六角穴皿
M03X005(3カ シロ)
8
PM87183
1
PIN
ピン
9
K65003
1
SCREW, HEX SOCKET COUNTERSUNK
小ネジ 六角穴皿
M03X005(3カ シロ)
11
2ADLFC001800
1
BKT, ROLLER
BKT ローラ
12
K65003
2
SCREW, HEX SOCKET COUNTERSUNK
小ネジ 六角穴皿
M03X005(3カ シロ)
13
2MDLFC003000
1
BKT, ROLLER
BKT ローラ
14
PJ03553
1
ROLLER
ローラ
15
PM90432
1
PIN
ピン
16
S1003N
1
CIR-CLIP
サークリップ
ST-EW -2.5(3カ シロ)
17
S1003D
1
CIR-CLIP
サークリップ
ST-EW-2(3カ シロ)
18
PJ04532
1
ROLLER
ローラ
19
PM44121
1
PIN
ピン
20
PJ00965
1
ROLLER
ローラ
21
PJ01095
1
ROLLER
ローラ
22
PM44152
1
PIN
ピン
23
S61924
2
CIR-CLIP, E-TYPE
サークリップ E形
E-1.5 (3カ シロ)
24
PB063F0
1
BKT, SUPPORT
BKT 支え
31
PM90441
1
PIN
ピン
32
PJ03553
1
ROLLER
ローラ
33
S1003N
1
CIR-CLIP
サークリップ
ST-EW-2.5(3カ シロ)

132 PTS-FIFEEDER-20
9
REEL HOLDER W44c 15inch
リール ホルダ W44c 15インチ
21
10
7
5
15
4
12
11
4
4
AA85417
22
22
6
2
8
5
1
4
5
4
14
6
15
3
14
16
16
15