PTS-FIFEEDER-20_(1) - 第24页
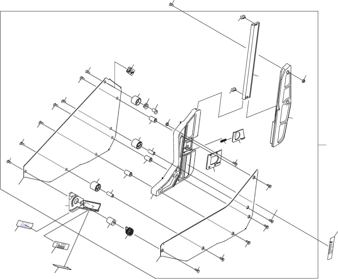
23 PTS-FIFEEDER-20 39 XK055 46 1 B O A R D , P R IN TE D C IR C U IT 基 板 プ リ ン ト FH 1389 A2F 40 2MDLFA 190801 1 SHEET SW シ ー トS W 41 PB 03TS5 1 P LA T E, SE A L プ レ ー ト シ ー ル 42 2MDLFA 067100 2 SEA L シー ル W 0 4 f 43 2MDL…

23 PTS-FIFEEDER-20
FEEDER W04f 2/2
フィーダ W04f 2/2
2ADLFA005240
No.
番号
Drg.No. & Code No.
図番 & コード番号
QTY
個数
Description
品名
Rating
規格
Remarks
備考
1
PH01715
1
GUIDE
ガイド
2
PP02693
1
SLIDE, AUXILIARY
スライド ホジヨ
3
H63592
2
BOLT, HEX SOCKET
ボルト 六角穴
EH0306
4
2MDLFA065201
1
BOLT, HEX SOCKET
ボルト 六角穴
5
W1106C
1
WASHER, LOCK
ワッシャ スプリング
3M/M(3カ シロ)
6
W1108B
1
WASHER, FLAT
ワッシャ 平
3M/MX0.5X7(3カシロ)
7
PZ02321
1
SPRING
スプリング
8
PT01871
1
CLAMPER
クランパ
9
2MDLFA295800
1
WIRE
ワイヤ
10
K69487
1
SCREW, HEX SOCKET COUNTERSUNK
小ネジ 六角穴皿
M03X008(3カ シロ) SL-250ショリ
11
2MDLFA105701
1
PLATE, REAR
プレート リヤー
12
K69488
3
SCREW, HEX SOCKET COUNTERSUNK
小ネジ 六角穴皿
M04X008(3カ シロ) SL-250ショリ
13
PH01816
1
HANDLE
取手
14
K53579
3
SCREW, HEX SOCKET COUNTERSUNK
小ネジ 六角穴皿
M03X010(3カ シロ)
15
N1079W
3
NUT, HEX
ナット 六角
M03 3シュ(3カ シロ)
16
2MDLFA063502
1
LEVER
レバー
17
PT01884
1
CLIPPER, WIRE
クリツパ ワイヤ
18
K5357X
1
SCREW, HEX SOCKET COUNTERSUNK
小ネジ 六角穴皿
M03X008(3カ シロ)
19
N4018A
1
SCREW, HEX SOCKET SET
ネジ 六角穴止め
M03X003
クボミサキ
20
PM03663
1
PIN
ピン
21
K64283
1
SCREW, HEX SOCKET COUNTERSUNK
小ネジ 六角穴皿
M04X008(3カシロ)
22
PP02627
1
LEVER
レバー
23
PH01671
1
ROLLER
ローラ
24
PM066B2
1
PIN, ROLLER
ピン ローラ
25
K5357L
1
SCREW, HEX SOCKET COUNTERSUNK
小ネジ 六角穴皿
M03X006(3カ シロ)
26
PH01682
1
ROLLER
ローラ
27
PM066A5
1
PIN, PIVOT
ピン 支点
28
2MHEFA042300
1
SCREW, HEX SOCKET COUNTERSUNK
小ネジ 六角穴皿
29
PM0BAD1
1
RETAINER, SPRING
押え スプリング
30
PZ45640
1
SPRING
スプリング
31
2AGKFA000201
1
BOARD, PRINTED CIRCUIT
基板 プリント
FH1395C0F
32
K5170M
2
SCREW, C/R TRUSS
小ネジ 十穴トラス
M02X005(ステンレス)
33
N10736
2
NUT, HEX
ナット 六角
M02 3シュ(3カクロ)
34
PS04040
1
SEAL
シール
35
PJ20961
2
PLATE
プレート
37
2MDLFA032201
1
PLATE
プレート
38
PH02063
1
COVER, SWITCH
カバー SW

23 PTS-FIFEEDER-20
39
XK05546
1
BOARD, PRINTED CIRCUIT
基板 プリント
FH1389A2F
40
2MDLFA190801
1
SHEET SW
シートSW
41
PB03TS5
1
PLATE, SEAL
プレート シール
42
2MDLFA067100
2
SEAL
シール
W04f
43
2MDLFA067300
1
SEAL, BAR CODE
シール バーコード
W04f, unit serial number
44
PX09210
1
SEAL
シール
45
2MDLFA010702
1
TAPE, SEAL
テープ シール
46
2MDLFA035702
1
SHEET, RUBBER
シート ゴム
47
2MDLFA035901
1
SHEET, RUBBER
シート ゴム
48
2MDLFA240400
1
NAMEPLATE
銘板
0201

24 PTS-FIFEEDER-20
REEL HOLDER W04b,W04f 7inch
リール ホルダ W04b,W04f 7インチ
31
3
12
15
26
2
13
13.1
14
25
10
24
10
18
10
19
17
33
20
24
AA7ZM17
.7 %(
32
33
19
18
17
11
3
7
9
8
6
20
17
20
17
17
22
32
23
16
32
33
32
33
21
4
20
17
1
5