PTS-NXT-02.1JE - 第280页
251
250

251

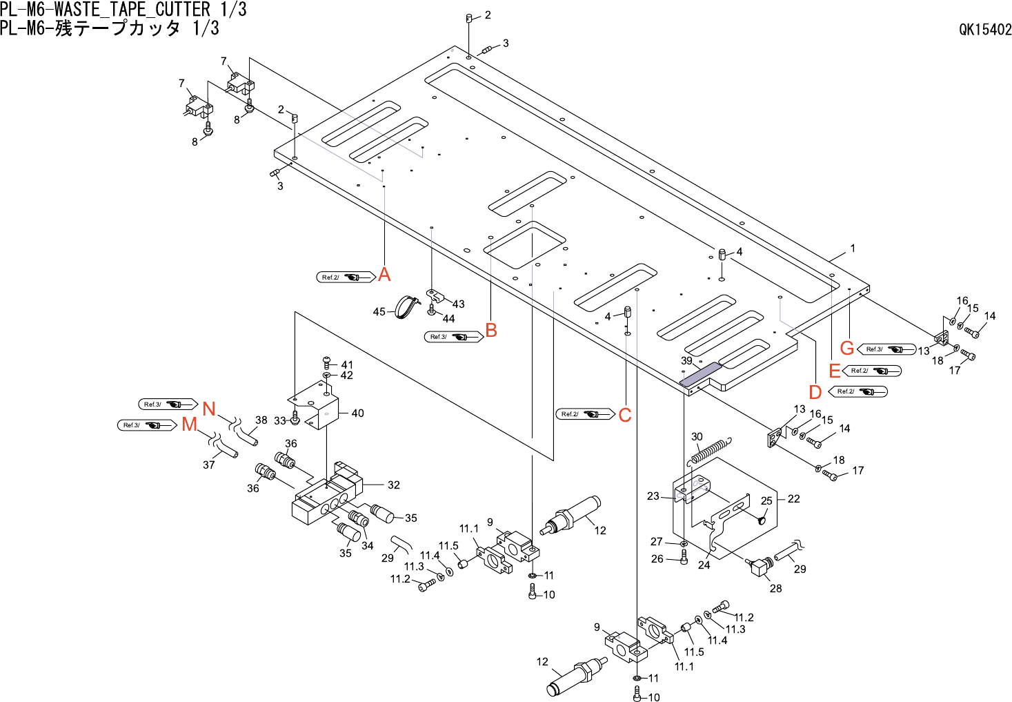
PL-M6-WASTE_TAPE_CUTTER 1/3
PL-M6-残テープカッタ 1/3 QK15402
番号 図番 & コード番号 個数 品名 規格 材質 備考
No. Drg.No. & Code No. QTY Description Rating Materials Remarks
1 PM42101 1 PLATE プレート FE
2 PM04432 2 PIN ピン OT
3 N4019H 2 SCREW, HEX SOCKET SET ネジ 六角穴止め M03X004 トガリサキ FE LOCTITE
4 H2116C 2 PIN ピン MS6-10 FE TreeBond1373B
7 S4077L 2 SENSOR, PHOTO センサ フォト PM-L44P OT
8 K51995 4 SCREW, WASHER ASS'Y 小ネジ 座金組込み M03X012 ナベセムス P4 FE
9 PM23561 2 BKT BKT FE
10 H5300A 4 BOLT, HEX SOCKET ボルト 六角穴 M05X015 1ハコ400ケ FE 8N・m
11 W1012A 4 WASHER, CONICAL ワッシャ 皿 M- 5-L FE
11.1 PG01020 2 PLATE, STOPPER プレート ストッパ PL
11.2 H5276A 4 BOLT, HEX SOCKET ボルト 六角穴 M03X010 1ハコ500ケ FE 4N・m TreeBond1324N
11.3 W1021A 4 WASHER, LOCK ワッシャ スプリング 3M/M 1ハコ30000ケイリ ハコガイ FE
11.4 W1040A 4 WASHER, FLAT ワッシャ 平 3M/MX0.5X7 FE
12 A1037C 2 ABSORBER, SHOCK アブソーバ ショック RB1412 OT
13 PB02003 2 PLATE, LOCATING プレート 位置決め FE
14 H5275A 4 BOLT, HEX SOCKET ボルト 六角穴 M03X008 FE 2N・m
15 W1021A 4 WASHER, LOCK ワッシャ スプリング 3M/M FE
16 W1040A 4 WASHER, FLAT ワッシャ 平 3M/MX0.5X7 FE
17 H5288A 2 BOLT, HEX SOCKET ボルト 六角穴 M04X010 FE 4N・m
18 W1022A 2 WASHER, LOCK ワッシャ スプリング 4M/M FE
22 AA90700 1 PANEL, CONNECTOR パネル コネクタ OT
23 PB18530 1 PANEL, CONNECTOR パネル コネクタ FE
24 PB18540 1 SHUTTER シャッタ FE
25 PM04403 2 PIN, GUIDE ピン ガイド FE
26 H5287A 2 BOLT, HEX SOCKET ボルト 六角穴 M04X008 FE 4N・m
27 W1022A 2 WASHER, LOCK ワッシャ スプリング 4M/M FE
28 H3149W 1 PLUG, COUPLER プラグ カプラ MC-06PCL OT
29 PZ09780 1 TUBE チューブ OT
30 PB01981 1 SPRING, TENSION スプリング 引張 FE
32 H1338D 1 VALVE, SOLVALVE, SOL バルブ SOL SY5120-5MZ-01 OT
33 K5174D 2 SCREW, WASHER ASS'Y 小ネジ 座金組込み M03X008P=4 クロメート ナベセムスビス FE
34 Y3063A 1 UNION, HALF ユニオン ハーフ KJH06-01S OT
35 S1056E 2 SILENCER サイレンサ AN103-01 OT
36 Y3062R 2 UNION, HALF ユニオン ハーフ KJH04-01S OT
37 PZ09790 1 TUBE チューブ OT
38 PZ09800 1 TUBE チューブ OT
39 PX01630 1 SEAL, BAR CODE シール バーコード OT
252