PTS-NXT-02.1JE - 第297页
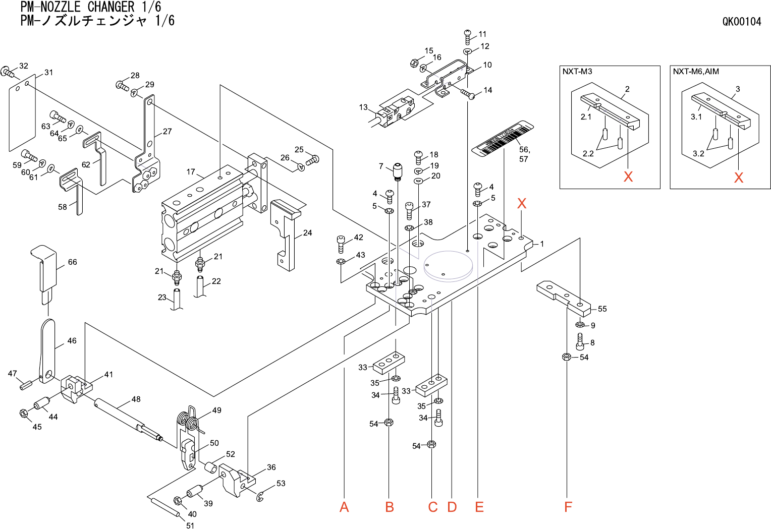
PM-NOZZLE CHANGER 1/6 PM-ノズルチェンジャ 1/6 QK00104 番号 図番 & コード番号 個数 品名 規格 材質 備考 No. Drg.No. & Code No. QTY Description Rating Materials Remarks 1 PM27943 1 PLATE, UPPER プレート 上 FE 2 AA57303 1 GUIDE ガイド OT NXT-M3 2.1 P…

267

PM-NOZZLE CHANGER 1/6
PM-ノズルチェンジャ 1/6 QK00104
番号 図番 & コード番号 個数 品名 規格 材質 備考
No. Drg.No. & Code No. QTY Description Rating Materials Remarks
1 PM27943 1 PLATE, UPPER プレート 上 FE
2 AA57303 1 GUIDE ガイド OT NXT-M3
2.1 PM17803 1 GUIDE ガイド FE
2.2 H21928 2 PIN, PARALLEL ピン 平行 2゚X 8 Bシュ(H7) FE
3 AA57403 1 GUIDE ガイド OT NXT-M6,AIM
3.1 PM17813 1 GUIDE ガイド FE
3.2 H21928 2 PIN, PARALLEL ピン 平行 2゚X 8 Bシュ(H7) FE
4 K5255T 8 SCREW, HEX SOCKET BUTTON 小ネジ 六角穴ボタン M03X006 FE
5 W1010A 8 WASHER, CONICAL ワッシャ 皿 M- 3-L FE
7 PM17790 2 PIN, REFERENCE ピン 基準 FE
8 H5277T 2 BOLT, HEX SOCKET ボルト 六角穴 M03X014 1ハコ500ケ FE
9 W1010A 2 WASHER, CONICAL ワッシャ 皿 M- 3-L FE
10 PB05461 1 GUARD ガード FE
11 K51845 3 SCREW, C/R PAN 小ネジ 十穴鍋 M02.5X005 ステンレス FE
12 W1020H 3 WASHER, LOCK ワッシャ スプリング 2.5M/M FE
13 S3159K 1 SW, MICRO SW マイクロ D3M-01-3 OT
14 K5175Z 2 SCREW, C/R PAN 小ネジ 十穴鍋 M02X012 ステンレス FE
15 N10735 2 NUT, HEX ナット 六角 M 2 3シュ FE
16 W1020A 2 WASHER, LOCK ワッシャ スプリング 2M/M FE
17 XS01261 1 CYLINDER, AIR シリンダ エアー STR2-M-10-10-0-FL327528 OT
18 K5255T 2 SCREW, HEX SOCKET BUTTON 小ネジ 六角穴ボタン M03X006 FE
19 W1021A 2 WASHER, LOCK ワッシャ スプリング 3M/M FE
20 W1040A 2 WASHER, FLAT ワッシャ 平 3M/MX0.5X7 FE
21 N2030T 2 NIPPLE ニップル M-5AU-4 OT
22 PZ07451 1 TUBE チューブ Φ4x270 OT
23 PZ07461 1 TUBE チューブ Φ4x300 OT
24 PM18520 1 ARM アーム FE
25 K5256E 2 SCREW, HEX SOCKET BUTTON 小ネジ 六角穴ボタン M03X010 FE
26 W1021A 2 WASHER, LOCK ワッシャ スプリング 3M/M FE
27 PB22900 1 BKT BKT FE
28 K52565 2 SCREW, HEX SOCKET BUTTON 小ネジ 六角穴ボタン M04X006 FE
29 W1022A 2 WASHER, LOCK ワッシャ スプリング 4M/M FE
31 PB22920 1 GUARD ガード FE
32 K5202A 2 SCREW, C/R TRUSS 小ネジ 十穴トラス M03X003 ユニクロメッキ FE
33 PB18290 2 BKT, STOPPER BKT ストッパ FE
34 H5274A 4 BOLT, HEX SOCKET ボルト 六角穴 M03X006 1ハコ500ケ FE
35 W1010A 4 WASHER, CONICAL ワッシャ 皿 M- 3-L FE
268

PM-NOZZLE CHANGER 1/6
PM-ノズルチェンジャ 1/6 QK00104
番号 図番 & コード番号 個数 品名 規格 材質 備考
No. Drg.No. & Code No. QTY Description Rating Materials Remarks
36 PM17522 1 BKT, CLAMP BKT クランプ FE
37 H5274A 2 BOLT, HEX SOCKET ボルト 六角穴 M03X006 FE
38 W1010A 2 WASHER, CONICAL ワッシャ 皿 M- 3-L FE
39 H31630 1 PLUNGER, BALL プランジャ ボール PBF-5-KS OT
40 N1083A 1 NUT, HEX ナット 六角 M 5 P=0.8 3シュ FE
41 PM17532 1 BKT, CLAMP BKT クランプ FE
42 H5274A 2 BOLT, HEX SOCKET ボルト 六角穴 M03X006 FE
43 W1010A 2 WASHER, CONICAL ワッシャ 皿 M- 3-L FE
44 H31630 1 PLUNGER, BALL プランジャ ボール PBF-5-KS OT
45 N1083A 1 NUT, HEX ナット 六角 M 5 P=0.8 3シュ FE
46 PM18040 1 LEVER, CLAMP レバー クランプ FE
47 H2043A 1 PIN, SPRING ピン スプリング 2゚X12 FE
48 PM18001 1 PIN, PIVOT ピン 支点 FE
49 PZ08740 1 SPRING, TORSION スプリング ネジリ FE
50 PM20790 1 CLAMPER クランパ FE
51 H20942 1 PIN, PARALLEL ピン 平行 3゚X25 Aシュ(M6) FE
52 PM17550 1 COLLAR カラー FE
53 S1020A 1 CIR-CLIP サークリップ ST-EW- 2 FE
54 N1080A 3 NUT, HEX ナット 六角 M 4 P=0.7 1ハコ1000ケイリ ハコガイ FE
55 PB18280 1 BKT, STOPPER BKT ストッパ FE
56 PX01340 1 SEAL, BAR CODE シール バーコード OT NXT-M3
57 PX01350 1 SEAL, BAR CODE シール バーコード OT NXT-M6,AIM
58 PB22172 1 DOG, SW ドッグ SW FE
59 H5268T 2 BOLT, HEX SOCKET ボルト 六角穴 M02.5X006 FE
60 W1020H 2 WASHER, LOCK ワッシャ スプリング 2.5M/M FE
61 W1039H 2 WASHER, FLAT ワッシャ 平 2.5M/M FE
62 PB22911 1 DOG, SW ドッグ SW FE
63 H5268T 2 BOLT, HEX SOCKET ボルト 六角穴 M02.5X006 FE
64 W1020H 2 WASHER, LOCK ワッシャ スプリング 2.5M/M FE
65 W1039H 2 WASHER, FLAT ワッシャ 平 2.5M/M FE
66 PB17291 1 ATTACHMENT アタッチメント FE
269