PTS-NXT-02.1JE - 第372页
343

PP-M3-DOUBLE CONVEYOR 17/
PP-M3-ダブルコンベア 17/ QK05201
番号 図番 & コード番号 個数 品名 規格 材質 備考
No. Drg.No. & Code No. QTY Description Rating Materials Remarks
1 PM09140 1 BKT,MOTOR BKT モータ FE
2 PM09150 1 BKT,MOTOR BKT モータ FE
3 H5322A 4 BOLT, HEX SOCKET ボルト 六角穴 M06X015 FE
4 W1024A 4 WASHER, LOCK ワッシャ スプリング 6M/M FE
5 PM09160 5 PLATE プレート FE
6 H5289A 15 BOLT, HEX SOCKET ボルト 六角穴 M04X012 FE 3.92N・m
7 W1022A 15 WASHER, LOCK ワッシャ スプリング 4M/M FE
8 W1043A 15 WASHER, FLAT ワッシャ 平 4W- 4 FE
9 PM09170 5 BLOCK ブロック FE
10 H5288A 10 BOLT, HEX SOCKET ボルト 六角穴 M04X010 FE 3.92N・m
11 W1011A 10 WASHER, CONICAL ワッシャ 皿 M- 4-L FE
12 PM09190 5 BOLT, ADJUSTING ボルト セリ FE
13 XM00231 2 MOTOR, STEPPING モータ ステッピング OT エンコーダ付 With Encoder
14 XM00241 3 MOTOR, STEPPING モータ ステッピング OT
15 H5288A 20 BOLT, HEX SOCKET ボルト 六角穴 M04X010 FE 3.92N・m
16 W1022A 20 WASHER, LOCK ワッシャ スプリング 4M/M FE
17 PM09180 5 BLOCK,LOCATING ブロック イチギメ FE
18 H5276A 10 BOLT, HEX SOCKET ボルト 六角穴 M03X010 1ハコ500ケ FE 1.96N・m
19 W1021A 10 WASHER, LOCK ワッシャ スプリング 3M/M 1ハコ30000ケイリ ハコガイ FE
20 PZ05391 2 PULLEY プーリ OT
21 N4027A 4 SCREW, HEX SOCKET SET ネジ 六角穴止め M04X005 クボミサキ OT
342

343

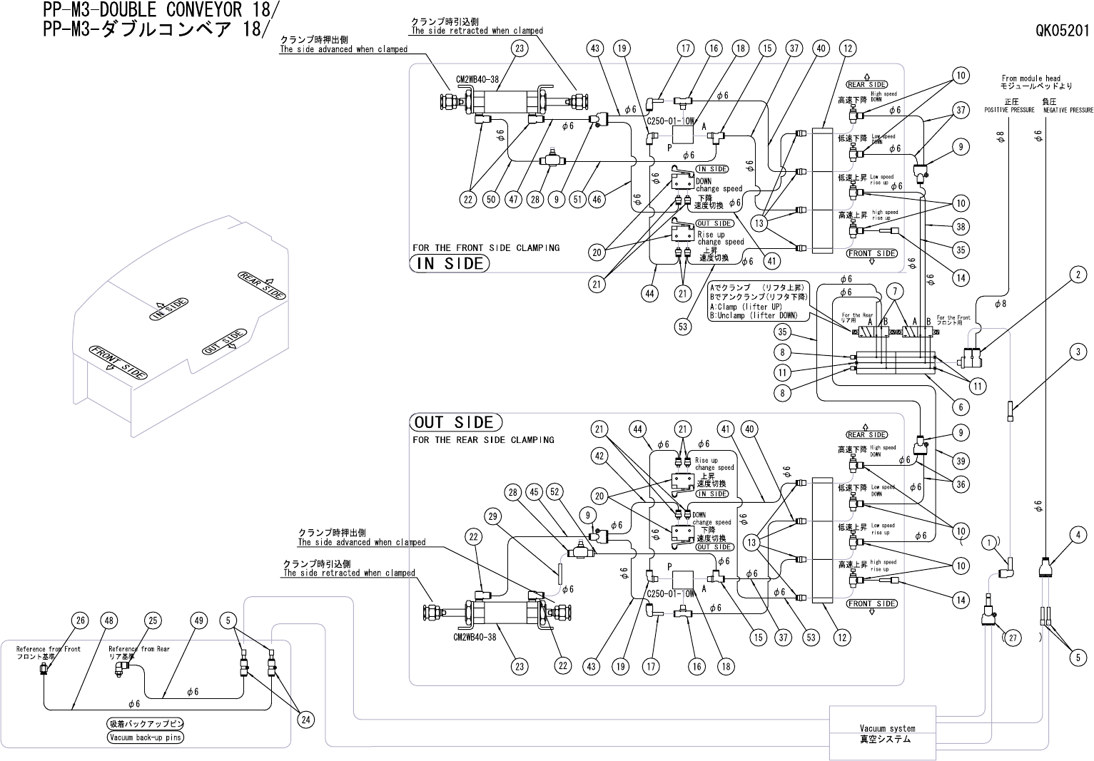
PP-M3-DOUBLE CONVEYOR 18/
PP-M3-ダブルコンベア 18/ QK05201
番号 図番 & コード番号 個数 品名 規格 材質 備考
No. Drg.No. & Code No. QTY Description Rating Materials Remarks
1 A4066R 0(1) ELBOW エルボ KQ2L08-99 OT 注1 Note.1
2 Y3120A 1 UNION, ELBOW ユニオン エルボ KQ2VD08-01S OT
3 H3145M 1(0) PLUG プラグ KQ2P-08 OT 注1 Note.1
4 K5049C 1 CONNECTOR コネクタ PY6 OT
5 H3127C 4(0) PLUG プラグ PP6 OT 注1 Note.1
6 M1034R 1 MANIFOLD マニホールド SS5Y3-41-02-C6 OT
7 DLPQ 2 VALVE, SOL バルブ SOL SY3240-5LOZ OT
8 S1056A 2 SILENCER サイレンサ AN101-01 OT
9 Y3075A 4 UNION ユニオン KQ2U06-00 OT
10 K5342D 8 CONTROLLER, SPEED コントローラ スピード AS2201F-01-06S OT
11 A3034A 3 PLUG プラグ PT1/8 OT
12 PM13610 2 MANIFOLD マニホールド AL
13 Y3063A 8 UNION, HALF ユニオン ハーフ KJH06-01S OT
14 S1056H 2 SILENCER サイレンサ AN103-KM6 OT
15 Y30436 2 UNION ユニオン KJY06-01S OT
16 Y3034Y 2 UNION ユニオン KJT06-01S OT
17 Y3049X 2 UNION, ELBOW ユニオン エルボ KJL06-99 OT
18 H1050K 2 VALVE, CHECK バルブ チェック C250-01-32W OT
19 Y3049W 2 UNION, ELBOW ユニオン エルボ KJL06-01S OT
20 H1063K 4 VALVE, MECHANICAL バルブ メカニカル VM123-M5-01 OT
21 Y30827 8 UNION, HALF ユニオン ハーフ KQ2H06-M5 OT
22 Y3082M 4 UNION, ELBOW ユニオン エルボ KQ2VS06-02S OT
23 XS01110 2 CYLINDER, AIR シリンダ エアー CM2WB40-38 OT
24 Y3027D 2 UNION ユニオン 6R-00U OT
25 Y3048B 1 UNION, ELBOW ユニオン エルボ PL6-M6 OT
26 Y3021G 1 UNION ユニオン PC6-M6 OT
27 . 0(1) UNION ユニオン KQ2X06-08 OT 注1 Note.1
28 K5340G 2 CONTROLLER, SPEED コントローラ スピード AS2000F-06 OT
29 N2033X 1 NIPPLE ニップル KQ2N06-99 OT
35 PZ07200 2 TUBE チューブ TU0604B L=95 OT
36 PZ06270 2 TUBE チューブ TU0604B L=100 OT
37 PZ06260 4 TUBE チューブ TU0604B L=75 OT
38 PZ07230 1 TUBE チューブ TU0604B L=185 OT
39 PZ07240 1 TUBE チューブ TU0604B L=230 OT
40 PZ07810 2 TUBE チューブ TU0604B L=120 OT
41 PZ06820 2 TUBE チューブ TU0604B L=380 OT
42 PZ07290 1 TUBE チューブ TU0604B L=130 OT
344