PTS-NXT-02.1JE.pdf - 第521页
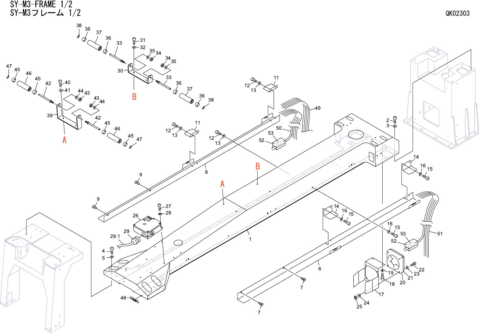
SY-M3-FRAME 1/2 SY-M3フレーム 1/2 QK02303 番号 図番 & コード番号 個数 品名 規格 材質 備考 No. Drg.No. & Code No. QTY Description Rating Materials Remarks 1 PM05988 1 FRAME フレーム FE 2 H5341A 8 BOLT, HEX SOCKET ボルト 六角穴 M08X020 FE 3 W1025…

491

SY-M3-FRAME 1/2
SY-M3フレーム 1/2 QK02303
番号 図番 & コード番号 個数 品名 規格 材質 備考
No. Drg.No. & Code No. QTY Description Rating Materials Remarks
1 PM05988 1 FRAME フレーム FE
2 H5341A 8 BOLT, HEX SOCKET ボルト 六角穴 M08X020 FE
3 W1025A 8 WASHER, LOCK ワッシャ スプリング 8M/M FE
4 H5341A 8 BOLT, HEX SOCKET ボルト 六角穴 M08X020 FE
5 W1025A 8 WASHER, LOCK ワッシャ スプリング 8M/M FE
6 PB18320 1 GUIDE, HOLDER ガイド 受け FE
7 K5357T 2 SCREW, HEX SOCKET COUNTERSUNK 小ネジ 六角穴皿 M03X008 FE LOCTITE222
8 PB18310 1 GUIDE, HOLDER ガイド 受け FE
9 K5357T 2 SCREW, HEX SOCKET COUNTERSUNK 小ネジ 六角穴皿 M03X008 FE LOCTITE222
11 PB18340 2 RETAINER, WIRING 押え 配線 FE
12 H5276A 5 BOLT, HEX SOCKET ボルト 六角穴 M03X010 FE
13 W1021A 5 WASHER, LOCK ワッシャ スプリング 3M/M FE
14 PB18350 2 RETAINER, WIRING 押え 配線 FE
15 H5276A 5 BOLT, HEX SOCKET ボルト 六角穴 M03X010 FE
16 W1021A 5 WASHER, LOCK ワッシャ スプリング 3M/M FE
17 PB17621 1 BKT BKT FE
18 H5288A 2 BOLT, HEX SOCKET ボルト 六角穴 M04X010 1ハコ500ケ FE
19 W1022A 2 WASHER, LOCK ワッシャ スプリング 4M/M 1ハコ15000ケイリ ハコガイ FE
20 H3012G 1 FAN ファン 109R0824G402 OT
21 H3012H 1 GUARD, FIN ガード フィン 109-1002G OT
22 K5241T 4 SCREW, C/R PAN 小ネジ 十穴鍋 M04X035 ユニクロ.クロ FE
23 W1041A 4 WASHER, FLAT ワッシャ 平 4M/MX0.8X9(1W-4) FE
24 W1022A 4 WASHER, LOCK ワッシャ スプリング 4M/M 1ハコ15000ケイリ ハコガイ FE
25 N1080A 4 NUT, HEX ナット 六角 M 4 P=0.7 1ハコ1000ケイリ ハコガイ FE
26 S31935 1 SW, LIMIT SW リミット D4NL-1HFG-B OT
27 H5296A 3 BOLT, HEX SOCKET ボルト 六角穴 M04X040 FE
28 W1011A 3 WASHER, CONICAL ワッシャ 皿 M-4-L FE
29 N2029Z 1 NIPPLE ニップル STR13.5 OT
29.1 RH01753 1 HARNESS ハーネス OT
30 PB11431 1 BKT,ROLLER BKT ローラ FE
31 H5288A 2 BOLT, HEX SOCKET ボルト 六角穴 M04X010 FE
32 W1022A 2 WASHER, LOCK ワッシャ スプリング 4M/M FE
33 PM18852 2 PIN ピン FE
34 N1085A 2 NUT, HEX ナット 六角 M 6 P=1.0 FE
35 W1024A 2 WASHER, LOCK ワッシャ スプリング 6M/M FE
36 K4228A 4 BEARING ベアリング 696ZZ OT
37 PJ01682 2 ROLLER ローラ PL
492

SY-M3-FRAME 1/2
SY-M3フレーム 1/2 QK02303
番号 図番 & コード番号 個数 品名 規格 材質 備考
No. Drg.No. & Code No. QTY Description Rating Materials Remarks
38 S1023A 2 CIR-CLIP サークリップ ST-EW- 5 OT
39 PB14390 1 BKT,ROLLER BKT ローラ FE
40 H5288A 2 BOLT, HEX SOCKET ボルト 六角穴 M04X010 FE
41 W1022A 2 WASHER, LOCK ワッシャ スプリング 4M/M FE
42 PM18852 2 PIN ピン FE
43 N1085A 2 NUT, HEX ナット 六角 M 6 P=1.0 FE
44 W1024A 2 WASHER, LOCK ワッシャ スプリング 6M/M FE
45 K4228A 4 BEARING ベアリング 696ZZ OT
46 PJ01682 2 ROLLER ローラ PL
47 S1023A 2 CIR-CLIP サークリップ ST-EW- 5 OT
48 PX01490 1 SEAL, BAR CODE シール バーコード OT
49 AJ13107 1 HARNESS ハーネス OT
50 AJ02210 1 HARNESS ハーネス OT
51 AJ13203 1 HARNESS ハーネス OT
52 K40025 3 CASE ケース JUSP-BA01 OT
53 H10212 3 BATTERY バッテリ JZSP-BA01 OT
493