PTS-NXT-02.1JE.pdf - 第570页
541
540

541

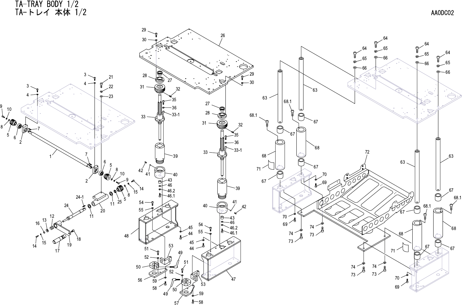
TA-TARY BODY 1/2
TA-トレイ 本体 1/2 AA0DC02
番号 図番 & コード番号 個数 品名 規格 材質 備考
No. Drg.No. & Code No. QTY Description Rating Materials Remarks
1 PM25570 1 SHAFT シャフト FE
2 PM25580 2 HOLDER, BEARING ホルダ ベアリング FE
3 H5289A 4 BOLT, HEX SOCKET ボルト 六角穴 M04X012 FE
4 W1011A 4 WASHER, CONICAL ワッシャ 皿 M- 4-L FE
5 PM25590 3 GEAR, SPIRAL BEVEL ギヤ スパイラルベベル OT
6 H4177A 2 BEARING ベアリング 6001ZZ OT
7 K20465 3 KEY, PARALLEL キー 平行 KEG4-20 OT
8 W1088R 3 WASHER ワッシャ WSSB15-4-2 FE
9 H5288A 2 BOLT, HEX SOCKET ボルト 六角穴 M04X010 FE
10 W1022A 2 WASHER, LOCK ワッシャ スプリング 4M/M FE
11 H4899A 2 BEARING, DRY ベアリング ドライ JZF15-20 OT
12 S3261N 1 SPRING スプリング WR20-35 OT
13 W1089D 1 WASHER ワッシャ WSSB20-8-2 OT
14 H5288A 2 BOLT, HEX SOCKET ボルト 六角穴 M04X010 FE
15 W1022A 2 WASHER, LOCK ワッシャ スプリング 4M/M FE
16 W10889 1 WASHER ワッシャ WSSB20-4-2 FE
17 H13275 1 HANDLE ハンドル SFR18 OT
18 K5363F 1 SCREW, HEX SOCKET COUNTERSUNK 小ネジ 六角穴皿 M06X015 FE
19 PM25620 1 HANDLE ハンドル FE
20 PM25601 1 HOUSING ハウジング FE
21 H5324A 2 BOLT, HEX SOCKET ボルト 六角穴 M06X020 FE
22 W1024A 2 WASHER, LOCK ワッシャ スプリング 6M/M FE
23 W1051A 2 WASHER, FLAT ワッシャ 平 6M/MX1.6X125(1W-6) FE
24 PM25610 1 SHAFT シャフト FE
25 W1101K 1 WASHER ワッシャ CIMR12-20-1 OT
26 PM28384 1 PLATE, BASE プレート ベース AL
27 H4121T 2 BEARING ベアリング NAX1523 OT
28 PM25680 2 HOLDER, BEARING ホルダ ベアリング FE
29 H5299A 6 BOLT, HEX SOCKET ボルト 六角穴 M05X012 FE
30 W1012A 6 WASHER, CONICAL ワッシャ 皿 M- 5-L FE
31 PM25690 2 GEAR, SPIRAL BEVEL ギヤ スパイラルベベル OT
32 H2065A 2 PIN, SPRING ピン スプリング 5゚X40 OT
33 XN00191 2 SCREW, TRAPEZOID ネジ 台形 OT
33.1 K11355 8 COLLAR カラー CLBSB6-7.5 OT
35 H5322A 8 BOLT, HEX SOCKET ボルト 六角穴 M06X015 FE
36 W1013A 8 WASHER, CONICAL ワッシャ 皿 M- 6-H FE
39 PM46620 2 SPACER スペーサ FE
542