NPM-TT2说明书.pdf - 第89页
NPM-TT2 2019.1015 - 81 - 6. 其他标准规格 6.1 程序功能 数据编制都是在数据编制系统 NPM-DGS 进行。在 NPM- DGS 作成的生产数据,通过 FA 电脑下载于设备。 但是,部分数据修正也可在机器主体 上进行。 在设备主体修正的数据以及校正内容 被保存,可以再利用。 ※ NPM-DGS 用的硬件,请客户准备。 (NPM-DGS 是其他产品 。 ) NPM-DGS 以及 NPM-DGS 的选项里的许可…

NPM-TT2 2019.1015
- 80 -
■ 基本构成
项 目 内 容
LCR 检查器(供料器形状类型)
此为计测元件的电气特性的机器。
LCR 检查器许可证 每台设备都需要许可证。

NPM-TT2 2019.1015
- 81 -
6.
其他标准规格
6.1
程序功能
数据编制都是在数据编制系统
NPM-DGS
进行。在
NPM-DGS
作成的生产数据,通过
FA
电脑下载于设备。
但是,部分数据修正也可在机器主体上进行。
在设备主体修正的数据以及校正内容被保存,可以再利用。
※
NPM-DGS
用的硬件,请客户准备。
(NPM-DGS
是其他产品。
)
NPM-DGS
以及
NPM-DGS
的选项里的许可证、每一个许可证用于一台设备,
您将需要购买和设备数量相同数量的许可证。
有关
NPM-DGS
的详细情况,请参照别册的「
NPM-DGS
规格说明书」。
6.2
信号塔
信号灯的颜色和亮灯标准
信号灯
颜色
分 类
亮灯标准
红色
紧急停止错误
・ 马达等的轴异常
・ 空气压力下降
・ 基板支撑部异常
・ 贴装头故障
・ 编带故障
等
黄色
中途停止错误
・ 吸着错误
・ 贴装错误
・ 基板传送错误
・ 元件用完
・ 吸嘴更换错误
等
绿色
运转中
自动运转等动力为
ON
时
(
但是,红色和黄色闪烁时熄灯
)
蓝色或者
红色
连接的设备中,成为瓶颈的设备
(
循环时间最长的设备
)
蓝色灯亮。
另外,按紧急停止开关,红色灯亮。
※ 亮灯规格,可以变更设定。
设备设定 PCB 数据
元件数据
最佳化
生产数据
标准
:
横置
距离地面
1 514 mm
红
黄
绿
(
蓝色或者红色
)
红
黄
绿
距离地面
1 629 mm
也可以纵置。
高度从地面起是
1 629 mm
。
(
蓝色或者红色
)
数据编制系统 NPM-DGS

NPM-TT2 2019.1015
- 82 -
7.
印刷基板设计基准
7.1
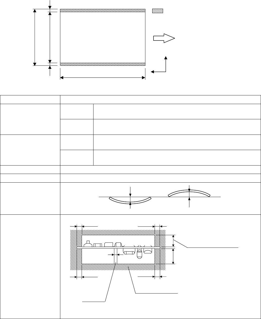
印刷基板规格概要
( )
内的数値
:
单轨模式时
项 目
规 格
基板尺寸
PC 尺寸
双轨模式
※1
: 50 × 50 mm ~ 510 × 300 mm
单轨模式
※
1
: 50 × 50 mm ~ 510 × 590 mm
M 尺寸
双轨模式
※1
: 50 × 50 mm ~ 510 × 260 mm
单轨模式
※
1
: 50 × 50 mm ~ 510 × 510 mm
贴装可能范围
PC 尺寸
双轨模式
※1
: 50 × 44 mm ~ 510 × 294 mm
单轨模式
※
1
: 50 × 44 mm ~ 510 × 584 mm
M 尺寸
双轨模式
※1
: 50 × 44 mm ~ 510 × 254 mm
单轨模式
※
1
: 50 × 44 mm ~ 510 × 504 mm
基板厚度
0.3 mm ~ 8.0 mm
基板重量
1.5 k
g以下
※
2
基板弯曲容许
基板断面
贴装前基板状态
※
1
进行生产时,需要对应该生产模式的基板支撑块。
※
2
基板重量
(
包括载体重量
)
超过
1.5 k
g 的情况时,请另行联络。
※
3
使用支撑销自动更换功能的情况时,支撑销形状、销的配置条件等有异。
详细请参阅「
9.
选购件
:
支撑销的自动更换」。
※ 有关陶瓷基板的对应请另行联络。
禁止有元件的范围
8
吸嘴贴装头
: 12 mm
3
吸嘴贴装头
: 30 mm
支撑销
※
3
(
设置在与反面元件距离隔开
2 mm
以上的位置。
)
28 mm
3 mm
3 mm
3 mm
φ
3
3 mm
Max. 0.5 mm
Max. 0.5 mm
PC:50 mm ~ 300(590) mm
M :50 mm ~ 260(590) mm
Y
X
固定侧
禁止有元件的范围
3 mm
50 mm ~ 510 mm
3 mm
流向