N7201A552C09_SPG_Operating Procedure_操作手冊 - 第256页
SPG EJP6AJ -MB-07O M-01 规格 对应基板规格 对应基板规格 项目 规格 基板尺寸 (mm) ●基板尺寸 L 尺寸 基板厚度 : 0.3 T 8.0 m m 基板重量: 3.0 kg 以下 ( 包括载体重量 ) 基板弯曲容许范围 ± 0.5 mm 以内 基板缺口范围 死区 基板识别标记 ●标记的形状例子 基板识别补正是 , 补正识别标记和电路图的位置関係 。 识别标记和基板要有一定的对比。 ●标记的尺寸和背景…

SPG EJP6AJ-MB-07OM-01
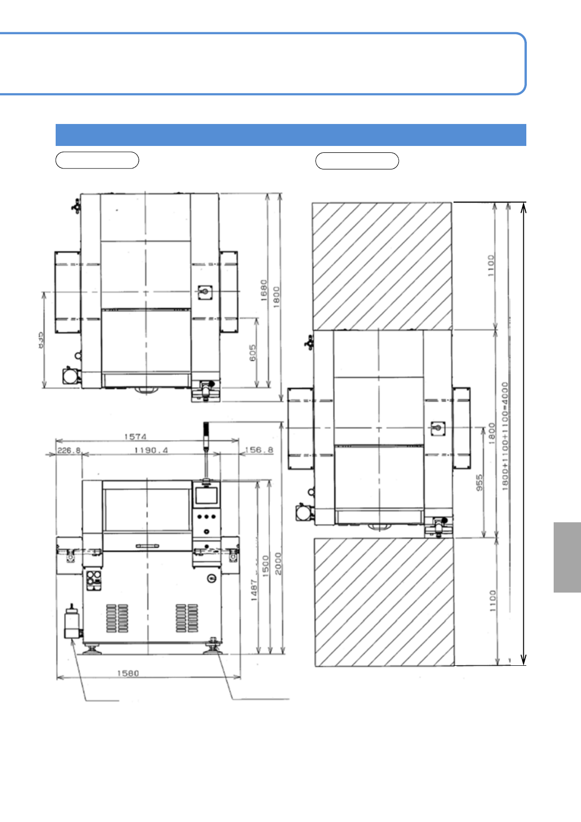
外形尺寸和工作区域
7-1-1-2
外形尺寸
工作区域
需
要
时
(SPG生产线设置最小间隔:1800+1100=2900 网板更换交替进行)
(触摸屏)
溶剂容器
电源电缆连接部
(输送带宽度)
(总宽)
(信号塔)

SPG EJP6AJ-MB-07OM-01
规格
对应基板规格
对应基板规格
项目 规格
基板尺寸 (mm)
●基板尺寸
L尺寸
基板厚度 :0.3 T 8.0 mm
基板重量:3.0 kg以下 (包括载体重量)
基板弯曲容许范围
±0.5 mm以内
基板缺口范围
死区
基板识别标记
●标记的形状例子
基板识别补正是,补正识别标记和电路图的位置関係。
识别标记和基板要有一定的对比。
●标记的尺寸和背景
标记的背景必须和标记之间保持一定的不干渉空间
●左图3的三角:正三角形
左图4的线宽度:0.3 mm以上
●标记不一定是黑色。
●基板如有缺口时、
可以任意调节在XY方向上的挡块停
止位置。
7-1-2-1
操作篇
7-1-2
最小:50 (L)×50 mm (W)
最大:510(L)×460 mm (W)
弯曲量
基板断面
变更位置(任意位置(基板断面除外))
标准基板挡块位置(基板宽度的1/2处)
缺口区域
基准
基板
传送时的开口区
从传送带面的距离
MAX.8.5mm
固定侧
传送方向
L(长度)
(单位:mm)
W(宽度)
T(厚度)
不干涉区域
* 基板端面支撑(自动方式)时:
4.5mm
基板端面支撑(固定方式)时:
5mm

SPG EJP6AJ-MB-07OM-01
7-1-2-2
需
要
时