JX-200维修调整要领书.pdf - 第124页
Rev . 1.1 维修调整要领书 13-2 13-2. 底座上部的布局 13-2-1. 各部的名称 1. X 轴电动机 2. Y 轴电动机 3. 传 送 L 电动机 4. 传送中央电动机 5. 传送 R 电动机 6. IEEE1394 中继器(中转用 基板) 7. ATC 装置 8. VCS 装置 9. CAL BLOCK 10. LIGHT CTRL 基板 图 13-2-1 -1 底座上面图 3 9 10 8 7 4 5 1 6 2

Rev. 1.1
维修调整要领书
13-1
左示标记粘贴处表示高电压部有触电危险。
为了防止突然的起动造成的事故,请关掉电源之后再进行操作。
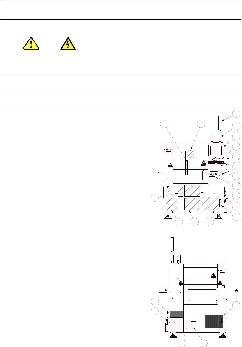
13 电气部
13-1. 电气部的布局
13-1-1. 各部的名称
1. 图像用监视器
2. 信号灯〔选购品〕
3. LCD 监视器
4. HOD〔选购品〕
5. 操作盘
〔前:LCD 监视器、START 开关、
STOP开关、ORIGIN 开关、紧急停止开关〕
〔后:紧急停止开关〕
6. 贴装头装置
〔贴装头主基板组、贴装头中转基板组、
Z/θ轴伺服放大器、 选购品: HMS〕
7. OCC、垂直照明基板组、角度照明基板
8. 鼠标
9. 键盘
10. 电源开关
11. SSD
12. 控制器
〔CPU 接口、定位板、IEEE1394A 板、
c-PCI Back Board、IO-CONVEYOR 基板、IP-X5 基板〕
13. XY 轴 AC 伺服放大器
14. 真空泵(选购项)
15. USB 端子
16. BASE 基板
17. 传送用 5 相步进电动机驱动器
〔传送电动机 L 用,传送电动机中央用,传送电动机 R 用〕
18. 电源变压器
19.
端子台
20.
电源装置
21. 断流器
22. 安全电路装置(仅限 EN 机)
危险
图 13-1-1-1 主体正面图
1
2
3
5
6 7
11
12 13
14
17
10
9
16
8
15
4
图 13-1-1-2 主体背面图
18
20
19 21
22

Rev. 1.1
维修调整要领书
13-2
13-2. 底座上部的布局
13-2-1. 各部的名称
1. X 轴电动机
2. Y 轴电动机
3. 传送L 电动机
4. 传送中央电动机
5. 传送 R 电动机
6. IEEE1394 中继器(中转用基板)
7. ATC 装置
8. VCS 装置
9. CAL BLOCK
10. LIGHT CTRL 基板
图 13-2-1-1 底座上面图
3 9 10 8 7
4
5
1
6
2

Rev. 1.1
维修调整要领书
13-3
13-3. 电源装置
13-3-1. 電源装置的构成
电源装置安装在装置背面的中央部。13-3-1-2 章表示构成。
电源装置由 DC 电源、控制用继电器、电路保护器等构成,向各装置(控制器,XY 装置,Zθ 装置,
传送带装置,贴装头装置等)供给 AC、DC 电源。
各 DC 电源的用途如下∶
-12V(-12V±0.6V、PS4) RS-232C、IP-X5 基板、贴装头主基板
+3.3V(+3.3V±0.1V、PS5) 位置板(运动控制)、IEEE1394 板、IO-CONVEYOR 基板
+5V(+5.0V±0.1V、PS2) 全部基板的逻辑电路用、CPU 基板
+24V(+24±0.1V、PS1) 继电器、电磁阀、步进电动机、传感器、信号指示等驱动用、照明用
LED
+12V(+12±0.6V、PS7) 摄像机、串行通信、激光、IEEE1394 板
+24V(+24V±0.1V、PS6) Zθ 伺服放大器控制用
+24VC (+24±0.1V、PS3) 安全电路驱动用(仅 EN 机)
13-3-1-1. DC电源电压
等级的调
整方法
NO. 电源规格 电源代号 电源装置测定端子 电压调整值
1 +3.3V PS 5 CN019 1 插脚(+3.3V)和 10 插脚 (GND) (+3.3V±0.1V)
2 +5V PS 2 CN019 2 插脚(+5.0V)和 11 插脚 (GND) (+5.0V±0.1V)
3 +12V PS 7 CN019 5 插脚(+12V)和 14 插脚 (GND) (+12.4±01V)
4 -12V PS 4 CN019 6 插脚(-12V)和 15 插脚 (GND) (-12±01V)
5 +24V PS 1 CN019 7 插脚(+24V)和 16 插脚 (GND) (+24±0.1V)
6 +24V PS 3 CN019 8 插脚(+24V)和 17 插脚 (GND) (+24±0.1V)
7 +24V PS 6 CN098 1 插脚(+24VZ)和 2 插脚 (GND) (+24±0.1V)
・ DC电源输出电压调整用电源装置的CN019和CN098来进行。
・ 以保证 DC 电源的输出电压是规格调整值,各DC电源的输出电压用可变电阻器调整。
注1.调整时,请注意电压值不能大于规格调整值。
注2.CN019-17、18插脚,和有调整指示的电源以外的GND绝对不能共用(不能连接)。
注3.PS3 是 POWER SUPPLY UNIT (EN)安装的 EN 规格用的 DC 电源,POWER SUPPLY UNIT 上
没有安装。
CN019 插脚排列图
18
9
CN098 插脚排列图
2
1
10 1
CN098
CN019