JX-200维修调整要领书.pdf - 第35页
Rev. 1.1 维修调整要领书 2-3 2-2 . 电动机的更换 2-2-1 . Z 电动机( LNC 贴装头) 更换了 Z 电动机之后,需要进行Z轴原点的位置调整,以及 Z 轴高度有关、激光有关的 MS 参数。 (输入项目请参照 2-8 项。) 1) 从伺服放大器电路板上拆下电动机线束。 2) 实施到到 2-1-1 的第 1 )~ 第 5 ) 步, 拆下喷射 器托架。 3) 请松开安装螺钉 ① ,拆下 Z M CABLE BR 。 …

Rev. 1.1
维修调整要领书
2-2
※ 给贴装头安装螺钉(6 颗)涂敷粘结剂 LOCTITE242 后,请以安装扭矩 7.0Nm 进行固定。
※ 各电动机插头请参照位置标签进行连接。
※ 如果 LNC Head 的安装面内已插有垫隙片,移装时请保持原来的关系。
14) 更换贴装头后,需要重新输入 MS 参数。
输入项目请参照 2-8 项。
图 2-1-4

Rev. 1.1
维修调整要领书
2-3
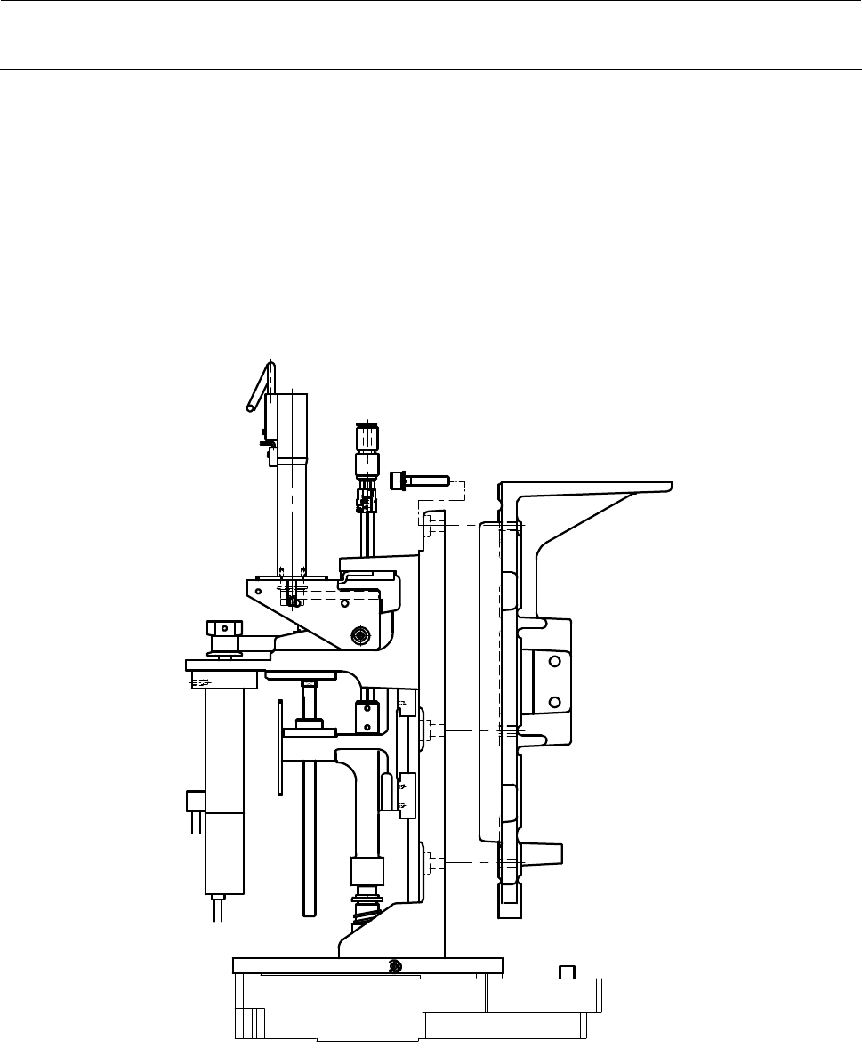
2-2.电动机的更换
2-2-1.Z电动机(LNC贴装头)
更换了 Z 电动机之后,需要进行Z轴原点的位置调整,以及 Z 轴高度有关、激光有关的 MS 参数。
(输入项目请参照 2-8 项。)
1) 从伺服放大器电路板上拆下电动机线束。
2) 实施到到 2-1-1 的第 1)~第 5)步,拆下喷射
器托架。
3) 请松开安装螺钉①,拆下 Z M CABLE BR。
4) 先松开 Z 电动机皮带轮的止动螺钉②。
5) 拆下电动机的安装螺钉③(3 颗),拔出皮带轮
同时卸下电动机。
6) 装配请按相反的步骤进行。
7) 请按以下步骤调整皮带张力。
图 2-2-1
图 2-2-2
③
②

Rev. 1.1
维修调整要领书
2-4
<皮带张力调整步骤>
① 把螺丝插到 Z 电动机的螺丝孔,朝箭头方向用杆
张力 21.6N(2.2kgf)的拉力,用安装螺丝固定。
张力计设置值(用于确认)
Weight:0.9g/m Width:8.0mm Span:45mm
合适张力 10.5±1N
※ 在 Z 电动机安装螺丝(3 个)上涂上锁定漆 242
后,拧紧固定,转矩为 2.3Nm。
※ 固定 Z 电动机皮带轮的固定螺丝时,应注意 Z 电
动机轴的平部和皮带轮固定螺丝的方向。固定螺丝的紧固转矩为 0.5Nm。
② 组装后,请获取 MS 参数的基板上面高度。
如果这一值不在−2~+2mm 之间,请重新调整 Z 电动机轴与滚珠螺杆的位置关系,再次取得
MS 参数,并确认基板上面高度在−2~+2mm 之间。
同步皮带 Z
拉
在将 Z 轴抬到最上面的状态下,
如果按左图所示,在轴标记为 2 点
钟方向的位置或者轴的 D 形切面为
图示的位置时将 Z 电动机皮带轮固
定,即达到 2)项的条件。
(Z 轴球螺丝转动
1 圈的行程): 6mm
Z 传感器 OFF 区域
−2~+2mm 稳定区域
Z 传感器 ON 区域