JM-100-Rev07PDFA - 第29页
- 24 - REF.NO NOTE PA RT NO D E S C R I P T I O N 品 名 Qty 1 401-61579 X_FRAME_END_L_350 Xフレームエンド_L_350 1 2 SL-6052592-TN SCREW M5 L=25 座金付き六角穴ボルト M5 L=25 16 3 401-61580 X_FRAME_END_R_350 Xフレームエンド_R_350 1 4 402-06436 X_BA…

- 23 -
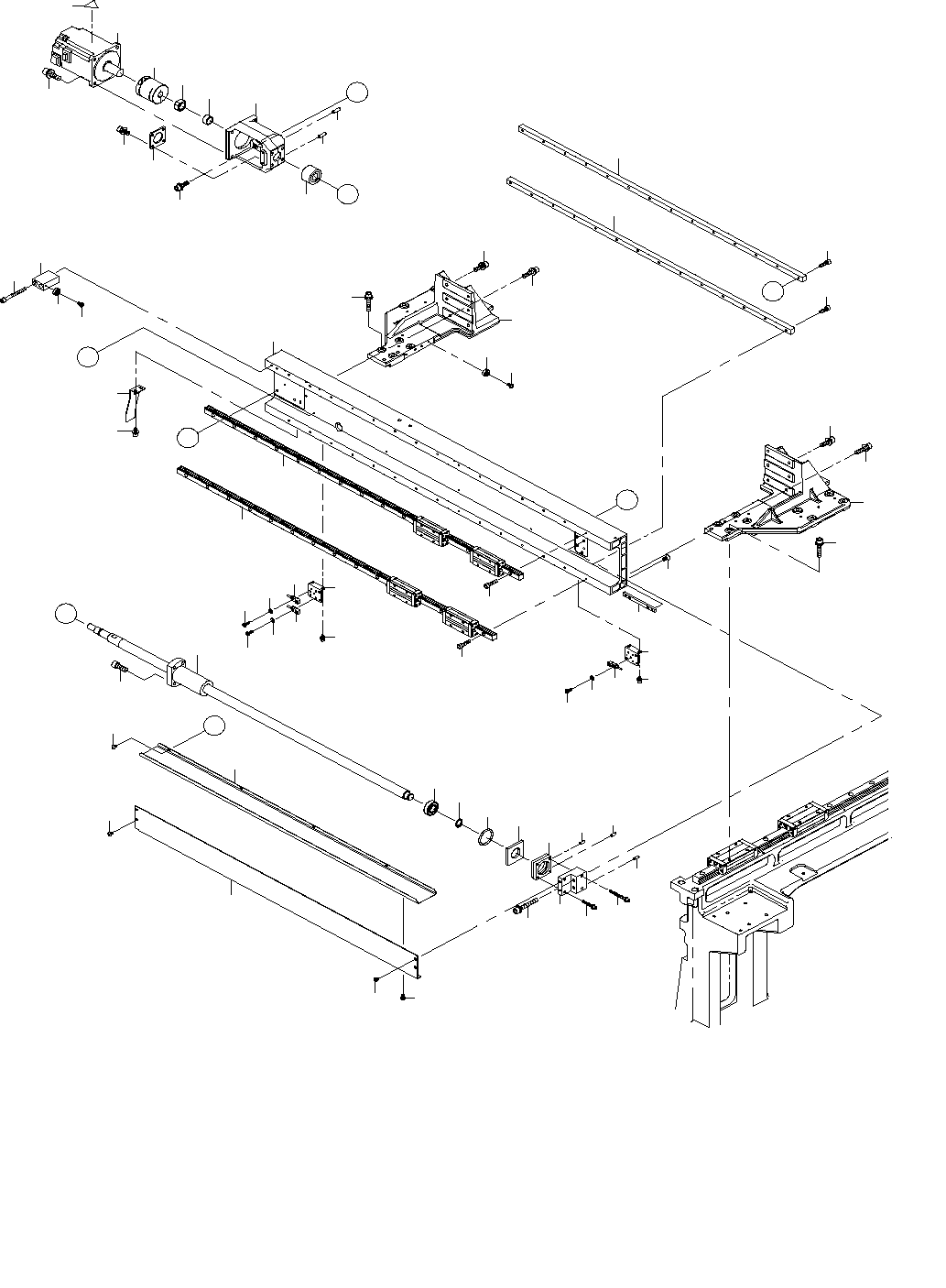
12.X-Y COMPONENTS (1)
X − Y 関係(1)
C
B
2
1
25
18
12
21
10
8
43
51
52
23
22
B
C
2
15
37
40
40
A
A
38
39
33
32
27
31
30
14
3
50
47
53
6
7
29
24
D
7
6
D
4
4
48
49
46
45
44
45
44
36
36
37
13
24
25
5
5
54
42
9
11
16
17
20
19
28
28
9
34
35
26
28
40
41
55
55
55

- 24 -
REF.NO NOTE PART NO D E S C R I P T I O N
品 名
Qty
1 401-61579 X_FRAME_END_L_350
Xフレームエンド_L_350
1
2 SL-6052592-TN SCREW M5 L=25
座金付き六角穴ボルト M5 L=25
16
3 401-61580 X_FRAME_END_R_350
Xフレームエンド_R_350
1
4 402-06436 X_BACK_BAR_J1
XバックバーJ1
2
5 SM-6041202-TN SCREW M4X0.7 L=12
六角穴ボルト M4X0.7 L=12
28
6 402-06431 SHS15_L890
SHS15_L890
2
7 SM-6041602-TN SCREW M4X16
六角穴ボルト M4X16
30
8 401-90239 X_MOTOR_FRAME2
Xモータフレーム2
1
9 PH-0400122-C0 PARALLEL PIN TYPE B 4X12
平行ピン B種 4X12
2
10 SL-6051692-TN SCREW M5 L=16
座金付き六角穴ボルト M5 L=16
4
11 SB-1150016-00 BEARING
ころがり軸受
1
12 401-77465 BEARING_PLATE
ベアリングプレート
1
13 SL-6051292-TN SCREW M5 L=12
座金付き六角穴ボルト M5 L=12
4
14 402-06433 X_BALL_SCREW
X軸ボールねじ
1
15 SM-6061602-TN SCREW M6 L=16
六角穴ボルト M6 L=16
4
16 401-77466 COLLAR_150_200_60
カラー_150_200_60
1
17 400-93876 BEARING_LOCK_NUT
ベアリング_ロック_ナット
1
18 401-72739 COUPLING_X_044
カップリングX_044
1
19 401-29653 X AXIS MOTOR
X軸モータ
1
20 CM-3003000-03 HIGH TEMPARATURE CAUTION LABEL 2 (31.5)
高温注意シール 2(31.5)
1
21 SL-6062042-TN SCREW M6 L=20
座金付き六角穴ボルト M6 L=20
4
22 401-10222 X_STOPPER
Xストッパ
1
23 SM-6044002-TN SCREW M4X0.7 L=40
六角穴ボルト M4X0.7 L=40
2
24 400-49671 COVER CUSHION
カバークッション
2
25 SM-4030601-SC SCREW M3X0.5 L=6
なべ小ねじ M3X0.5 L=6
2
26 401-82752 X_STOPPER_RUBBER
Xストッパラバー
1
27 401-90235 X_BS_FRAME
X_BSフレーム
1
28 PS-0400122-KP SPRING PIN TYPE W 4X12
スプリングピン W形 4X12
3
29 SL-6053592-TN SCREW M5 L=35
座金付き六角穴ボルト M5 L=35
2
30 401-27577 X_BALL_SCREW_SUPPORT
Xボールスクリューサポート
1
31 400-93864 O_RING_X
O_リング_X
1
32 SL-6042592-TN SCREW M4 L=25
座金付き六角穴ボルト M4 L=25
2
33 SL-6044092-TN SCREW M4 L=40
座金付き六角穴ボルト M4 L=40
2
34 SB-1150004-00 BEARING
ころがり軸受
1
35 RC-0150001-KP C-RING 15 (13.8)
C形止め輪 15(13.8)
1
36 SL-6051692-TN SCREW M5 L=16
座金付き六角穴ボルト M5 L=16
8
37 SL-6052092-TN SCREW M5 L=20
座金付き六角穴ボルト M5 L=20
4
38 402-06509 X_OIL_GUARD_F_J1
XオイルガードF_J1
1
39 402-06508 X_OIL_GUARD_U_J1
XオイルガードU_J1
1
40 SM-3030552-TN SCREW M3 L=5
丸ねじ M3 L=5
10
41 SM-1030552-TN PLATE SCREW M3 L=5
皿ねじ M3 L=5
2
42 SM-1040801-SC SCREW M4X0.7 L=8
皿小ねじ M4X0.7 L=8
4
43 401-46922 X_LMT_BR
X_LMTブラケット
1
44 401-65028 XY LMT SENSOR ASM
XY LMTセンサ組
2
45 SM-4030801-SC SCREW M3X0.5 L=8
なべ小ねじ M3X0.5 L=8
2
46 SL-6030692-TN SCREW M3 L=6
座金付き六角穴ボルト M3 L=6
2
47 401-46922 X_LMT_BR
X_LMTブラケット
1
48 401-29002 NEAR SENSOR CABLE ASM
ニアセンサケーブル組
1
49 SM-4030801-SC SCREW M3X0.5 L=8
なべ小ねじ M3X0.5 L=8
1
50 SL-6030692-TN SCREW M3 L=6
座金付き六角穴ボルト M3 L=6
2
51 401-61595 Y_SENSOR_DOG_350
Y_センサ_ドグ_350
1
52 SL-6040892-TN SCREW M4 L=8
座金付き六角穴ボルト M4 L=8
2
53 402-06435 X_AXIS_FRAME
X軸フレーム
1
54 401-86201 X_NUT_PLATE
Xナットプレート
2
55 WP-0320501-SC WASHER M3
平座金 M3
3

- 25 -
13.X-Y COMPONENTS (2)
X − Y 関係(2)
3
3
6
5
2
16
13
15
9
9
11
7
7
17
18
19
A
A
8
18
6
5
4
10
10
12
14
3
4
5
6
4
3
6
4
5
1
1
8
2
20
20
20