JM-100-Rev07PDFA - 第50页
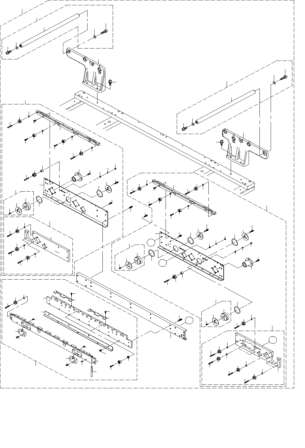
- 45 - 23. PWB CONVEYOR COMPONENTS (2) 基板搬送関係(2) 5 8 9 9 8 7 6 4 35 37 45 47 43 1 B 46 44 2 40 41 38 39 49 48 37 36 49 48 17 4 31 28 31 29 24 3 14 16 18 22 23 21 10 10 30 27 26 25 21 20 19 12 13 7 9 8 7 11 15 42 43 42 34…

- 44 -
NOTE( 注記 ) *INSTALLATION POSITION AND DIRECTION VARY IF THE PWB TRANSFER
REFERENCE IS DIFFERENT.
基板搬送基準が異なると取付位置、方向が変わります。
REF.NO NOTE PART NO D E S C R I P T I O N
品 名
Qty
1 402-06689 CONVEYOR_RAIL_F_ASM
搬送レールF組
1
2 402-06716 BASE BAR ASM
ベースバー組
(1)
3 400-01038 BASE BAR R(L)
ベースバーR(L)
(1)
4 400-01039 BASE BAR F(L)
ベースバーF(L)
(1)
5 400-70087 BASE BAR S(L)
ベースバーS(L)
(2)
6 400-00996 BASE BAR SS(L)
ベースバーSS(L)
(2)
7 SL-6084092-TN SCREW M8 L=40
座金付き六角穴ボルト M8 L=40
(8)
8 SL-6063592-TN SCREW
座金付き六角穴ボルト M6 L=35
(8)
9 HX-0029400-00 FIXED BASE
固定ベース
(13)
10 HX-0034400-00 FIXED BASE
束線パーツ
(2)
11 SM-4040801-SC SCREW M4X0.7 L=8
なべ小ねじ M4X0.7 L=8
(15)
12 400-00802 RAIL STAND CL
レールスタンド CL
(1)
13 SL-6052092-TN SCREW M5 L=20
座金付き六角穴ボルト M5 L=20
(2)
14 400-00805 RAIL STAND CR
レールスタンド CR
(1)
15 400-46032 RAIL STAND F(L)
レールスタンドF(L)
(2)
16 SL-6052092-TN SCREW M5 L=20
座金付き六角穴ボルト M5 L=20
(4)
17 SL-6041492-TN SCREW
座金付き六角穴ボルト
(4)
18 SL-6052092-TN SCREW M5 L=20
座金付き六角穴ボルト M5 L=20
(2)
19 401-37175 CONVEYOR_RAIL_FC_ASM
搬送レールFC組
(1)
20 401-38178 RAIL_GUIDE_F_L
レールガイドF_L
(1)
21 SM-8030302-TP SCREW M3X3
止めねじ M3X3
(2)
22 401-38179 CONVEYOR_RAIL_FC
搬送レールFC
(1)
23 SL-6041092-TN SCREW M4 L=10
座金付き六角穴ボルト M4 L=10
(4)
24 E2123-721-000 PWB GUIDE PLATE F
基板ガイドプレートF
(4)
25 SL-6030892-TN SCREW M3 L=8
座金付き六角穴ボルト M3 L=8
(12)
26 400-00812 RAIL GUIDE SHAFT
レールガイドシャフト
(2)
27 SM-8040602-TP SCREW M4X0.7 L=6
止めねじ
(2)
28 E2111-715-0A0 CONVEYOR PULLEY ASM.
搬送プーリ(組)
(4)
29 WP-0430800-SC WASHER M4
平座金小形丸 M4
(4)
30 SM-4040855-SC SCREW
なべ小ねじ M4 L=8
(4)
31 E4105-729-0A0 SHAFT SUPPORT B ASM.
シャフトサポート組
(2)
32 401-38303 RESIST_LIGHTEN_ROLLER_ASM
レイジストライテンローラ組
(2)
33 401-38182 ROLLER_SPACER
ローラスペーサ
(2)
34 SM-4041601-SC SCREW M4X0.7 L=16
なべ小ねじ M4 L=16
(2)
35 E2111-715-0A0 CONVEYOR PULLEY ASM.
搬送プ−リ(組)
(2)
36 SM-4040855-SC SCREW
なべ小ねじ M4 L=8
(2)
37 WP-0430800-SC WASHER M4
平座金小形丸 M4
(2)
38 401-37173 RAIL_PLATE_FL_ASM
レールプレートFL組
(1)
39 401-38183 CONVEYOR_RAIL
搬送レール
(1)
40 401-36811 RAIL_PLATE_FL
レールプレートFL
(1)
41 SL-6031492-TN SCREW M3 L=14
座金付き六角穴ボルト M3 L=14
(4)
42 E2012-721-000 ADJUST PLATE
アジャストプレート
(1)
43 SL-6030692-TN SCREW M3 L=6
座金付き六角穴ボルト M3 L=6
(2)
44 E2111-715-0A0 CONVEYOR PULLEY ASM.
搬送プーリ(組)
(2)
45 WP-0430800-SC WASHER M4
平座金小形丸 M4
(2)
46 SM-4040855-SC SCREW
なべ小ねじ M4 L=8
(2)
47 E2089-721-0A0 CONVEYOR PULLEY B ASM.
搬送プーリB組
(4)
48 E2055-721-000 PULLEY SPACER
プーリスペーサ
(4)
49 SM-4042501-SC SCREW M4X0.7 L=25
なべ小ねじ M4X0.7 L=25
(4)
50 WP-0430801-SC WASHER M4
平座金 M4
(4)
51 WS-0410002-KN SPRING WASHER M4
ばね座金 M4
(4)
52 NM-6040001-SC NUT M4X0.7 TYPE1
六角ナット M4X0.7 1種
(4)
53 401-38303 RESIST_LIGHTEN_ROLLER_ASM
レイジストライテンローラ組
(2)
54 SM-4041201-SC SCREW M4X0.7 L=12
なべ小ねじ M4X0.7 L=12
(2)
55 WP-0430800-SC WASHER M4
平座金小形丸 M4
(2)
56 SL-6031492-TN SCREW M3 L=14
座金付き六角穴ボルト M3 L=14
(4)
57 401-37174 RAIL_PLATE_FR_ASM
レールプレートFR組
(1)
58 E2055-721-000 PULLEY SPACER
プーリスペーサ
(6)
59 SM-4042501-SC SCREW M4X0.7 L=25
なべ小ねじ M4X0.7 L=25
(6)
60 WP-0430801-SC WASHER M4
平座金 M4
(6)
61 WS-0410002-KN SPRING WASHER M4
ばね座金 M4
(6)
62 NM-6040001-SC NUT M4X0.7 TYPE1
六角ナット M4X0.7 1種
(6)
63 401-38183 CONVEYOR_RAIL
搬送レール
(1)
64 E2012-721-000 ADJUST PLATE
アジャストプレート
(1)
65 SL-6030692-TN SCREW M3 L=6
座金付き六角穴ボルト M3 L=6
(2)
66 E2111-715-0A0 CONVEYOR PULLEY ASM.
搬送プーリ(組)
(2)
67 401-36812 RAIL_PLATE_FR
レールプレートFR
(1)
68 SL-6031492-TN SCREW M3 L=14
座金付き六角穴ボルト M3 L=14
(4)
69 WP-0430800-SC WASHER M4
平座金小形丸 M4
(2)
70 SM-4040855-SC SCREW
なべ小ねじ M4 L=8
(2)
71 E2089-721-0A0 CONVEYOR PULLEY B ASM.
搬送プーリB組
(6)
72 401-38303 RESIST_LIGHTEN_ROLLER_ASM
レイジストライテンローラ組
(2)
73 SM-4041201-SC SCREW M4X0.7 L=12
なべ小ねじ M4X0.7 L=12
(2)
74 WP-0430800-SC WASHER M4
平座金小形丸 M4
(2)
75 SL-6031492-TN SCREW M3 L=14
座金付き六角穴ボルト M3 L=14
(4)
76 400-00831 PULLEY BRAKET L ASM
プーリブラケットL組
(1)
77 NM-6050001-SC NUT M5X0.8 TYPE1
六角ナット M5X0.8 1種
(2)
78 SM-6052502-TN SCREW
六角穴ボルト
(2)
79 400-00976 PULLEY BRAKET
プーリブラケット
(1)
80 E2157-721-000 PULLEY B
プーリ B
(1)
81 E2016-715-000 IDLER PULLEY
アイドラプーリ
(1)
82 E2017-715-000 M LINER BUSH
M ライナブッシュ
(4)
83 E2018-715-000 PULLEY SLEEVE
プーリスリーブ
(2)
84 WP-0531001-SC WASHER M5
平座金みがき丸 M5
(6)
85 WS-0510002-KN SPRING WASHER M5
ばね座金 M5
(2)
86 400-00832 PULLEY BRAKET R ASM
プーリブラケット R 組
(1)
87 SM-6052502-TN SCREW
六角穴ボルト
(2)
88 400-00976 PULLEY BRAKET
プーリブラケット
(1)
89 E2016-715-000 IDLER PULLEY
アイドラプーリ
(1)
90 E2017-715-000 M LINER BUSH
M ライナブッシュ
(4)
91 E2018-715-000 PULLEY SLEEVE
プーリスリーブ
(2)
92 WP-0531001-SC WASHER M5
平座金みがき丸 M5
(6)
93 E2157-721-000 PULLEY B
プーリ B
(1)
94 WS-0510002-KN SPRING WASHER M5
ばね座金 M5
(2)
95 NM-6050001-SC NUT M5X0.8 TYPE1
六角ナット M5X0.8 1種
(2)
96 SL-6041492-TN SCREW
座金付き六角穴ボルト
(2)
97 SL-6041492-TN SCREW
座金付き六角穴ボルト
(2)
98 SL-6041092-TN SCREW M4 L=10
座金付き六角穴ボルト M4 L=10
(4)

- 45 -
23.PWB CONVEYOR COMPONENTS (2)
基板搬送関係(2)
5
8
9
9
8
7
6
4
35
37
45
47
43
1
B
46
44
2
40
41
38
39
49
48
37
36
49
48
17
4
31
28
31
29
24
3
14
16
18
22
23
21
10
10
30
27
26
25
21
20
19
12
13
7
9
8
7
11
15
42
43
42
34
32
33
34
32
33
30
50
52
51
53
85
84
90
91
89
92
91
93
71
55
57
73
74
57
73
74
89
92
87
96
90
91
91
93
86
88
84
83
85
83
79
69
70
54
54
63
62
95
54
68
67
66
65
54
77
76
78
77
76
78
76
78
77
78
60
75
65
64
61
62
63
80
77
82
94
56
69
70
66
67
68
61
58
59
60
81
76
72
A
B
A

- 46 -
NOTE( 注記 ) *INSTALLATION POSITION AND DIRECTION VARY IF THE PWB TRANSFER
REFERENCE IS DIFFERENT.
基板搬送基準が異なると取付位置、方向が変わります。
REF.NO NOTE PART NO D E S C R I P T I O N
品 名
Qty
1 401-37176 CONVEYOR_RAIL_R_ASM
搬送レールR組
1
2 SL-6041092-TN SCREW M4 L=10
座金付き六角穴ボルト M4 L=10
(10)
3 SL-6041292-TN SCREW M4 L=12
座金付き六角穴ボルト M4 L=12
(4)
4 401-37178 RAIL_PLATE_RL_ASM
レールプレートRL組
(1)
5 401-37179 SUPPORT PLATE RL ASM
サポートプレートRL組
(1)
6 401-36815 SUPPORT_PLATE_RL
サポートパネルRL
(1)
7 E2111-715-0A0 CONVEYOR PULLEY ASM.
搬送プーリ(組)
(3)
8 WP-0430800-SC WASHER M4
平座金小形丸 M4
(3)
9 SM-4040855-SC SCREW
なべ小ねじ M4 L=8
(3)
10 SM-4040855-SC SCREW
なべ小ねじ M4 L=8
(2)
11 E2089-721-0A0 CONVEYOR PULLEY B ASM.
搬送プーリB組
(1)
12 E2055-721-000 PULLEY SPACER
プーリスペーサ
(1)
13 SM-4042501-SC SCREW M4X0.7 L=25
なべ小ねじ M4X0.7 L=25
(1)
14 WP-0430801-SC WASHER M4
平座金 M4
(1)
15 WS-0410002-KN SPRING WASHER M4
ばね座金 M4
(1)
16 NM-6040001-SC NUT M4X0.7 TYPE1
六角ナット M4X0.7 1種
(1)
17 400-00839 DRIVE PULLEY R ASM
ドライブプーリR組
(1)
18 400-00840 DRIVE PULLEY R
ドライブプーリR
(1)
19 E2160-721-000 PULLEY FLANGE
プーリフランジ
(1)
20 SL-6030892-TN SCREW M3 L=8
座金付き六角穴ボルト M3 L=8
(3)
21 E3931-750-000 PULLEY WASHER
プーリスラストワッシャ
(2)
22 E2160-721-000 PULLEY FLANGE
プーリフランジ
(1)
23 SL-6030892-TN SCREW M3 L=8
座金付き六角穴ボルト M3 L=8
(3)
24 SB-8200001-00 BEARING
ころがり軸受
(2)
25 401-36813 RAIL_PLATE_RL
レールプレートRL
(1)
26 401-38183 CONVEYOR_RAIL
搬送レール
(1)
27 SL-6031492-TN SCREW M3 L=14
座金付き六角穴ボルト M3 L=14
(4)
28 SM-6051002-TN SCREW
六角穴ボルト
(8)
29 SL-6041092-TN SCREW M4 L=10
座金付き六角穴ボルト M4 L=10
(2)
30 E2111-715-0A0 CONVEYOR PULLEY ASM.
搬送プーリ(組)
(2)
31 WP-0430800-SC WASHER M4
平座金小形丸 M4
(2)
32 401-38303 RESIST_LIGHTEN_ROLLER_ASM
レイジストライテンローラ組
(2)
33 WP-0430800-SC WASHER M4
平座金小形丸 M4
(2)
34 SM-4041601-SC SCREW M4X0.7 L=16
なべ小ねじ M4 L=16
(2)
35 401-37177 CONVEYOR_RAIL_RC_ASM
搬送レールRC組
(1)
36 401-38179 CONVEYOR_RAIL_FC
搬送レールFC
(1)
37 SL-6041092-TN SCREW M4 L=10
座金付き六角穴ボルト M4 L=10
(4)
38 400-00812 RAIL GUIDE SHAFT
レールガイドシャフト
(2)
39 SM-8040602-TP SCREW M4X0.7 L=6
止めねじ
(2)
40 401-10109 SAFETY BAR
安全バー
(2)
41 SL-6040892-TN SCREW M4 L=8
座金付き六角穴ボルト M4 L=8
(4)
42 E2123-721-000 PWB GUIDE PLATE F
基板ガイドプレートF
(4)
43 SL-6030892-TN SCREW M3 L=8
座金付き六角穴ボルト M3 L=8
(12)
44 E2111-715-0A0 CONVEYOR PULLEY ASM.
搬送プーリ(組)
(4)
45 WP-0430800-SC WASHER M4
平座金小形丸 M4
(4)
46 SM-4040855-SC SCREW
なべ小ねじ M4 L=8
(4)
47 401-36825 RAIL_GUIDE_R
レールガイドR
(1)
48 E4105-729-0A0 SHAFT SUPPORT B ASM.
シャフトサポート組
(2)
49 SM-8030302-TP SCREW M3X3
止めねじ M3X3
(2)
50 401-38303 RESIST_LIGHTEN_ROLLER_ASM
レイジストライテンローラ組
(2)
51 401-38182 ROLLER_SPACER
ローラスペーサ
(2)
52 SM-4041601-SC SCREW M4X0.7 L=16
なべ小ねじ M4 L=16
(2)
53 401-37180 RAIL_PLATE_RR_ASM
レールプレートRR組
(1)
54 E3931-750-000 PULLEY WASHER
プーリスラストワッシャ
(4)
55 401-38183 CONVEYOR_RAIL
搬送レール
(1)
56 SB-8200001-00 BEARING
ころがり軸受
(2)
57 SM-4040855-SC SCREW
なべ小ねじ M4 L=8
(2)
58 E2089-721-0A0 CONVEYOR PULLEY B ASM.
搬送プーリB組
(1)
59 E2055-721-000 PULLEY SPACER
プーリスペーサ
(1)
60 SM-4042501-SC SCREW M4X0.7 L=25
なべ小ねじ M4X0.7 L=25
(2)
61 WP-0430801-SC WASHER M4
平座金 M4
(2)
62 WS-0410002-KN SPRING WASHER M4
ばね座金 M4
(2)
63 NM-6040001-SC NUT M4X0.7 TYPE1
六角ナット M4X0.7 1種
(2)
64 SM-6051002-TN SCREW
六角穴ボルト
(8)
65 400-00839 DRIVE PULLEY R ASM
ドライブプーリR組
(2)
66 400-00840 DRIVE PULLEY R
ドライブプーリR
(1)
67 E2160-721-000 PULLEY FLANGE
プーリフランジ
(1)
68 SL-6030892-TN SCREW M3 L=8
座金付き六角穴ボルト M3 L=8
(3)
69 SL-6030892-TN SCREW M3 L=8
座金付き六角穴ボルト M3 L=8
(6)
70 E2160-721-000 PULLEY FLANGE
プーリフランジ
(2)
71 SL-6031492-TN SCREW M3 L=14
座金付き六角穴ボルト M3 L=14
(4)
72 SL-6041092-TN SCREW M4 L=10
座金付き六角穴ボルト M4 L=10
(2)
73 E2111-715-0A0 CONVEYOR PULLEY ASM.
搬送プーリ(組)
(2)
74 WP-0430800-SC WASHER M4
平座金小形丸 M4
(2)
75 401-37181 SUPPORT PLATE RR ASM
サポートプレートRR組
(1)
76 E2111-715-0A0 CONVEYOR PULLEY ASM.
搬送プーリ(組)
(6)
77 WP-0430800-SC WASHER M4
平座金小形丸 M4
(6)
78 SM-4040855-SC SCREW
なべ小ねじ M4 L=8
(6)
79 401-36816 SUPPORT_PLATE_RR
サポートパネルRR
(1)
80 E2111-715-0A0 CONVEYOR PULLEY ASM.
搬送プーリ(組)
(1)
81 WP-0430800-SC WASHER M4
平座金小形丸 M4
(1)
82 401-36814 RAIL_PLATE_RR
レールプレートRR
(1)
83 401-38303 RESIST_LIGHTEN_ROLLER_ASM
レイジストライテンローラ組
(2)
84 SM-4041201-SC SCREW M4X0.7 L=12
なべ小ねじ M4X0.7 L=12
(2)
85 WP-0430800-SC WASHER M4
平座金小形丸 M4
(2)
86 SL-6052092-TN SCREW M5 L=20
座金付き六角穴ボルト M5 L=20
(2)
87 401-36817 RAIL_STAND_RL
レールスタンドRL
(1)
88 SL-6052092-TN SCREW M5 L=20
座金付き六角穴ボルト M5 L=20
(2)
89 401-37167 GUIDE_SHAFT_ASM_L
ガイドシャフト組L
(4)
90 SL-6052042-TN SCREW
座金付き六角穴ボルト
(1)
91 WP-0501046-SC WASHER 5 X 14 X 1
平座金 5X14X1
(2)
92 401-36819 GUIDE_SHAFT_L
ガイドシャフトL
(1)
93 SL-6051292-TN SCREW M5 L=12
座金付き六角穴ボルト M5 L=12
(1)
94 SL-6041292-TN SCREW M4 L=12
座金付き六角穴ボルト M4 L=12
(4)
95 401-46998 CONVEYOR_SUPPORT_PLATE
搬送サポートプレート
(1)
96 401-36818 RAIL_STAND_RR
レールスタンドRR
(1)