DECAN_F2_TRM(Ver6.2_CS17.02) - 第309页
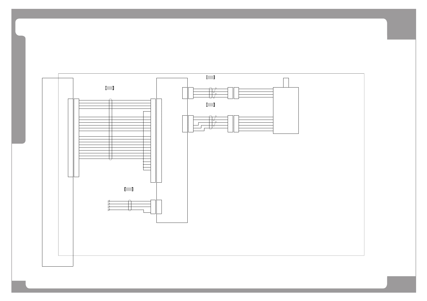
Page +$1:+$ 305 DECAN F2 Axis IO Board (11/16) NO. P ART NO. P ART NAME Q'TY Old No. Supply Supply L T Reference 1 AM03-012625A CABLE ASSY -B S34_CMD_AXIO 1 2 AM03-012617A CABLE ASSY -CV_BEL T3_MOT_PW_EXT 1 3 AM03-0…

Page
+$1:+$
304
DECAN
F2
Axis IO Board (11/16)
AXIO BD #1
BOARD
CB34
BELT
CN19
SM511_VM009
1POUT+
1PDIR+
1PDIR-
AXIO#1-CN19
AM03-012625A
501189-3010
1
2
3
4
6
7
9
8
5
1POUT+
1POUT-
1PDIR+
1PDIR-
2POUT+
2POUT-
2PDIR+
2PDIR-
CB34-CN4
1
7
9
30
1POUT- 3
1
2
3
4
6
7
9
8
5
10
5557-10R
10
DRIVER
1
7
9
30
3
A
/A
B
/B
CB34-CN2
1
2
3
4
SM511_MD109-1
AM03-012617A
CB3-EXT
5557-04R
1
2
3
4
A
/A
B
/B
CB34-CN3
1
2
3
4
SM511_MD209-1
AM03-012620A
5557-04R
1
2
3
4
DF1B-4EP-2.5RC
1
2
3
4
CB4-EXT
1
2
3
4
DF1B-4EP-2.5RC
1
2
3
4
SM421_MD109
AM03-003580B
CB3
5559-04P
1
2
3
4
5557-04R
1
2
3
4
DF1B-4ES-2.5RC
SM41_MD015
J90831430B
적색
청색
흑색
흰색
BELT3
MOTOR
2S56Q-01842SR2
CONVEYOR
1
2
3
4
SM421_MD209
AM03-003906B
CB4
5559-04P
1
2
3
4
5557-04R
1
2
3
4
DF1B-4ES-2.5RC
SM41_MD016
J90831431B
적색
청색
흑색
흰색
BELT4
MOTOR
2S56Q-01842SR2
CONVEYOR
SINGLE CONV
1
2 3 4
5 6 7

Page
+$1:+$
305
DECAN
F2
Axis IO Board (11/16)
NO. PART NO. PART NAME Q'TY Old No. Supply Supply LT Reference
1 AM03-012625A CABLE ASSY-BS34_CMD_AXIO 1
2 AM03-012617A CABLE ASSY-CV_BELT3_MOT_PW_EXT 1
3 AM03-003580B WORK_BELT1_STEP_MOTOR_ASSY 1
4 J90831430B_AS CONV_BELT3_STEP_MOTOR_ASSY 1
5 AM03-012620A CABLE ASSY-CV_BELT4_MOT_PW_EXT 1
6 AM03-003906B CABLE ASSY-CV_BELT4_MOT_PW 1
7 J90831431B_AS WORK_BELT2_STEP_MOTOR_ASSY 1

Page
+$1:+$
306
DECAN
F2
Axis IO Board (12/16)
AXIO BD #1
BOARD
WD
DRIVER
CN23
SM511_VM005-1
CW
AXIO#1-CN23
AM03-012623A
3
4
5
6
13
-
7
29
30
27
31
37
-
39
41
21
22
48
49
23
24
25
36
38
9
PULSE
*PULSE
SIGN
*SIGN
SG
-
+24V
/S-ON
+24V
GAIN
/ALMRST
ALM(ALM 1)
-
INP
-COM
A
/A
B
/B
C
/C
SG
SG
SG
SG
WD-DRV
1
7
9
-
27
17
23
22
-
24
29
2
4
10
14
16
-
8
-
SG
WD-MD
U
V
W
E
U
V
W
E
1
2
3
4
SM511_MD022-1
AM03-012614A
WD_PW
06JFAT-SAXGF
+5V
5G
N/C
N/C
WD_DRV_X6
1
2
3
4
SD 5
SD/ 6
4
5
2
3
6
1
2108342-1 (6P) 172160-1
WD
MOTOR
1
2
3
4
WD_EN
SM511_MD023-1
AM03-012615A
172159-1
3
19
21
8
6
-
-
-
-
-
501189-3010
30 -
-
50
SM-50J
1
7
9
-
27
17
23
22
-
24
29
2
4
10
14
16
-
3
19
21
8
6
-
-
-
-
-
30
/CW
CCW
/CCW
+COM
/SON
CLR
GAIN
/ALMRST
/ALM
INP
-COM
EA
/EA
EB
/EB
EZ
/EZ
GND
3
4
5
6
13
-
7
29
30
27
31
37
-
39
41
21
22
48
49
23
24
25
36
38
9
8
-
-
-
50
r
t
L1
L2
L3
r
t
L1
L2
L3
WD-PWR
r
t
L1
L2
L3
SM511_PW018
AM03-012622A
TB1-14A
TB1-16A
TB1-18A
TB1-22A
05JFAT-SAXGF
1
2
3
4
5
6
4
5
2
3
6
1
SINGLE CONV
1
3
4
2