CM402-L 20070802 - 第169页
Ref No. Remarks R 1 Q'ty 13-B 一括交換台車 Feeder Cart イラスト No. Part No. 品 名 品番 数量 R 2 パー ツ リ スト Kit No. キ ット 品番 Kit Name キ ット 名称 KXFX036PA00 Part Name 備 考 セクション No . PARTS LIST Section No. R 3 HOLDER 4 1 KXFB02ERA00 HOLD…

13-B
一括交換台車
Feeder Cart
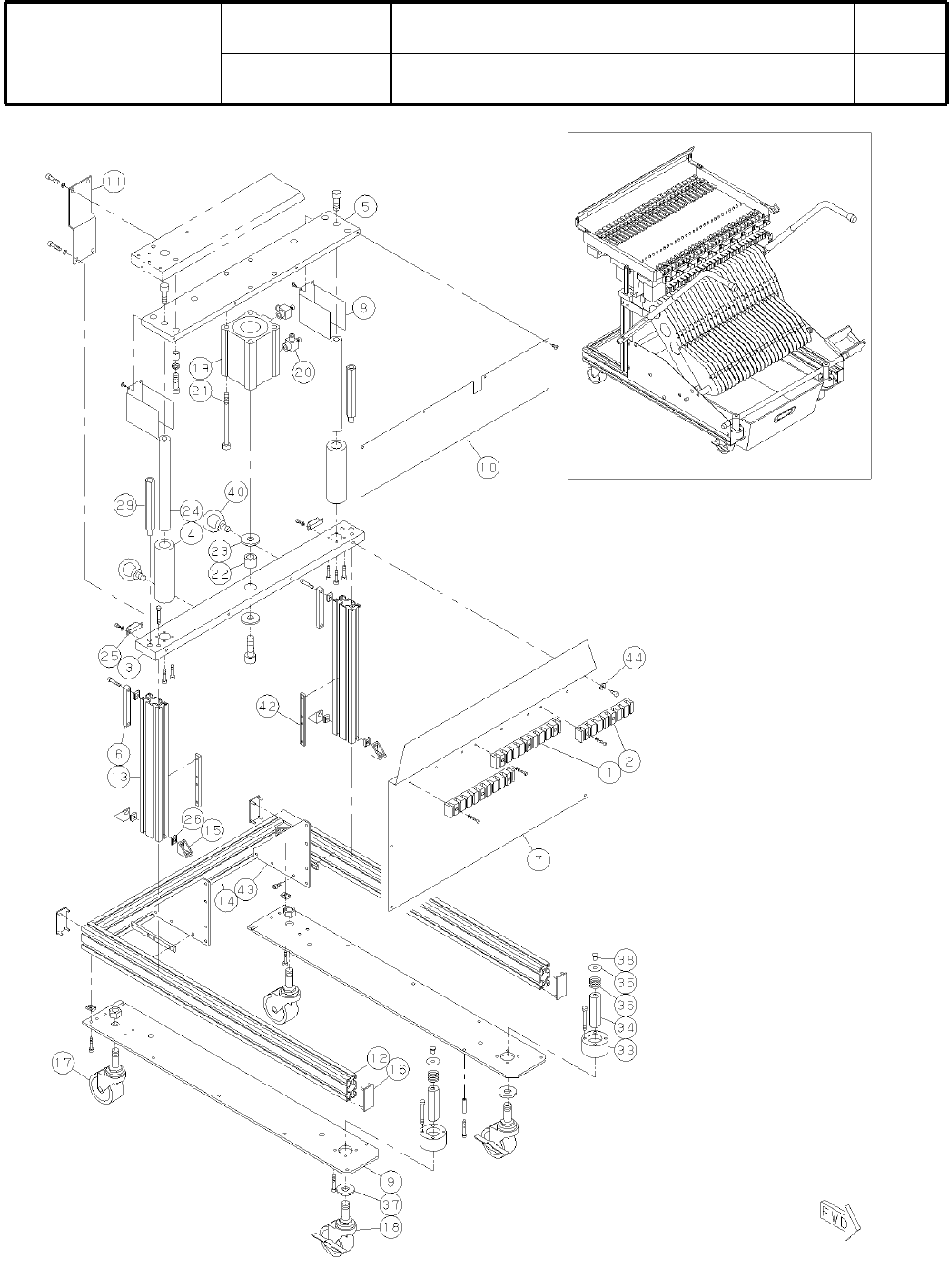
パーツレイアウト
Kit No.
キット
品番
Kit Name
キット
名称
KXFX036PA00
セクション
No
.
PARTS LAYOUT
Section No.
-
-
M145
( KKXFX036PA00-16-2 )

Ref
No.
Remarks
R
1
Q'ty
13-B
一括交換台車
Feeder Cart
イラスト
No.
Part No.
品 名品番 数量
R
2
パーツリスト
Kit No.
キット
品番
Kit Name
キット名称
KXFX036PA00
Part Name
備 考
セクション
No
.
PARTS LIST
Section No.
R
3
HOLDER
4
1 KXFB02ERA00
HOLDER
2
2 KXFB02ESA00
PLATE
1
3 KXFB02EWA01
BUSH
2
4 N210011274AA
PLATE
1
5 N210009545AA
BAR
2
6 N210011344AA
COVER
1
7 N210022427AA
COVER
2
8 N210022428AA
PLATE
2
9 N210022429AA
COVER
1
10 N210022430AA
BRACKET
2
11 N210019839AA
FRAME
2
12 KXF0CTXAA00 SFF-364 L=849
FRAME
2
13 KXF0DLSAA00 SFF-364 L=370 TL
FRAME
1
14 KXF0CTZAA00 SFF-364 L=590
BRACKET
6
15 KXF0ATEAA00 SFJ-018
CAP
4
16 KXF0ARXAA00 SFA-005
CASTER
2
17 N510004570AA 420SA-N75-B
CASTER
2
18 N510004571AA 413SA-N75-B
CYLINDER
1
19 N510005138AA ACQ80X75
SPEED-CONTROLLER
2
20 KXF0952AA00 AS3201F-03-06S
BOLT
4
21 N510017161AA
Hexagon socket head cap screw M10X130-10.9 A2J (Trivalent)
COLLAR
1
22 KXF0CU7AA00 NCLB16-25-23.0
WASHER
2
23 KXF0CU8AA00 WSSB50-16-5
POST
2
24 N510004786AA ETKRFT-25-250-1
MAGNET
2
25 KXF03HBAA00 SM-77S
NUT
48
26 KXF0ATGAA00 SFB-002
POST
2
29 N510008398AA LSBWRKT-19-133
GUIDE
2
33 KXFB02F0A01
SHAFT
2
34 KXFB02F1A00
WASHER
2
35 KXF0AJYAA00 WSSB30-8-2
SPRING
2
36 KXF0DLTAA00 (DA 0DLTA)
WASHER
4
37 KXF0DLUAA00 WSSB40-16-5
BOLT
2
38 KXF0DREAA00 CBSS8-12
BOLT
2
40 N510018798AA
Eyebolt M16 Steel Unichrome white (Trivalent)
NUT
4
42 KXF0DY18A00 SFJ-606
PLATE
2
43 N210022437AA
WASHER
12
44 N510020101AA Thick washer for M6
M146
-
-
( KKXFX036PA00-16-2 )

13-C
一括交換台車
Feeder Cart
パーツレイアウト
Kit No.
キット
品番
Kit Name
キット
名称
KXFX036PA00
セクション
No
.
PARTS LAYOUT
Section No.
-
-
M147
( KKXFX036PA00-16-3 )