5OM-1513-001_w - 第120页
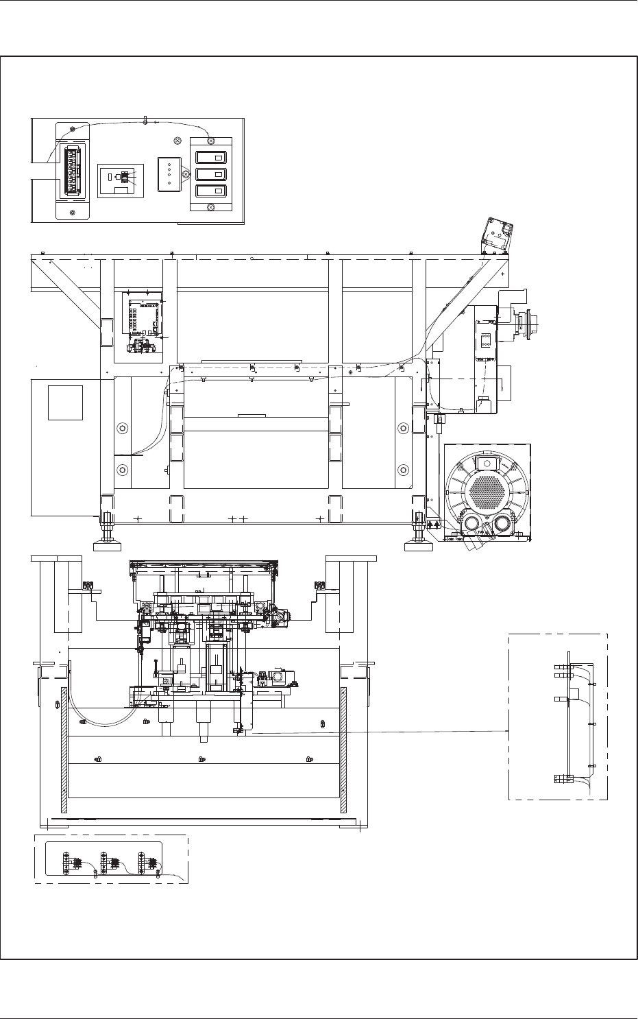
4-7 5OM-1513 主机导线连接图 7 0908-001-(109000203-4) S1 1 S06 H06 5 5 5 8 8 8 5 5 5 5 5 5 5 5 5 5 5 5 5 6 6 6 6 6 6 6 6 6 6 6 4 4 6 6 6 6 6 6 6 6 6 6 6 6 6 6 6 6 6 6 6 6 6 6 6 6 6 6 6 6 6 6 6 6 6 6 6 6 6 6 6 6 6 6 6 6 6 6 6 4 4…

4-6
5OM-1513
主机导线连接图 6
55
5 5
4 4
4 4
555
6
6
6
6
4
4
4
5 5 5 5 5
S12
5 5
5
5 5
5 555555
55 5
33
33
4
4
S13
4 4
4 4
4
5
6
1
2
3
55
55
M01
M01
X11
S12
Connector
S13
Connector
A'A
4
4
V01
F301
(5A)
F201
(5A)
F101
(5A)
M01
Z02
V01
M01
SECT A-A'
F101
Connector
F101
F201
F301
6 6
66
4
4
5
4
5
4
4
4
4
3
66
5 5
4
4
5 5
5
5
6 6
5 5
4
4
5 5
5 5
3 333
B172
B171
B4D
B173
B4C
S05/H05
U09
Y90
+ -
+ -
+ -
B193
3 3
3 3
3 3
B191 B192
0908-001-(109000203-1)

4-7
5OM-1513
主机导线连接图 7
0908-001-(109000203-4)
S11
S06
H06
5
5 5
8
8
8
5
5
5
5
5
5
5
55
5
5
5 5
6
66
66
6
6
6
6
6
6
4
4
6
6
6
6
6
6
6
6
6
6
6
6
6
6
6
6
6
6
6
6
6
6
6
6
6
6
6
6
6
6
6
6
6
6
6
6
6
6
6
6
6
6
6
6
6
6
6
4
4
4
4
4
4
4
4
4
4
4
4
4
4
4
4
4
4
4
4
4
4
4
4
4
4
4
4
4
4
66
6 6
66
6
666
8
8
5
5 5
5 5
4
8
5
5
66
5
5
5 5
6
5
5
44
M19
103H7126-6740
M33
M33
B293
B291
B294
4
4
4
4
B80

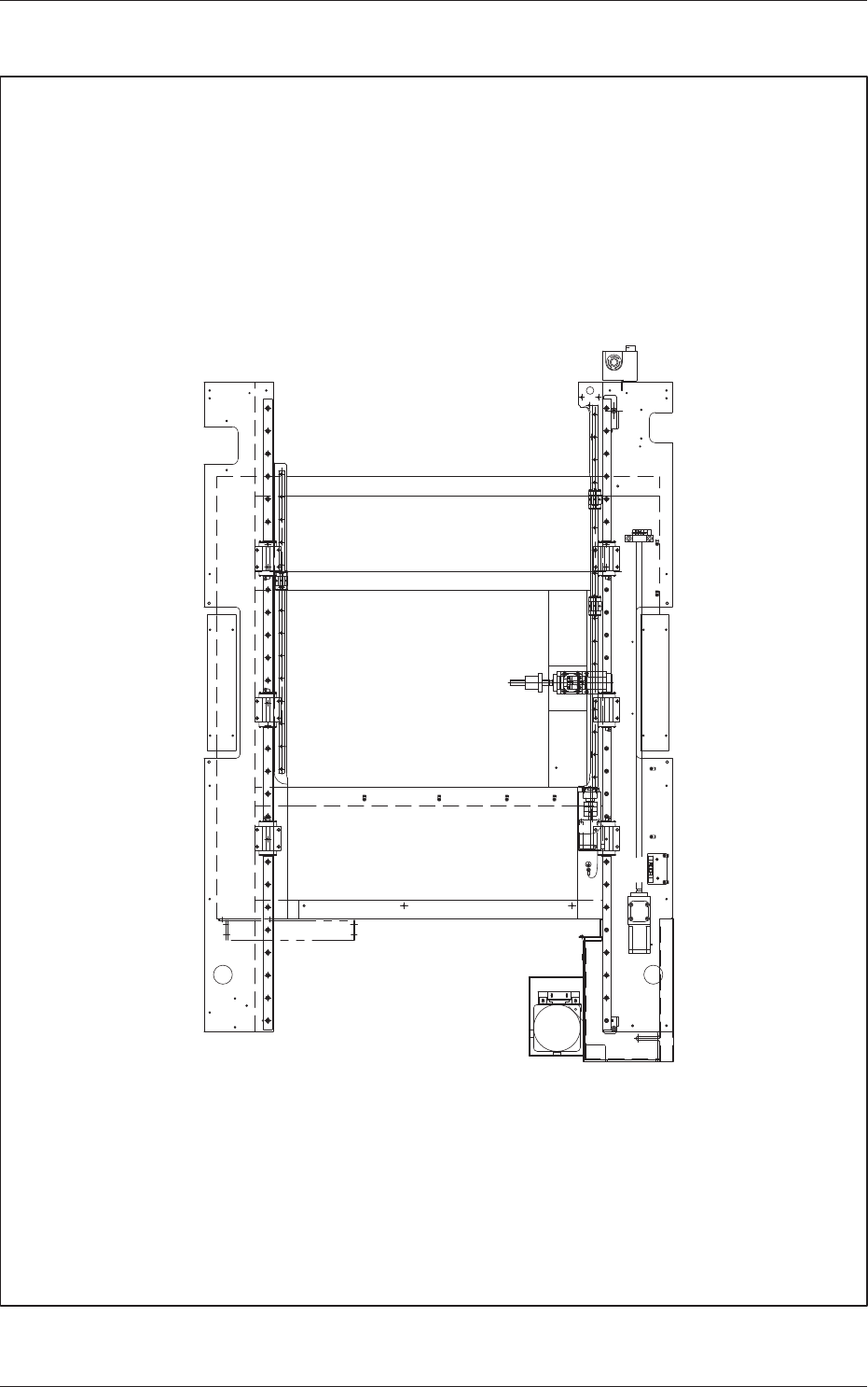
4-8
5OM-1513
主机导线连接图 8
4
4
4
4
4
4
4
4
4
4
4
4
4
4
4
4
4
103H7126-6740
44
55
8
4
4
2 OUT
S14
5
5
5
4
4
4
H00
M33
B334
B46B331
4
4
4 4
Y55
Y54
M06
M07
U07
A
View A
S15 B4A
N82- N80-
N81-
SET
OUT
PRESSURE
SET
OUT
PRESSURE
G
4
5
5
H26
H25
H24
H27
LAN2 USB1
LAN1
0908-001-(109000203-4)