5OM-1513-001_w - 第129页
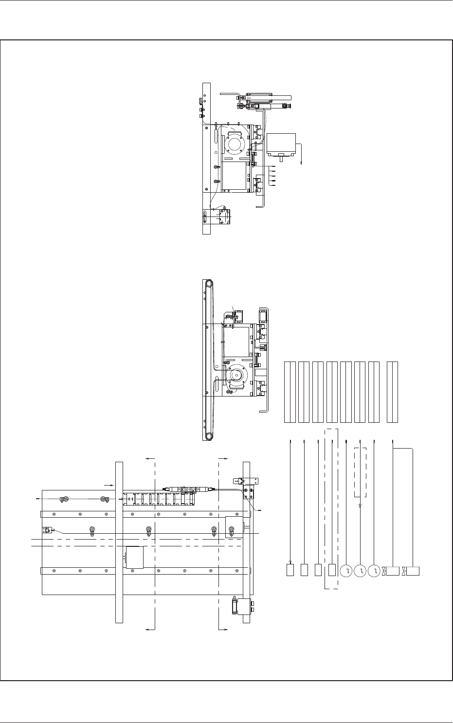
4-16 5OM-1513 5 5 B371 B41 B40 M43 M41 5 5 4 4 4 4 3 4 4 X430 T o X371 Y50 Y51 M43 ( Connector ) M43 ( Connector ) Note 1 A A SECT A-A B371 X371 B40 B40 B41 B41 M M41 M41 M M43 X430 M43 M M37 M37 PX142 PX153 Wiring Diagr…

4-15
5OM-1513
线路板识别部导线连接图 2
0908-001-(2090006121-2)
2
EB
EB
EA
P
EA P
6
6 6
B65
B67
B68
Y9C
Y9A
B6A
Y7C
B89
B8A
M35
B354
B353
B351
Y79
Y78
B69
B04
E7A
Connector
B65,B66
Connector
B67,B68,
B69,E7A
Connector
X2065,X2068,X107A
X106A,Y78,Y79,Y7C
B89,B8A,Y9A,Y9C,X351,M35
2
E3S-LS3N
B66
Note 4
A
DETAIL A
Note 2
PX-140PX-177
Note 3 Note 4
M35 Earth Cable
15
Note 3
Note 2
Note 1 Note 1

4-16
5OM-1513
55
B371
B41
B40
M43
M41
5 5
4 4 4 4
3
4 4
X430
To X371
Y50
Y51
M43(Connector)
M43(Connector)
Note 1
A
A
SECT A-A
B371 X371
B40 B40
B41 B41
M
M41
M41
M
M43
X430
M43
M
M37
M37
PX142
PX153
Wiring Diagram
Y50
Y51
Y50
B
B
B42 B42
M37
5 5
4 4 4 4
3
4 4
4 4
B41
B40
SECT B-B
X371
B40
B41
B42
M41
M37
Y50
M41
4
33
B42
Cable Bearer
Note 2
Note 2
C
L Conveyor Width Axis Origin
L Conveyor PCB Transfer Check
L Conveyor PCB Check
PCB Stopper Upper Limit
L Conveyor PCB Transfer 1 Motor
L Conveyor PCB Transfer 2 Motor
L Conveyor Width Motor
L Conveyor PCB Stopper Forward Side
L Conveyor PCB Stopper Backward Side
Harness PX-141:Connect to X371
Harness PX-073:Connect to B40
Harness PX-151:Connect to M41
Harness PX-152:Connect to X430
Harness PX-145:Connect to M37
Harness PX-080:Connect to Y50
Harness PX-073:Connect to B41
Harness PX-073:Connect to B42
L 传送带部导线连接图
0908-001-(309002019)

4-17
5OM-1513
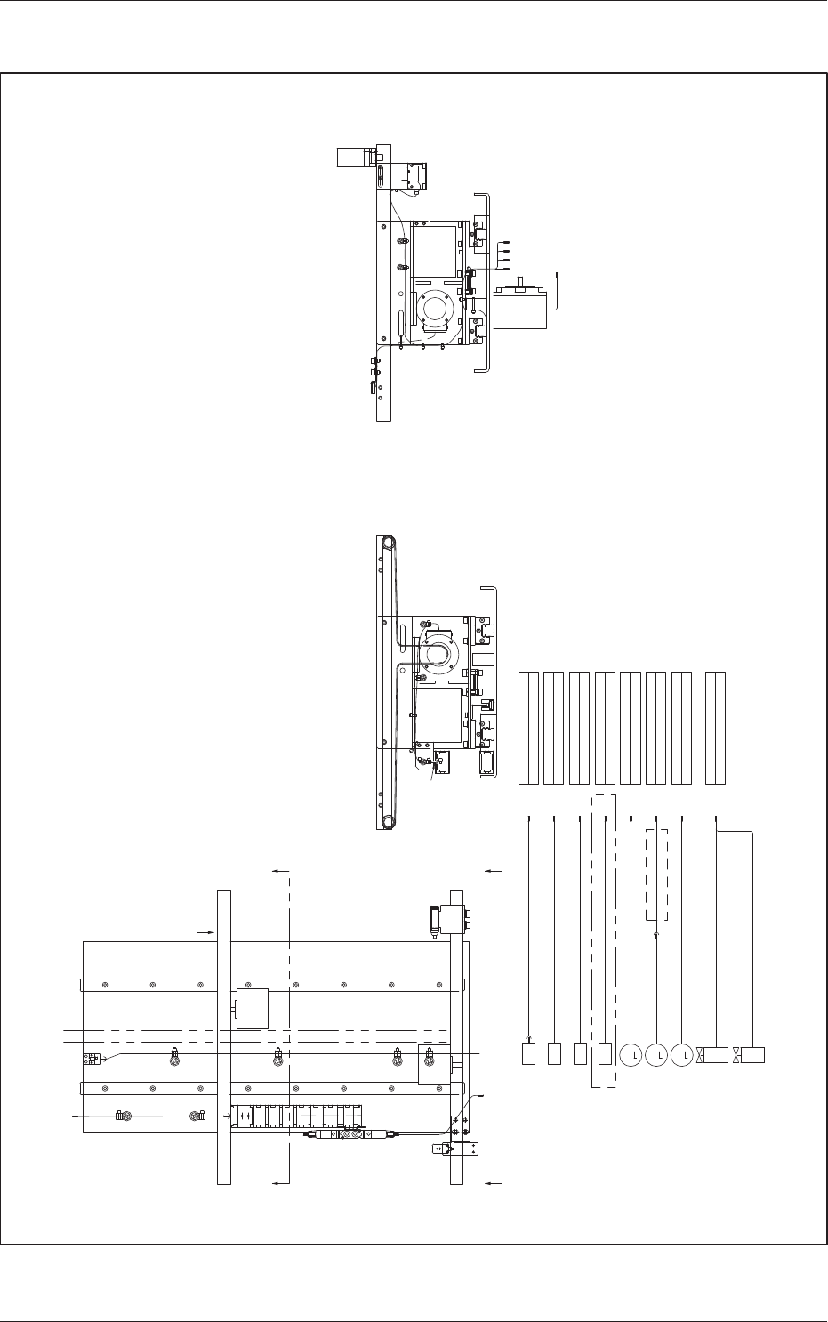
R 传送带部导线连接图
0908-001-(309000201A)
55
B371
B41
B40
M43
M41
5 5
4 4 4 4
3
4 4
X430
To X371
M37
Y51
Y50
M43(Connector)
M43(Connector)
Note 1
A
A
SECT A-A
5 5
4 4 4 4
3
4 4
4 4
B41
B40
B
B
SECT B-B
B371 X371
B40 B40
B41 B41
M
M41
M41
M
M43
X430
M43
M
M37
M37
PX144
PX149
Wiring Diagram
X371
B40
B41
M41
M43
M41
Y50
Y50
Y51
Y50
M37
B42
Note 2
Cable Bearer
C
B42
Harness PX-143:Connect to X371
Harness PX-074:Connect to B40
Harness PX-147:Connect to M41
Harness PX-148:Connect to X430
Harness PX-146:Connect to M37
Harness PX-081:Connect to Y50
Harness PX-074:Connect to B41
Harness PX-074:Connect to B42
R Conveyor Width Axis Origin
R Conveyor PCB Transfer Check
R Conveyor PCB Passage Check
PCB Stopper Upper Limit
R Conveyor PCB Transfer 1 Motor
R Conveyor PCB Transfer 2 Motor
R Conveyor Width Motor
R Conveyor PCB Stopper Forward Side
R Conveyor PCB Stopper Backward Side