5OM-1513-001_w - 第134页
4-21 5OM-1513 机械周围导线连接图 1 0908-001-(2090001012-1) X0703 PX-170 U07 CN11 X0711 CN10 X0710 CN12 X0712 Harness PX-052 : Connect to X1060 PX-163 PX-188 CN15 X0715 CN16 X0716 CN17 X0717 CN42 X0742 Harness PX-189 : Connect to …

4-20
5OM-1513
5
5
4 4
4 4
E
O
E
R
T
E
S
F
F
R
T
P
P
I
E
R
E
L
A
S
E
D
N
OO
N
D
E
S
A
L
E
R
E
I
P
P
T
R
F
F
S
E
T
R
E
O
E
4
4
4
3
2
1
6
5
4
4
5
6
1
2
3
55
L1 L2 L3
PE
A A'
SECT A-A'
SECT B-B'
B B'
Z02
Q200
Z01
S05
H05
V01
F301
(5A)
F201
(5A)
F101
(5A)
M01
Z02
Z02
Z01
Q200
S05/H05
V01
M01
F301
F201
F101
L3
L2L1
NC
-
+
NO
2
3
4
31
2
1
4
X11
1
b(-)
2
a(+)
3
4
NC
NO
005 T
erminal Surface
005
Blue
Blue
Blue
Black
※2.Handle Cover (069 Attachment)
※1.Terminal Cover Lock Key (009 Attachment)
※1.Terminal Cover Lock Key (009 Attachment)
Main Breaker (Q200)
Interlock Lever
Handle
OFF
ON
Position A
Position B
1
2
3
4
F301
Z01
L100
L200
L300
L300
L200
L100
L302A
L102A
L102
L202
L302
L202A
L102A
L202A
L302A
115mm
L1
L2
L3
PE
530mm
60mm 60mm
1
2
3
4
F201
1
2
3
4
F101
1 2 3
16AWG
Black
200mm
26AWG
Black
310mm
70mm
70mm
L302
L202
L102
Z02
6
5
4
3
2
1
1
2
3
4
5
6
2
1
85mm
115mm
525mm
505mm
F101
18AWG Black
300mm
18AWG Black
290mm
18AWG Black
290mm
Control Board Q202
PX174
5050
300
Q200
V01
10AWG Black
14AWG Green/Yellow
10AWG Black
14AWG Green/Yellow
L301
L201
L101
PX059
PX056
16AWG Green/Yellow
200mm
V01
26AWG Black
26AWG Black
主电源部导线连接图
0908-001-(10900100P)

4-21
5OM-1513
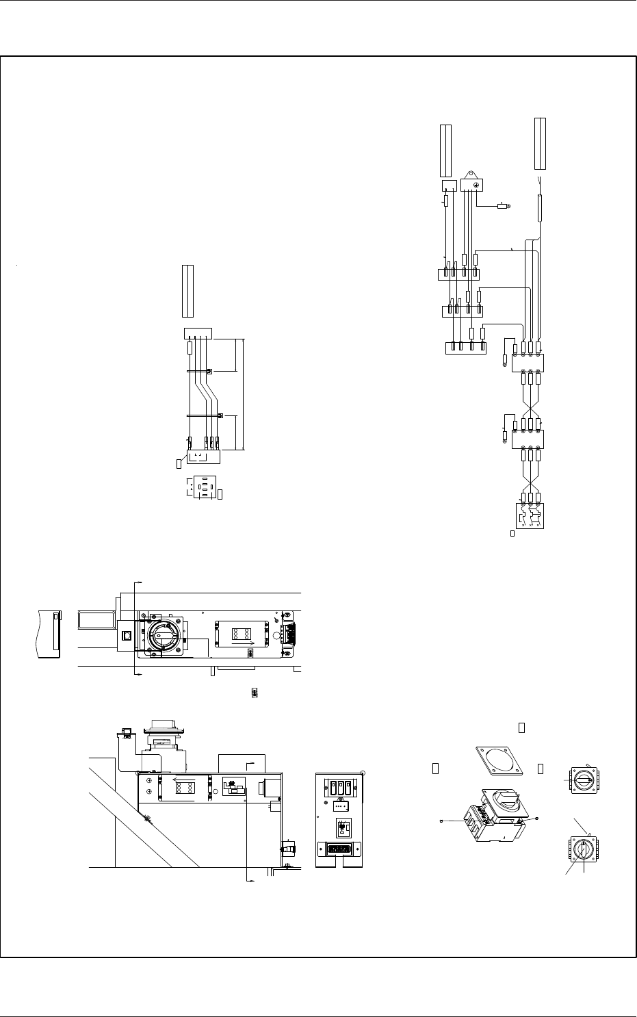
机械周围导线连接图 1
0908-001-(2090001012-1)
X0703
PX-170
U07
CN11
X0711
CN10
X0710
CN12
X0712
Harness PX-052:Connect to X1060
PX-163
PX-188
CN15
X0715
CN16
X0716
CN17
X0717
CN42
X0742
Harness PX-189:Connect to X1065
CN3
X0704
CN4
X0701
CN1B
X0702
CN2B
(UB32)
PX-001
CN13
X0713
CN14
X0714
CN30
X0730
CN31
X0731
CN32
X0732
CN33
X0733
CN25
X0725
X1060
X1064
Harness PX-052:Connect to X1064
X106F
Harness PX-122:Connect to X106F
X1070
Harness PX-052:Connect to X1070
X1065
X107C
Harness PX-189:Connect to X107C
CN18
X0718
PX-166
CN19
X0719
CN20
X0720
Harness PX-167:Connect to X1068
X1068
X1078
Harness PX-167:Connect to X1078
CN38
X0738
CN39
X0739
CN40
X0740
CN41
X0741
HarnessPX-170
X0903
PX-086
U09
CN11
X0911
CN10
X0910
CN12
X0912
PX-087
PX-191
CN19
X0919
CN20
X0920
CN40
X0940
CN41
X0941
Harness PX-192:Connect to X1089
CN3
X0904
CN4
X0901
CN1B
X0902
CN2B
(UB32)
PX-005
CN13
X0913
X0914
X1089
X109A
Harness PX-192:Connect to X109A
CN43
X0943
CN25
X0925
CN30
X0930
CN31
X0931
CN32
X0932
CN33
X0933
Harness PX-086
Harness PX-005
Solvent Shortage Alarm
B80
PX-088
CN14
B80
CN15
X0915
PX-090
CN16
X0916
Harness PX-089:Connect to X1081
X1081
Shutter Change-Over Cleaning Suction Side Connect to B85
B85
B86
Shutter Change-Over Chuck Suction Side Connect to B86
CN44
X0944
PX-179
CN45
X0945
Harness PX-179
CN42
X0942
CN34
X0934
CN35
X0935
CN36
X0936
CN37
X0937
CN38
X0938
CN39
X0939
Y90
Electroneumatic Regulator Connect to Y90
CN21
X0921
PX-027
CN22
Harness PX-027
X0922
CN23
X0923
PX-028
Harness PX-028
M06
M06
(CNDC24Z7Q)
PX-048
Harness PX-048
X06
PX-030
M07
M07
(CNDC24Z7Q)
PX-049
Harness PX-049
X07
CN24
X0924
PX-031
U50
(APL3000-BA-CM18-4P-5M)
L N FG
L104
L204
PX-175
Harness PX-175
Attached connector
Note 5
Note 6
COM1
U50-COM1
PX-016
Harness PX-019:Connect to X2530
X2530
CN1
U52-CN1
PX-001
CN2
Harness PX-002
PX-002
U52-CN2
U52
CN1
U53-CN1
PX-006
CN2
Harness PX-013
PX-013
U53-CN2
U53
Harness PX-006
CN3
Harness PX-162
PX-162
U53-CN3
DVI-I
U50-DVI
H00
(R10UH)
DVI-D
H00-DVI
USB1 USB
H00-USB
USB2
N80-USB1
PX-159
H00-PW
POWER
1090008007-02 Item No.057
Harness PX-159
U50-USB1
U50-USB2
N80
LAN1
N81-LAN1U50-LAN1
N81
LAN2
N82-LAN2U50-LAN2
N82
XU01
U51
X1B04
X3B03
Camera Cable1GG4W20049090
Connect to X3B03
Camera Cable1GG4W20047040
Connect to X1B04
X1G03
HarnessPX-176:Connect to X1G03
Note 6
Note 1
Note 2
Note 3
Note 4
Note 7
Cooling Fun M06
Cooling Fun M07
150

4-22
5OM-1513
1.PX-001 U50 (U52-CN1) Side ,PX-002 U50(U52-CN2) Side Ferrite Core Mounting Method
U52-CN1
15
U52-CN1
U52-CN2
15
U52-CN2
2.PX-001 U07 (X0701) Side PX-005 U09(X0901) Side Ferrite Core Mounting Method
X0701
X0701
X0901
80
X0901
60
U50
U52-CN1
U52-CN2
U53-CN1
U53-CN2
U53-CN3
XU01
U52-DVI
Control Board Upper Surface
U50-USB1
U50-USB2
U50-LAN1
U50-LAN2
U50-COM1
L N FG
Ferrite Core
Specification (Management Point)
Note
Ferrite Core
4.U07 Mounting Diagram
U07
4 4
5.U09 Mounting Diagram
U09
Y90
Attached Connector
38
50
机械周围导线连接图 2
0908-001-(2090001012-2)