5OM-1513-001_w - 第96页
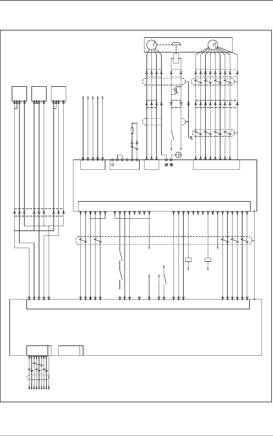
0908-001-(M900WBB--2009) 工作台 Z 轴电路图 M 3 P G T A17 r t A17-CN1 -R-PC +R-PC -F-PC +F-PC 29 28 27 26 CN1 R S 36 CONT2(RES) B- B+ A- A+ :5 :6 :8 :7 :5 :6 :8 :7 7 8 19 20 :4 :3 :2 :1 X1 175 X170 CONT4 34 X1 170 K17B 6 5 4 3 :…

0908-001-(M900WBB--2007)
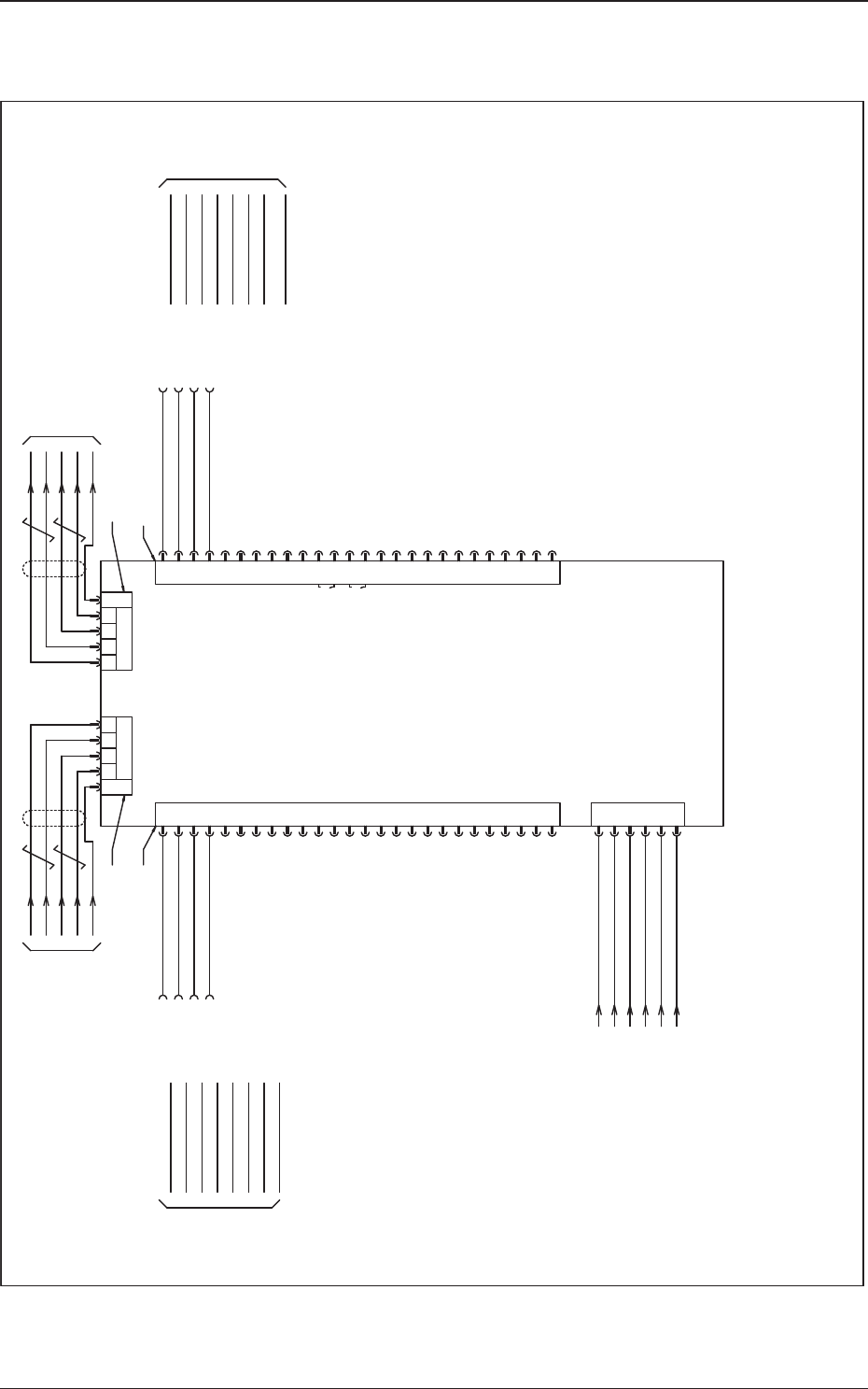
前后接口部 I/O
Complying
to SMEMA
specifications
CN4 CN5
:9
:7
:5
Connector Case
/RX
RX
/TX
TX
FG
(Connector Case)
3
7 5
9 5
3 97
TX
/TX
RX
/RX
X0305X0304
CN8
X0302A-F:2
X0302A-F:1
X0302A-F:4
X0302A-F:3
6
8
4
2
15
13
11
9
7
303
5
302
3
301
CN7
1
I/O P.C.B
X0302RX0302F
12
14
10
16
300
CN1
24A3
10A
24A3
10A
10E
24E
X0302A-R:1
X0302A-R:2
X0302A-R:3
X0302A-R:4
331
332
333
330
U03
6
5
4
3
2
1
17
18
19
20
21
22
23
24
25
26
17
18
19
20
21
22
23
24
25
26
6
8
4
2
15
13
11
9
7
5
3
1
12
14
10
16
Complying
to SMEMA
specifications
X0301
:3
:5
:2
Connector Case
:4 :3
STLT_IF
Input and Output Machine I/Fs
Furnace Signal
PCB Transfer
PCB Transfer GND
PCB Request +
PCB Request -
Reserved Input S1
Reserved InputS1 GND
Reserved Output S1 +
Reserved Output S1 -
PCB Transfer +
PCB Transfer -
PCB Request
PCB Request GND
GND for Main Machine
(Main - Output)
Unused
Unused
U52
U52-CN2
BOX Computer
U05
X0501(CN1B)
PCB Transfer Section / PCB Chuck Section
FG
(Connector Case)
3-16
5OM-1513

0908-001-(M900WBB--2009)
工作台 Z 轴电路图
M
3
P G
T
A17
r
t
A17-CN1
-R-PC
+R-PC
-F-PC
+F-PC
29
28
27
26
CN1
R
S
36
CONT2(RES)
B-
B+
A-
A+
:5
:6
:8
:7
:5
:6
:8
:7
7
8
19
20
:4
:3
:2
:1
X1175
X170
CONT4
34
X1170
K17B
6
5
4
3
:4
:3
:2
:1
CONT1(SVON)
CONT-COM
37
50
M17
A17-CNA
X175
M17
W
V
U
CN2
C-
C+
+5V
0V
18
6
19
17
24
23
13
5
B171
+
+
L
L
OUT
-
OUT
-
B173
IN1
LA+
ALM
LA-
SVON
INP
NG
NP
U17
U17-CN1
CN1
29
+COM2
33
-LS
32
ORG
-COM2
30
31
+LS
X171
X2170
:9
L309
L209
L109
L308
L108
CONT3
35
OUT-PWR
49
OUT1(RDY)
39
OUT2(ALM)
40
OUT3(INP)
41
OUT8(ALM)
46
OUT-COM
24
OUT-COM
25
AO-
4
CNA
CNC
Red
White
Black
Green/
Yellow
Yellow
Yellow
:9
Blue
Brown
Green
Purple
White
Yellow
Red
Black
Shielding
-
RB1
P
DL2
DL1
CNB
RB2
47
SG
2
GND
48
SG
4
3
PG
PP
M17B
U
N2
N1
U17-N1
A23-N2
(PCB Up/Down Axis)
B172
+
L
OUT
-
14
RES
12
-COM
16
OUT2
15
OUT1
AO
3
26
25
LB+
LB-
BO-
6
BO
5
28
27
LZ+
LZ-
ZO-
8
ZO
7
A17-CNC
11
+COM
+V
COM A1
GND
GND
+V
COM B1
+V
GND
FG
1 +V
2 GND
7 +V
3 Signal Wire A
4 +V
8
Signal Wire B
5
GND
6
Connector
Case
GND
1 +V
2 GND
7 +V
3 Signal Wire A
4 +V
8
Signal Wire B
5
GND
6
GND
24A1
10A
:B3
:A3
:B2
:A2
:B1
:A1
:A5
:B4
:1
:2
117024B3
10B
:1
:1
:2
:3
:4
:1
:2
:3
:1
:2
13 9
:A4
24A3
A17-CN2
X4170
20
STOP
K310
1173 2173
54 53
10A
10A
K3170
18
K203A
53 54
10A
24A3
OUT4(S-ON)
42
K3171
26
24A3
1172
1174
1175
CONT5
33
CONT6
32
OUT5
43
OUT6
44
OUT7
45
K203B
53 54
2172
R17B
50Ω 30W
Black
X17B
:1
:2
RB1
RB2
Black
Power Supply for
Control Circuit
AC200V
Power Supply for
Main Circuit
AC200V
Table Z-Axis
Servomotor
Table Z-Axis
Origin
Table Z-Axis
(-) Limit
Table Z-Axis
(+) Limit
Connector
Case
3-17
5OM-1513

0908-001-(M900WBB--2010)
工作台 X 轴 / 工作台
θ
轴电路图
P GP G
A19
N1
A19-N1
U53-CN1
(AE-LINK Line No. 1
Center Board)
M21
A19-CN5
CN5
M
M21
X215
A19-CN7
B
/B
A
/A
CN7
2
3
8
7
6
5
4
3
2
1
:B1
:A1
:B4
:A4
:B3
:A3
:B2
:A2
:A6
1
4
Z-
Z+
B-
B+
A-
A+
EGND
+5V
:3
:2
:4
:1
+V
COM A1
COM B1
GND
N2
A19-N2
A29-N1
(Stencil Y-Axis /
Stencil Recognition Y-Axis)
+V
COM A1
COM B1
GND
A19-CN6
CN6
NC
BRK+
BRK-
3
2
1
B211
+
L
OUT
-
+
L
OUT
-
B212
A19-CN8
LS+ 4
DOWN
3
ORG
2
SEN+
CN8
1
X211
LS- 5
COM 6
+
L
OUT
-
B213
M19
A19-CN1
CN1
M19
X195
A19-CN3
B
/B
A
/A
CN3
2
3
8
7
6
5
4
3
2
1
:B1
:A1
:B4
:A4
:B3
:A3
:B2
:A2
:A6
1
4
Z-
Z+
B-
B+
A-
A+
EGND
+5V
:3
:2
:4
:1
A19-CN2
CN2
NC
BRK+
BRK-
3
2
1
B191
+
L
OUT
-
+
L
OUT
-
B192
A19-CN4
LS+4
DOWN
3
ORG
2
SEN+
CN4
1
X191
:A1
:B2
:B1
:B4
:A4
:A3
LS-5
COM6
+
L
OUT
-
B193
:B3
:A2
A19-CN10
CN10
MGND
3
2
1
4
A19-CN9
CN9
ALM+
ALM-
STP+
STP-
3
2
1
4
5
6
MGND
C+GND
M+48V
M+48V
C+24V
10A
24A7
Blue
Red
Yellow
Orange
M
10F5
10F5
24B1
10B
48F5
48F5
:A1
:B2
:B1
:B4
:A4
:A3
:B3
:A2
X210
X1215
:10
:4
:3
:2
:1
:8
:7
:6
:5
:3
:2
:4
:1
+V
3
2
1
4
Signal Wire A
GND
Signal Wire B
+V
3
2
1
4
Signal Wire A
Signal Wire B
GND
+V
+V
GND
GND
Table Q-Axis Motor
Table Q-Axis
Origin
Table θ-Axis
(+) Limit
Table θ-Axis
(-) Limit
Table X-Axis Motor
Table X-Axis
Origin
Table X-Axis
(+) Limit
Table X-Axis
(-) Limit
Blue
Red
Yellow
Orange
3-18
5OM-1513