JM-50_安装要领书 - 第32页
安装要领书 16 -1 16. FCS 的实施 <操作方法> 1) 实施 FCS 前 要重新 取得以下的偏移量 。 关于 取得方法 请 参照 MS 参数调整要领书。 ・ 3D 传感器 照相机偏移量 2) 关于 FCS 的实 施方法 在 FC S 使用 说明书 中已有记载,故请参照 说明书实施。 3) 如机器被移 设时, 请务必要实 行 激光 FCS 及图像 FC S 。 此时 ,必須取得上 述 第 1 ) 项中“ 3D 传感器 照相机偏…

安装要领书
15-1
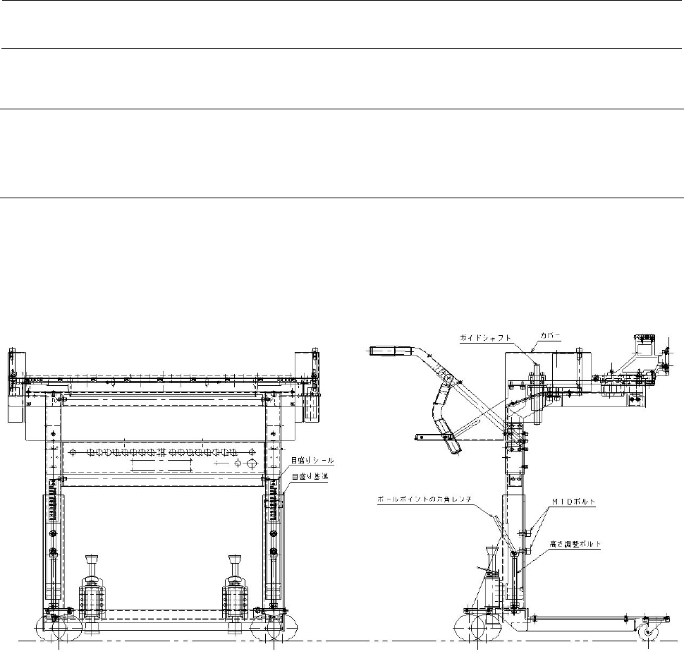
15. 统一更换台车(选择)
调整供料器台车的高度时,应在本体水平调整之后再进行调整。
15.1 调节高度
旋转高度调节螺栓,可以在 880mm~970mm 范围内无级调节统一更换台的传送高度。
以传送高度为基准,进行统一更换台的高度调节。
按以下操作顺序对成批更换台车的高度进行调整。
1) 拧松 4 个 M10 螺栓(不要拧下螺丝)。
2) 转动高度调整螺栓,对准好供料器台车高度的刻度。
要根据传送高度将供料器台车高度的刻度对准台车的刻度基准。(相对于传送高度要调整到±5mm
以内)
3) 固定 M10 螺栓。(拧紧扭矩 85Nm)
<注意>
请勿在供料器台车的高度与机器不匹配的状态下将台架上升。

安装要领书
16-1
16. FCS 的实施
<操作方法>
1) 实施 FCS 前要重新取得以下的偏移量。
关于取得方法请参照 MS 参数调整要领书。
・3D 传感器照相机偏移量
2) 关于 FCS 的实施方法在 FCS 使用说明书中已有记载,故请参照说明书实施。
3) 如机器被移设时,请务必要实行激光 FCS 及图像 FCS。
此时,必須取得上述第 1)项中“3D 传感器照相机偏移量”的偏移量。
4) 请把 FCS 的实施结果读入 FCS 贴片结果判断表格,确认结果。
当激光 FCS 的 FCS 判断是“-NG-”或“调整”时,请更新偏移量,再次实施激光 FCS,确认机器的
贴片精度。
当图像 FCS 的 FCS 判断是“-NG-”或“调整”时,请更新偏移量,再次实施图像 FCS,确认机器的
贴片精度。
在上述确认中如果 FCS 的判断是“-NG-”,请重新取得贴装头偏移量、3D 传感器偏移量,然后再
次实施激光、图像 FCS。关于取得方法,请参照 MS 参数调整要领书及 FCS 使用说明书。

修订履历
改版 日期 修订页 修订内容 备注
1.0 2021.06 初版