NPM-D多功能生产系统 - 第45页
NPM-D 2012.0416 - 39 - 对应元件 标 准 特 殊 SOP , SOJ , PLCC ( 单位 : mm) 标准对应的元件种类, 尺寸范围以外, 根据元件以及杆形状, 如下所示的尺寸范围也有能够对应的情况。 在使用前, 经过实际的元件传送确认供给状态, 或请与本公 司联络。 ( 单位 : mm) 对应杆 ( 单位 : mm) 搭载杆的数量 通过杆前端缺口的供给方法 通过芯片槽区块的供给方法 可搭载杆的数量按照表 1 …

NPM-D 2012.0416
- 38 -
■
32 mm
粘着编带料架
※
1, 2
料架种类
类型
安装间距
最大元件
高度
卷盘直径
最多安装
数量
进给间距
(1
间距
=
4 mm)
32 mm
编带料架
粘着式
63 mm 2.8 mm 大
10 3 (12 mm)
※
1
粘着编带料架不存在有接头检测传感器。
※
2
使用粘着编带料架时需要「料架用空气供给单元」。
■ 智能杆式料架
杆式料架是能够通过振动进行元件供给的料架。
智能杆式料架,在以往机器的优点上,加上能对应通用性广
※
1
,交货期短
※
2
,无需维护
※
3
,提高了大型元件的对
应力。
(
对应只限
8
吸嘴贴装头,
2
吸嘴贴装头
)
※
1
可以对应
SOP
,
SOJ
,
PLCC
以外连接器等异形元件。
※
2
通过杆前端缺口的供给方式
(
如下参照
)
时,元件马上可以供给。
※
3
除了清扫灰尘等以外,无需进行特别的维护。
・ 安装间距
: 84 mm
・ 最多安装料架数量
: 8
站
※与
CM
系列
(CM602, CM402, CM401, CM400, DT401, CM232,
CM212, CM101)
是通用。
元件供给方法
通过杆前端缺口的供给方法
通过芯片槽区块的供给方法
(
选购件
)
把杆置水平状态,内部元件在水平安定的情况下,切割杆前
端从杆内部直接吸着元件。
把杆置水平状态,内部元件不在水平安定的情况下,设置使
元件保持水平安定的区块
(
称为
:
芯片槽区块
)
,从芯片槽区
块上吸着元件。
按照使用元件的尺寸芯片槽区块另外个别制作。
另外,一般的公开芯片槽区块的设计方法,能够让客户制作。
从杆内部直接
PICK UP
切割前端部
芯片槽区块
从芯片槽区块上
PICK UP

NPM-D 2012.0416
- 39 -
对应元件
标 准
特 殊
SOP
,
SOJ
,
PLCC
(
单位
: mm)
标准对应的元件种类,尺寸范围以外,根据元件以及杆形状,
如下所示的尺寸范围也有能够对应的情况。
在使用前,经过实际的元件传送确认供给状态,或请与本公
司联络。
(
单位
: mm)
对应杆
(
单位
: mm)
搭载杆的数量
通过杆前端缺口的供给方法
通过芯片槽区块的供给方法
可搭载杆的数量按照表
1
。
可搭载杆的数量按照表
1
,表
2
中,以少为正。
表
1
表
2
元件宽度
W (mm)
能搭载杆数量
W
≦
16
3
16
<
W
≦
25
2
25
<
W
≦
31
1
※ 复数搭载杆时,原则上只限于同一品种。
也能对应不同品种,但,杆的形状和尺寸会受限制。详细请与本公司联络。
杆宽度
Ws (mm)
能搭载杆数量
Ws
≦
19
3
19
<
Ws
≦
28
2
28
<
Ws
≦
34
1
WLH
Min
892.5
Max
31 31 6
WLH
Min
---
Max
31 60 25
Ws Ls Hs
Min
- 300 -
Max
34 600 28
SOP
L W
H
L
W
W
L
W
L
SOJ PLCC
连接器
H
H
H
Ws
Hs
Ls
Ws
Hs
Ws
Hs
Ws
Hs

NPM-D 2012.0416
- 40 -
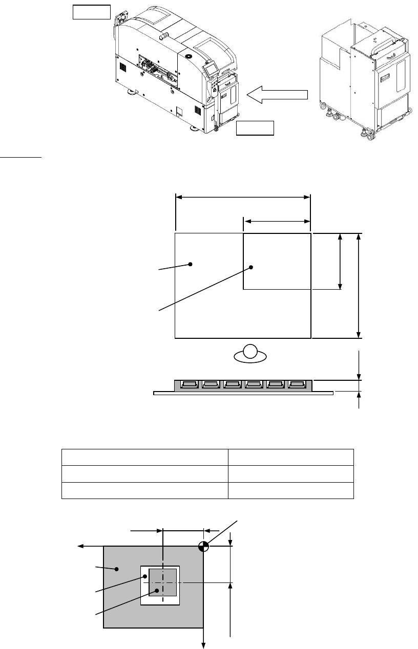
■ 托盘供料器
如果
NPM-D
主体是托盘供料器规格,可以连接在后侧。
在前侧不可连接。
对象贴装头
: 8
吸嘴贴装头、
2
吸嘴贴装头
※
如果前侧是
2D
检查头的情况,请另外商洽。
托盘条件
・ 托盘尺寸: 托盘的外形尺寸必须符合系列条件。
・ 保持元件: 托盘必须在下述条件内保持元件位置的构成。
元件条件
位置误差
吸着面
10 mm × 10 mm
未满
±1.0 mm
以下
吸着面
10 mm × 10 mm
以上
±1.5 mm
以下
※ 但是,本条件仅在元件上面具有平坦的吸着面时适用。
最大
托
盘尺
寸
最小
托
盘尺
寸
最大
335 mm
最小
100 mm
最小
85 mm
最大
230 mm
最小
2 mm
最大
33 mm
Xw
+位置误差
Yw
+位置误差
托盘安装基准点
(
托
盘
原点
)
元件中心的坐标
(
X, Y
)
=
(
Xw, Yw
)
托盘
凹处
元件
X
Y
前侧
后侧