NPM-D多功能生产系统 - 第79页
NPM-D 2012.0416 - 73 - 6. 其他标准规格 6.1 程序功能 数据编制都是在数据编制系统 NPM-DGS 进行。在 NPM-DGS 作成的生产数据,通过 LNB (FA 电脑 ) 下载于设备。 但是,部分数据修正也可在机器主体 上进行。 在设备主体修正的数据以及校正内容 被保存,可以再利用。 ※ NPM-DGS 用的硬件,请客户准备。 (NPM-DGS 是其他产品 。 ) 有关 NPM-DGS 的详细情况,请参照别…

NPM-D 2012.0416
- 72 -
■ 基本规格
项 目 内 容
通信手段 以太网通信
对应工作头 16 吸嘴贴装头、12 吸嘴贴装头、8 吸嘴贴装头、2 吸嘴贴装头、检查头
锡膏
计测锡膏位置,X 方向(补正量 dx)、Y 方向(补正量 dy)、角度方向(补正量 d
θ)的
补正量被前馈。
焊盘
计测焊盘位置,X 方向(补正量 dx)、Y 方向(补正量 dy)、角度方向(补正量 d
θ)的
补正量被前馈。
补正方向
芯片元件
芯片包元件
补正对象 2D 检查头(A) 分辨率 18 μm 2D 检查头(B) 分辨率 9 μm
锡膏
芯片元件:
0.1 mm × 0.15 mm 以上 (0603 以上)
封装元件:
φ0.15 mm 以上
芯片元件:
0.08 mm × 0.12 mm 以上 (0402 以上)
封装元件:
φ0.12 mm 以上
元件
方形芯片 (0603 以上)、SOP、QFP(0.4 mm
间距以上)、BGA、CSP、铝电解电容器、可
调电阻、微调、线圈、连接器、网络电阻、三
极管、二极管、电感器、钽电容器、圆柱形芯
片等。
方形芯片 (0402 以上)、SOP、QFP(0.3 mm
间距以上)、BGA、CSP、铝电解电容器、可
调电阻、微调电容器、线圈、连接器、网络电
阻、三极管、二极管、电感器、钽电容器、圆
柱形芯片等。
补正元件点数 Max. 10 000 点/设备 (锡膏计测点数: Max. 30 000 点/设备)
补正量 dθ
补正量 dy
补正量 dx
补正坐标
理论坐标
X 坐标理论值
补正量 dx
补正量 dy
补正量 dθ
X 坐标理论值

NPM-D 2012.0416
- 73 -
6.
其他标准规格
6.1
程序功能
数据编制都是在数据编制系统
NPM-DGS
进行。在
NPM-DGS
作成的生产数据,通过
LNB
(FA
电脑
)
下载于设备。
但是,部分数据修正也可在机器主体上进行。
在设备主体修正的数据以及校正内容被保存,可以再利用。
※
NPM-DGS
用的硬件,请客户准备。
(NPM-DGS
是其他产品。
)
有关
NPM-DGS
的详细情况,请参照别册的「
NPM-DGS
规格说明书」。
6.2
信号塔
信号灯的颜色和亮灯标准
信号灯
颜色
分 类
亮灯标准
红色
紧急停止错误
・ 马达等的轴异常
・ 空气压力下降
・ 基板支撑部异常
・ 贴装头故障
・ 编带故障
等
黄色
中途停止错误
・ 吸着错误
・ 贴装错误
・ 基板传送错误
・ 无工件
・ 吸嘴更换错误
等
绿色
运转中
自动运转等动力为
ON
时
(
但是,红色和黄色闪烁时熄灯
)
蓝色或者
红色
连接的设备中,成为瓶颈的设备
(
循环时间最长的设备
)
蓝色灯亮。
另外,按紧急停止开关,红色灯亮。
※亮灯规格,可以变更设定。
数据编制系统 NPM-DGS
设备设定 PCB 数据
元件数据
最佳化
生产数据
标准
:
横置
距离地面
1 514 mm
红
黄
绿
(
蓝色或者红色
)
红
黄
绿
距离地面
1 629 mm
也可以纵置。
高度从地面起是
1 629 mm
。
(
蓝色或者红色
)
网板 Gerber 数据
(锡膏检查时)

NPM-D 2012.0416
- 74 -
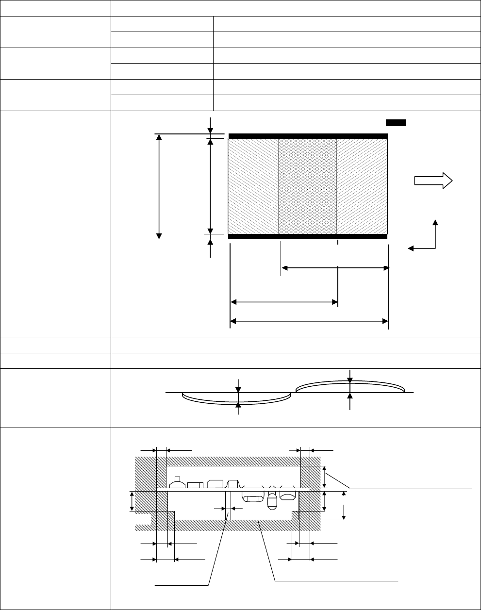
7.
印刷基板设计基准
7.1
印刷基板规格概要
项 目
规 格
双轨模式
Min. 50 mm × 50 mm
~
Max. 510 mm × 300 mm
能够使用的基板尺寸
单轨模式
Min. 50 mm × 50 mm
~
Max. 510 mm × 590 mm
双轨模式
Min. 50 mm × 43 mm
~
Max. 510 mm × 293 mm
贴装
/
检查可能范围
单轨模式
Min. 50 mm × 43 mm
~
Max. 510 mm × 583 mm
双轨模式
Min. 50 mm × 41 mm
~
Max. 510 mm × 291 mm
点胶可能范围
单轨模式
Min. 50 mm × 41 mm
~
Max. 510 mm × 581 mm
基板厚度
0.3 mm
~
8.0 mm
基板的重量
最大
1.5
㎏以下
※
2
基板弯曲容许
贴装前基板状态
※
1
上面死角小于
3.5 mm
的情况时,请另行联络。
※
2
基板重量
(
包括载体重量
)
超过
1.5
㎏的情况时,请另行联络。
※
3
使用支撑销自动更换功能的情况时,支撑销形状、销的配置条件等有异。
详细请参阅「
9.
选购件
:
支撑销的自动更换」。
※ 有关陶瓷基板的对应请另行联络。
28 mm
22 mm
4 mm
4 mm
7 mm
7 mm
22 mm
3.5 mm
※
1
3.5 mm
※
1
φ
3
最大
0.5 mm
基板断面
最大
0.5 mm
禁止有元件的范围
16
吸嘴贴装头
:
最大
6.5 mm
12
吸嘴贴装头
:
最大
6.5 mm
8
吸嘴贴装头
:
最大
12 mm
2
吸嘴贴装头
:
最大
28 mm
点胶头
:
最大
28 mm
支撑销
※
3
(
设置在与反面元件距离隔开
2 mm
以上的位置。
)
分割实装时的贴装范围
350 mm
基板流向
Y
X
固定侧
双轨模式
43 mm
~
293 mm
单轨模式
43 mm
~
583 mm
3.5 mm
3.5 mm
双轨模式
50 mm
~
300 mm
单轨模式
50 mm
~
590 mm
50 mm
~
510 mm
禁止有元件
(
或者
锡膏等
)
的范围
3.5 mm
※
1
※
1
分割实装时的贴装范围
350 mm