yv100xg_e - 第27页
PA G E 25 YV100Xg (KGB) Con fi dential & Proprietary KGB-000-CN05 Air circuit (YV100Xg-S) LIGHT 4(ORANGE) LIGHT LIGHT 4(BLACK) YMDAS 10X20-ZE135A2 LIGHT 300V -03 KM23 8(ORANGE) 8(ORANGE) KM-1 1 040M12AJ 1-7 A040 -4E1-…

PAGE
24
YV100Xg (KGB)
Confi dential & Proprietary
KGB-000-CN05
Air circuit (YV100Xg-F)
LIGHTLIGHTLIGHT
4 (BLACK)
YMDAS 10X20-ZE135A2
LIGHT
300V-03
KM23
8(ORANGE)
8(ORANGE)
KM-11
040M12AJ 1-7 A040
-4E1-PLL 8-12 BP
F300-03
-BG-A
R300-03
SL12-03
GS1-50
-DL-41W
SLY10-03
TL4-02
TSH4-M5
UEDW10-8
PBDAS 6X40
SC4-M5A
SC4-M5A
SC4-M5A
SC4-M5A
PBDAS 6X40-ZC130A
PBSA 10X5
PBDA 10X30
YMDA 16X35
BDAS16X20-38-ZC130A2
SL4-M5
SL4-M5
MANUHOLD
KM0-M1141-000
MANUHOLD
KM0-M1141-000
TSS4-01 TSH8-01
PLUG
K40-M8598-000
BF4
BF4
TL8-01TT8-01
stn.50stn.1 stn.2 stn.3
KM-06KM-06
50123
TSS4-01
TSH8-01 PLUG
K40-M8598-000
BF4
BF4
TL8-01TT8-01
stn.150
stn.101
stn.102 stn.103
KM-06KM-06
150101 102 103
8(ORANGE)
8(ORANGE)
SC4-M5A
UY8
8(ORANGE)
SL8-01
SLH6-M5
UYD8-6
KM-05
6(ORANGE)
USD8-6
6(ORANGE)
8(ORANGE)
UC4
USD10-8
SLH8-01
KM-05
SLH6-01
. . .
8(ORANGE)
6(ORANGE)
UY4
UYD10-8
HI-CAPPLER
PLUG 30PM
AIR SOURCE
12
(ORANGE)
(ORANGE)
10(ORANGE)
4
8(ORANGE)
SL4-M5
TSH4-M5M
BDAS10X5-ZC130A2
SC4-M5A
SL4-M5
UB10
UB10
4
(ORANGE)
10 2 (ORANGE)
8 2 (ORANGE)
USD10-8
( )
8(ORANGE)
YMDA 16X35
UEF
UEF
UY4
PBDA 16X5-M
UEF4BU
KM-05
SLH6-01
SLH8-01
US10
US8
UED8-4
UP8
UP4
UP4
LIGHTLIGHT
VALVE ASSY 20-R(L)
KGA-M3410-200(400)
VALVE ASSY 16-R
KGA-M3410-300
VALVE ASSY 20-R(L)
KGA-M3410-200(400)
SL12-03
VALVE ASSY 50-R
KGA-M3410-500
VALVE ASSY 50-L
KGA-M3410-100
A010E1-37W
A010E1-44W
No. PART NO. PART NAME
Q'TY
REMARKS
1
2
4
5
6
1
7
8
9
10
11
12
13
17
15
16
2
21
22
23
24
25
26
27
28
29
30
1
2
1
1
1
1
2
2
2
1
2
1
1
14
3
1
18
1
19
20
2
1
2
1
1
8-40DMODULE ADAPTER KV8-M8503-000
VALVE CLUTCH KV8-M71VA-000
30PM KG7-M8512-000 JOINT
KG7-M8513-000
KG7-M8501-000
KV8-M8502-000
KH5-M8501-000
KG7-M8504-001
KG7-M8596-002
KM0-M8582-000
KM0-M1141-000
K40-M8598-000
KGA-M3410-*00
JOINT
AIR FILTER
MIST FILTER
EXHAUST VALVE
REGULATOR
PRESURE GAUGE
VALVE
MANUFOLD
PLUG 1 (R 1/8)
VALVE ASSY *
3/8" M-F ELBOW
F300-03-BG-A
MF400-03-A
300V-03
R300-03
GS1-50-DL-41W
KG2-M8582-400 VALVE(SPARE)
KM1-M9605-020
KV7-M9283-000
KV7-M9229-000
KV7-M9237-000
KV7-M9179-A00
CYLINDER,CLAMP
CYL.,YMDA16X35
CYLINDER
CYLINDER PBSA10X5
CYLINDER:ASSY
BDAS 10X5
YMDA 16X35
PBDA 10X30
PBSA 10X5
PBDAS 6X40
KV7-M9165-000
KV8-M7162-000
KGB-M7163-000
CYLINDER PBDAS6X40
SOLENOID VALVE
MICRO EJECTOR
PBDAS 6X40
KM1-M9611-020 CYLINDER,U/D BDAS 16X20
KV7-M9269-000 CYLINDER PBDA 10X5-M
CYLINDER ASSY
VALVE KV8-M7535-010
YMDAS 10X20 KV8-M7522-010
1
1
4
SC4-M5A
SC4-M5A
KM-03
BF4BU-M3
US4
UEF4BU-M3
29
28
13
4
20
12
13
11
27
27
10
26
25
1
2
3
5
6
8
9
12
11
14
16
22
21
20
18
17
15
23
14
M-F ELBOW3/8"MF400-03-A
8-40D
VALVE (for spare)
KGA-M37P1-000
4
4
(BLACK)
(ORANGE)
4(BLACK)
4(BLACK)
4 (ORANGE) 4 (ORANGE)

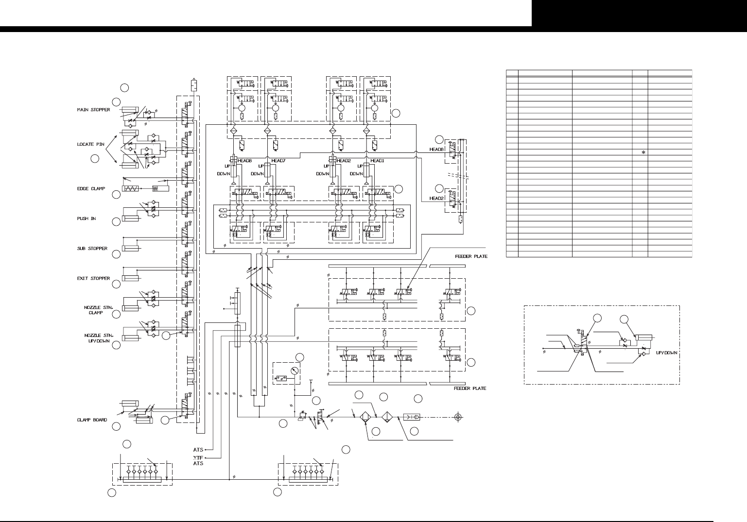
PAGE
25
YV100Xg (KGB)
Confi dential & Proprietary
KGB-000-CN05
Air circuit (YV100Xg-S)
LIGHT
4(ORANGE)
LIGHTLIGHT
4(BLACK)
YMDAS 10X20-ZE135A2
LIGHT
300V-03
KM23
8(ORANGE)
8(ORANGE)
KM-11
040M12AJ 1-7 A040
-4E1-PLL 8-12 BP
F300-03
-BG-A
R300-03
SL12-03
GS1-50
-DL-41W
SLY10-03
TL4-02
TSH4-M5
UEDW10-8
PBDAS 6X40
SC4-M5A
SC4-M5A
SC4-M5A
SC4-M5A
PBDAS 6X40-ZC130A
PBSA 10X5
PBDA 10X30 or
YMDA 16X35
BDAS16X20-38-ZC130A2
SL4-M5
SL4-M5
MANUHOLD
KM0-M1141-000
MANUHOLD
KM0-M1141-000
TSS4-01 TSH8-01
PLUG
K40-M8598-000
BF4
BF4
TL8-01TT8-01
stn.50stn.1 stn.2 stn.3
KM-06KM-06
50123
TSS4-01
TSH8-01 PLUG
K40-M8598-000
BF4
BF4
TL8-01TT8-01
stn.150
stn.101
stn.102 stn.103
KM-06KM-06
150101 102 103
8(ORANGE)
8(ORANGE)
4(ORANGE)
4
(BLACK)
SC4-M5A
UY8
8(ORANGE)
SL8-01
USD8-6
USD8-6
6(ORANGE)
8(ORANGE)
UC4
USD10-8
SLH8-01
KM-05
SLH6-01
. . .
8(ORANGE)
6(ORANGE)
UY4
UYD10-8
HI-CAPPLER
PLUG 30PM
AIR SOURCE
12
(ORANGE)
4
(ORANGE)
10(ORANGE)
4(BLACK)
8(ORANGE)
SL4-M5
TSH4-M5M
BDAS10X5-ZC130A2
SC4-M5A
SL4-M5
UB10
UB10
4(ORANGE)
10 2 (ORANGE)
8 2 (ORANGE)
USD10-8
( )
8(ORANGE)
YMDA 16X35
UEF
UEF
UY4
PBDA 16X5-M
UEF4BU
KM-05
SLH6-01
SLH8-01
US10
US8
UED8-4
UP8
UP4
UP4
LIGHTLIGHT
VALVE ASSY 20-R(L)
KGA-M3410-200(400)
VALVE ASSY 16-R
KGA-M3410-300
VALVE ASSY 20-R(L)
KGA-M3410-200(400)
SL12-03
VALVE ASSY 50-R
KGA-M3410-500
VALVE ASSY 50-L
KGA-M3410-100
A010E1-44W
A010E1-37W
No. PART NO. PART NAME
Q'TY
REMARKS
1
2
4
5
6
1
7
8
9
10
11
12
13
17
15
16
2
21
22
23
24
25
26
27
28
29
30
1
2
1
1
1
1
2
2
2
1
2
1
1
14
3
1
18
1
19
20
2
1
2
1
1
8-40DMODULE ADAPTER KV8-M8503-000
30PM KG7-M8512-000 JOINT
KG7-M8513-000
KG7-M8501-000
KV8-M8502-000
KH5-M8501-000
KG7-M8504-001
KG7-M8596-002
KM0-M8582-000
KM0-M1141-000
K40-M8598-000
KGB-M3410-*00
JOINT
AIR FILTER
MIST FILTER
EXHAUST VALVE
REGULATOR
PRESURE GAUGE
VALVE
MANUFOLD
PLUG 1 (R 1/8)
VALVE ASSY *
3/8" M-F ELBOW
F300-03-BG-A
MF400-03-A
300V-03
R300-03
GS1-50-DL-41W
KG2-M8582-400 VALVE(SPARE)
KM1-M9605-020
KV7-M9283-000
KV7-M9229-000
KV7-M9237-000
KV7-M9179-A00
CYLINDER,CLAMP
CYL.,YMDA16X35
CYLINDER
CYLINDER PBSA10X5
CYLINDER:ASSY
BDAS 10X5
YMDA 16X35
PBDA 10X30
PBSA 10X5
PBDAS 6X40
KV7-M9165-000
KV8-M7162-000
KGB-M7163-000
CYLINDER PBDAS6X40
SOLENOID VALVE
MICRO EJECTOR
PBDAS 6X40
KM1-M9611-020 CYLINDER,U/D BDAS 16X20
KV7-M9269-000 CYLINDER PBDA 10X5-M
CYLINDER ASSY
VALVE KV8-M7535-010
YMDAS 10X20 KV8-M7522-010
1
1
SC4-M5A
SC4-M5A
KM-03
BF4BU-M3
US4
UEF4BU-M3
29
28
13
4
20
12
13
11
10
26
25
1
2
3
5
6
8
9
12
11
14
16
22
21
20
18
17
15
23
14
M-F ELBOW3/8"MF400-03-A
8-40D
VALVE (for spare)
KGA-M37P1-000
4(BLACK)

PAGE
26
Wiring parts list
Condential & Proprietary
KGB-1108
No. Part No. Part Name Q'ty Remarks No. Part No. Part Name Q'ty Remarks
1 KM5-M661E-006 HNS,QF-TM11 1 J003 39 KK1-M664J-010 HNS,PE 1000 3 J077-J080,J089
2 KM5-M661E-006 HNS,QF-TM11 1 J003 40 90K30-245170 HNS,EARTH 1 J081
3 KM6-M661G-003 HNS,TM11-TC11 1 J004 41 KK1-M664J-010 HNS,PE 1000 1 J089,KGT:J125
4 KGA-M662E-021 HNS,TC11-QF XT21 1 J011 42 KM0-M536A-010 HNS,PE 70 2 J090,J091
5 KGA-M662F-020 HNS,UPS POWER IN 1 J012 43 90K30-444100 HNS,EARTH 1 J94/J95
6 KGA-M662G-040 HNS,UPS POWER OUT 1 J013 44 KGA-M664A-003 HNS,I/01 CMN 1 J101
7 KM6-M661J-001 HNS,TM11-QF31 1 J014 45 KV8-M664F-000 HNS 4-3(CMN,I/O AB) 1 J102
8 KM6-M661K-001 HNS,QF31-NF11 1 J015 46 KGA-M664E-001 HNS,I/O2 CMN 1 J103
9 KV8-M661J-001 HNS,TM11-QF32 1 J016 47 KV8-M664J-000 HNS 4-6(I/O CMN Y-FL 1 J108
10 KGA-M662M-001 HNS,U10 JUMPER 1 J017 48 KG2-M669R-113 HNS,BUZZER 1 J109,(KGE)J103
11 KM6-M661L-002 HNS,NF11-KM11 1 J018 49 KW3-M668H-001 HNS,FDD 1 J110
12 KV8-M661N-002 HNS,QF32-KM10A 1 J019 50 KGA-M664M-030 HNS,UPS 1 J111
13 KGA-M662A-012 HNS,C/R POWER 1 J021 51 KU8-M66F5-202 HNS,VGA 2M 1 J112
14 KGA-M667L-000 HNS,CONNE.-FAN 1 J022 52
15 KGA-M662U-002 HNS,CNF9/13 EMG 1 J024 53 KU8-M66F5-302 HNS,VGA 3M 1 J113
16 KGT-M663H-010 HNS,LCD POWER 1 J028 54 KV8-M664G-000 HNS 4-4 1 J114
17 55 KU8-M66F5-502 HNS,VGA 5M 1 J115
18 KGA-M662R-040 HNS,SENSOR PWR 1 J030 56 KV8-M664K-003 HNS,Z-FLEX CMN 1 J116
19 KGA-M662W-003 HNS,CNF41 POWER 1 J040 57 KW3-M668X-000 HNS, KB EXTEND(2m) 1 J117
20 KV8-M661U-005 HNS,CNF16 1 J041 58 KGK-M6640-000 HNS,KEY/MOUSE ASSY 1 J118
21 KV8-M661V-001 HNS,PWR,HEAD I/O 1 J043 59 KGA-M665F-011 HNS,PI1B 1 J123
22 KV8-M661W-001 HNS,PWR,HEAD I/O 1 J044 60 KV8-M665G-001 HNS,PI2B 1 J124
23 KV1-M66E8-002 HNS,Z-FLEX +24V 1 J045/J046 61 KV8-M665J-001 HNS,Y-FLEX(X,Z1,R1) 1 J125
24 KGA-M662X-002 HNS,QF22-GS21 1 J047 62
25 KV7-M662Y-010 HNS,CONN CNF21 1 J048 63 KV8-M665L-001 HNS,X-FLEX PI 1 J128
26 KGA-M662K-021 HNS,CRT POWER 1 J049 64 KV8-M665K-000 HNS 5-7(X-BEAM,PI X) 1 J129
27 KGA-M662K-021 HNS,CRT POWER 2 J049,J050 65 KV8-M665M-000 HNS 5-9(PI W) 1 J131
28 KV8-M663A-003 HNS,POWER MTR 1 J051 66 KGA-M665G-000 HNS,BASE PUP 1 J132
29 KV1-M663N-002 HNS,CNF6.7.37-C 1 J052 67 KGA-M665A-000 HNS,BASE Y1P 1 J133
30 KV7-M663M-001 HNS,CNF4-CONV 1 J058 68 KGA-M665E-000 HNS,BASE Y2P 1 J134
31 KG2-M663R-003 HNS,CONTROL,H/L 2 J061,J062 69 KGB-M665U-021 HNS,BASE(XP,ZP,RP) 1 J135
32 KV8-M663T-003 HNS,SPEED CONTROL 1 J063 70 KV1-M665T-001 HNS,Z-FLEX RP 1 J136/J137
33 KGA-M663F-021 HNS,LAMP +24V 1 J066 71 KV8-M666F-003 HNS,MO X,Y1,Y2,PU 1 J143
34 KGA-M663G-011 HNS,JC LAMP 24V 1 J067 72 KV8-M666G-003 HNS,MO Z1,R1,W 1 J144
35 KV8-M536E-100 HNS 302 1 J071 73 KV8-M666H-003 HNS,Y-FLEX XM 1 J145
36 KV8-M66L1-001 HNS,FG-C/R 1 J072 74 KV8-M666J-001 HNS,Y-FLEX RM ZM 1 J146
37 90K30-444160 HNS,EARTH 1 J073 75 KV8-M666L-002 HNS,X-FLEX RM ZM 1 J149
38 90K30-045050 HNS,EARTH 1 J074 76 KV1-M666K-001 HNS,Z-FLEX RM 1 J152/J153