88222850-01-10 - NeoHorizon 01iX Tech Spec - 第11页
11 DEK Neo Horiz on 01 iX Machine Pro ductivity Options Transport Specificati on Substrate Su pport Vacuum toolin g capability Vacuum toolin g sensor Vacuum cups Grid - Lok® tooli ng Substrate Tr ansport Single piece co …

10
DEK NeoHorizon 01iX
Machine Productivity Options
Process
Specification
Print Method
Paste Dispenser
Paste Roll Height Monitor
ProFlow® ATx
Stinger
Printing Environment Control
Temperature – Temperature Control Module (TCM)
Recommended Stencil Frame
VectorGuard
Adjustable Width Stencil Mount (AWSM)
Frame variants – Fully adjustable to accommodate
frame sizes in the range of 381mm to 736mm (15” to
29”) by 38mm height.
Image position: Centre / Front / Custom
Handling & Cleaner Options
Specification
Substrate Handling Size (maximum)
620mm (X) x 508.5mm (Y) – Long Board Option
Under Stencil Cleaning
Typhoon Under Stencil Cleaner (620mm, poly blade
insert only)
Software & Communications
Specification
Substrate Handling
Flexible boards
Selective print pass through
Singulation
Software & Communications
GEM on TCP/IP
Statistical Process Control
On board, reported via operator interface (QC-CALC)

11
DEK NeoHorizon 01iX
Machine Productivity Options
Transport
Specification
Substrate Support
Vacuum tooling capability
Vacuum tooling sensor
Vacuum cups
Grid-Lok® tooling
Substrate Transport
Single piece conveyor with 3mm round belts
Single piece conveyor with flat belts (heavy boards)
Remote board stop (for use with heavy board option)
Substrate Fixture
All Purpose Clamping (APC) system*
Snuggers (edge clamping)
Foil-less clamps
* Can only be used with Modular single stage rail system – for availability contact product manager
Vision & Verification
Specification
HawkEye®
HawkEye® Bridging
Data Capture
Specification
Product Data Capture
Verification & Traceability
ProDEK closed loop
Camera Barcode Reader
SMART Factory Integration
Specification
Software & Communications
ASM OIB
IPC CFX
Closed-loop-to-SPI
Connection to ASM Process Expert
ASM Offline Printer Programming

12
DEK NeoHorizin 01iX
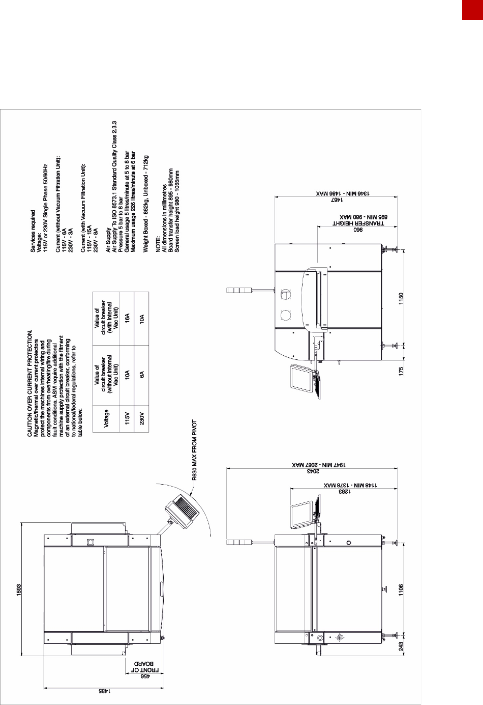
Machine Footprint with HTC