88222850-01-10 - NeoHorizon 01iX Tech Spec - 第13页
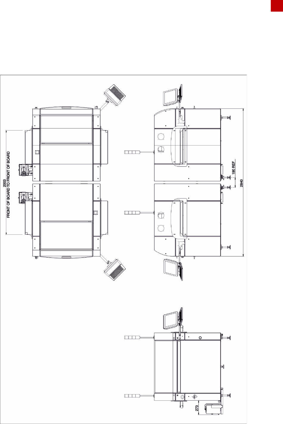
13 DEK Neo Horiz on 01 iX Machine Foot print with HTC Back to B ack

12
DEK NeoHorizin 01iX
Machine Footprint with HTC

13
DEK NeoHorizon 01iX
Machine Footprint with HTC Back to Back

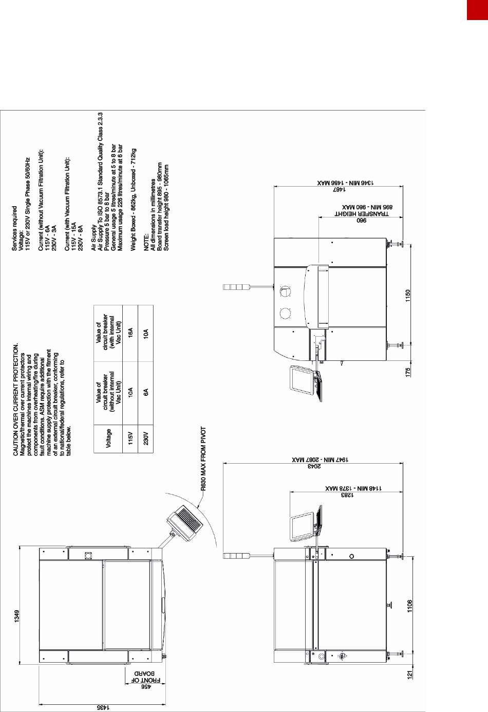
14
DEK NeoHorizon 01iX
Machine Footprint without HTC