RS-1_RS-1-XL_RS-1R-Rev20 - 第177页
- - REF.NO N OTE PARTNO DESCRIPTION Qty 1 401-69473 BAN KID PCB(RF)ASM 1 2 401-89202 BANK _BASE_R 1 3 PH-0600120-C0 P ARALLELPINTYPEB6X12 4 4 EZ-4453564-01 P LUGTAPERSCREW 1 5 E2602-721-000 B…

- -
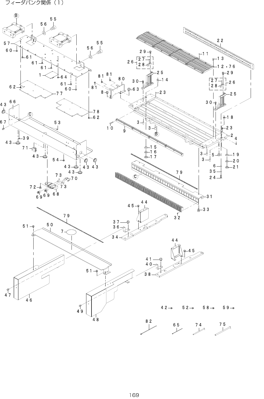
85.FEEDERBANKCOMPONENTS(1)

- -
REF.NO NOTE PARTNO DESCRIPTION Qty
1 401-69473 BANKIDPCB(RF)ASM 1
2 401-89202 BANK_BASE_R 1
3 PH-0600120-C0 PARALLELPINTYPEB6X12 4
4 EZ-4453564-01 PLUGTAPERSCREW 1
5 E2602-721-000 BANKLOCATEBUSHA 2
6 WP-0430800-SC WASHERM4 13
7 E5721-729-000 LABEL 1
8 SL-6051092-TN SCREWM5L=10 1
9 402-62622 CLAMP_BLOCK_14R 4
10 SM-6041602-TN SCREWM4X16 12
11 402-65941 DOWEL_PIN_D3_L10 8
12
#01
401-67530 GUIDE_RAIL 4
13 SM-3041052-TN SCREWM4L=10 24
14 E2609-721-000 BANKLOCATEPINA 1
15 WP-0841601-SC WASHERM8 1
16 WS-0820002-KN SPRINGWASHERM8 1
17 NM-6080003-SC NUTM8X1.25TYPE3 1
18 E2610-721-000 BANKLOCATEPINB 1
19 WP-0841601-SC WASHERM8 1
20 WS-0820002-KN SPRINGWASHERM8 1
21 NM-6080003-SC NUTM8X1.25TYPE3 1
22 401-83200 POSITIONING_PLATE 1
23 402-65941 DOWEL_PIN_D3_L10 2
24 SM-6041602-TN SCREWM4X16 13
25 401-83142 MARK_STAND 2
26 E2505-729-0A0 MARKASM. 2
27 E2601-725-000 MARK (1)
28 E2505-729-000 MARKBASE (1)
29 SL-6041292-TN SCREWM4L=12 4
30 SL-6052092-TN SCREWM5L=20 4
31 401-83176 CAN_CONNECTOR_BR 1
32 401-82051 CONNECTOR_BIND 112
33 SL-6051292-TN SCREWM5L=12 4
34 402-09115 BANK_PLATE_L 1
35 WS-0410002-KN SPRINGWASHERM4 13
36 400-94723 TOROLLEY_COV_BR 1
37 SL-6061092-TN SCREWM6L=10 2
38 402-09116 BANK_PLATE_R 1
39 401-11974 RIVET_1661-0410 2
40 400-94723 TOROLLEY_COV_BR 1
41 SL-6061092-TN SCREWM6L=10 2
42 HX-0070600-0A MOUNTBASE 2
43 HX-0005500-0N RUBBERBUSHING 7
44 401-83151 T_SAFETY_COVER_BR 2
45 SL-6040892-TN SCREWM4L=8 6
46 401-83194 TROLLEY_SAFETY_COVER_L 1
47 SL-6040892-TN SCREWM4L=8 4
48 401-88175 TROLLEY_SAFETY_COVER_R 1
49 SL-6040892-TN SCREWM4L=8 4
50 401-83154 REGULATION_BAR_RS 1
51 SL-6040892-TN SCREWM4L=8 4
52 HX-0070600-00 MOUNTBASE 3
53 SM-3040652-TN SCREWM4L=6 2
54 HX-0070600-00 MOUNTBASE 4
55 SM-6101602-TP SCREWM10L=16 2
56 WP-1052001-SC WASHER10 2
57 401-96173 BANK_PCB_BASE 2
58 HX-0070600-0A MOUNTBASE 8
59 HX-0070600-0A MOUNTBASE 2
60 HX-0070600-00 MOUNTBASE 2
61 SM-0040601-SC SCREWM4X0.7L=6 4
62 SL-4030681-SC SCREWM3L=6 18
63 SL-6061292-TN SCREW 2
64 SL-4850591-SC SCREWM2.5L=5 4
65 EA-9500B01-00 CABLEBAND 20
66 401-96257 BANK_PCB_COVER 1
67 SL-6040892-TN SCREWM4L=8 4
68 400-93977 5PORT_SOLENOID_VALVE 1
69 PJ-3010852-01 HALFUNION8XR1/4 2
70 PJ-3040852-01 ELBOWUNION8XPT1/4 1
71 401-83168 DIFFERENTDIAMETER_T 2
72 SL-6040892-TN SCREWM4L=8 2
73 PX-0551040-00 SILENCER 2
74 BT-0600400-EC URETHANETUBEBLUE6X4 2
75 BT-0800501-EA URETHANETUBEBLUE8X5 2
76
#02
401-83208 GUIDE_RAIL_R 4
77 401-83783 ELECBANKL-SIDEPCBASM 1
78 401-83784 ELECBANKR-SIDEPCBASM 1
79 401-84971 POSITION_LAVEL_56 2
80 401-83203 BANK_CONNECTOR_A_BR 1
81 HX-0070600-0A MOUNTBASE 1
82 EA-9500B02-00 CABLEBAND 2

- -
86.FEEDERBANKCOMPONENTS(2)